DECRETO por el que se expropia por causa de utilidad pública la superficie de 01-60-57 hectáreas del ejido "Leona Vicario", municipio de Puerto Morelos, estado de Quintana Roo, a favor de Tren Maya, S.A. de C.V.
Al margen un sello con el Escudo Nacional, que dice: Estados Unidos Mexicanos.- Presidencia de la República.
CLAUDIA SHEINBAUM PARDO, Presidenta de los Estados Unidos Mexicanos, en ejercicio de la facultad que me confiere el artículo 89, fracción I, de la Constitución Política de los Estados Unidos Mexicanos, con fundamento en los artículos 27, párrafos primero y segundo, y 92 de la propia Constitución; 13, 29 y 41 de la Ley Orgánica de la Administración Pública Federal; 93, fracciones I y VII, y 94 de la Ley Agraria, 60, 61 y 75 del Reglamento de la Ley Agraria en Materia de Ordenamiento de la Propiedad Rural, y
RESULTANDO
1. Que, mediante resolución presidencial publicada en el Diario Oficial de la Federación (DOF) el 20 de julio de 1936, se dotó al poblado "Leona Vicario", Delegación de Cozumel, estado de Quintana Roo, la superficie de 63,840 hectáreas. Dicha resolución se ejecutó el 27 de diciembre de 1936;
2. Que, el Congreso de los Estados Unidos Mexicanos, mediante decreto publicado en el DOF el 8 de octubre de 1974, reformó el artículo 43 de la Constitución Política de los Estados Unidos Mexicanos para reconocer al estado de Quintana Roo como parte integrante de la federación; 3. Que, mediante asamblea general de ejidatarios de 15 de agosto de 1999, se determinó la delimitación, destino y asignación de tierras del ejido "Leona Vicario", municipio de Benito Juárez, estado de Quintana Roo;
4. Que, el Congreso Constitucional del Estado Libre y Soberano de Quintana Roo, mediante decreto número 342, de 05 de noviembre de 2015, publicado en el Periódico Oficial del Estado el 06 de noviembre de 2015, creó el municipio libre de Puerto Morelos, jurisdicción a la que pertenece actualmente el Ejido "Leona Vicario" municipio de Puerto Morelos, estado de Quintana Roo; 5. Que, el 1 de diciembre de 1999, el ejido "Leona Vicario", municipio de Puerto Morelos, estado de Quintana Roo, se inscribió en el Padrón e Historial de Núcleos Agrarios del Registro Agrario Nacional (RAN) con el folio de ejidos y comunidades 23005002120071937R;
6. Que el ejido "Leona Vicario", municipio de Puerto Morelos, estado de Quintana Roo, fue afectado por las siguientes acciones agrarias:
| No. | Resolución Presidencial | Publicación en el DOF | Acción | Superficie (hectáreas) |
| 1 | 14 de mayo de 1990 | 22 de mayo de 1990 | Expropiación | 585-57-65.85 |
| 2 | 27 de julio de 1990 | 6 de agosto de 1990 | Expropiación | 835-27-64.06 |
| 3 | 20 de agosto de 1993 | 26 de agosto de 1993 | Expropiación | 191-29-12.26 |
| 4 | 22 de noviembre de 1993 | 8 de diciembre de 1993 | Expropiación | 167-10-14 |
| 5 | 11 de septiembre de 1996 | 17 de septiembre de 1996 | Expropiación | 444-97-71 |
| 6 | 18 de mayo de 2015 | 19 de mayo de 2015 | Expropiación | 08-50-96 |
| 7 | 8 de marzo de 2024 | 8 de marzo de 2024 | Expropiación | 90-53-63 |
7. Que, mediante escritura pública 98,727, de 5 de diciembre de 2018, otorgada ante el Licenciado Carlos Antonio Morales Montes de Oca, notario 227 de Ciudad de México, se protocolizó el cambio de denominación de Fonatur Operadora Portuaria, S.A. de C.V., por el de FONATUR Tren Maya, S.A. de C.V. En la cláusula CUARTA de la citada escritura pública consta, como parte de su objeto social:
(...)
c) Tramitar todo tipo de asignaciones y permisos y ejecutar la construcción, operación, explotación, conservación y mantenimiento de vías férreas en el sureste de la República Mexicana.
d) Tramitar todo tipo de asignaciones y permisos y prestar el servicio público de transporte ferroviario de pasajeros o de carga, por sí mismo mediante asignación o de manera conjunta con concesionarios.
e) Tramitar todo tipo de asignaciones y permisos para prestar servicios auxiliares ferroviarios, así como todo tipo de servicios relacionados con la infraestructura ferroviaria.
(...)
g) Celebrar todo tipo de actos jurídicos por los cuales otorgue o reciba el uso y aprovechamiento de bienes muebles e inmuebles, así como el adquirirlos o enajenarlos, comprendidos en instalaciones turísticas o inmobiliarias de cualquier naturaleza, en cualquier destino turístico, polos de desarrollo turístico, Centros Integralmente Planeados, y en Centros Turísticos Sustentables del Fondo Nacional del Fomento al Turismo (FONATUR), en el sureste de la República Mexicana.
8. Que, mediante publicación en el DOF el 21 de abril de 2020, el Gobierno federal otorgó, por conducto de la entonces Secretaría de Comunicaciones y Transportes, a la empresa de participación estatal mayoritaria FONATUR Tren Maya, S.A. de C.V., la asignación para construir, operar y explotar la vía general de comunicación ferroviaria denominada Tren Maya, la cual incluye la prestación del servicio público de transporte ferroviario de carga y de pasajeros, y los permisos para prestar los servicios auxiliares requeridos;
9. Que FONATUR Tren Maya, S.A. de C.V. elaboró dictámenes técnicos de la viabilidad del Proyecto Tren Maya, en los que se concluye que es de primera necesidad contar con un servicio confiable, eficiente, cómodo y seguro que permita, por una parte, el transporte de mercancías y, por otra, movilizar a sus usuarios con altos estándares de calidad, acceso y cobertura en el área urbana y conurbada;
10. Que los dictámenes antes referidos, acreditan que el Proyecto Tren Maya satisface el interés colectivo, e impulsa las actividades económicas del sur-sureste del país que garantizan el derecho a la movilidad en condiciones de seguridad, accesibilidad, comodidad, eficiencia, calidad e igualdad. Así mismo, la construcción del Tren Maya permitirá el desarrollo socioeconómico y turístico; reducirá los niveles de pobreza, y mejorará las condiciones de vida de quienes habitan y transitan por la zona;
11. Que, en los Cien Compromisos para el Segundo Piso de la Cuarta Transformación, se exponen XIV repúblicas, la XI, que se denomina República Próspera y Conectada, la cual contempla los compromisos números 76 y 77, mismos que se refieren a la "Construcción de línea del Tren Maya a Progreso" y a la "Implementación del transporte de carga en el Tren Maya", respectivamente;
12. Que el Proyecto de Nación se fundamenta en los Cien Compromisos de gobierno para el periodo 2025-2030, los cuales son la base del Plan Nacional de Desarrollo (PND), publicado en el DOF el 15 de abril de 2025;
13. Que el PND 2025-2030 contempla, en su Eje general 3 "Economía Moral y Trabajo", las siguientes estrategias:
Estrategia 3.7.2 Fomentar la construcción, modernización y conservación de la infraestructura de transporte para garantizar la movilidad de personas, bienes, servicios y turistas nacionales e internacionales, asegurando condiciones de seguridad vial, accesibilidad, eficiencia, sostenibilidad, calidad, inclusión e igualdad.
Estrategia 3.7.3 Desarrollar infraestructura ferroviaria para mejorar el transporte de pasajeros y carga mediante la expansión e integración de la red con un enfoque intermodal, fortaleciendo la integración territorial y ofreciendo un servicio económico, seguro, sostenible y eficiente.
14. Que el Programa Sectorial de Desarrollo Agrario, Territorial y Urbano (PSEDATU) 2025-2030, publicado en el DOF el 1 de septiembre de 2025, establece en su Estrategia 2.3 "Promover políticas de movilidad sustentable, segura, accesible e incluyente, para mejorar la conectividad del territorio, la prosperidad de las regiones y el bienestar de las personas" y en su Línea de acción 2.3.1 "Coordinar la regularización y liberación del derecho de vía para la construcción de 3,000 km de líneas de tren de pasajeros, mediante procesos de gestión, acuerdos y actualización registral";
15. Que el Programa Sectorial de Defensa Nacional 2025-2030, publicado en el DOF el 1 de septiembre de 2025, establece en su Estrategia 6.1 "Coadyuvar en la construcción de infraestructura que tienda al desarrollo económico y social del país" y en sus Líneas de acción 6.1.1 y 6.1.2 "Colaborar en estudios preliminares, asesoramiento y construcción, para el desarrollo del sistema ferroviario del país, que permita mejorar la movilidad, fortalecer la integración regional y facilitar el traslado de pasajeros y carga en el territorio nacional" y "Participar en la materialización de la infraestructura ferroviaria del Tren Maya para mejorar el transporte de pasajeros y carga, mediante la expansión de la red con un enfoque intermodal, que permita fortalecer la integración territorial en el sureste de la República y su desarrollo social, respectivamente;
16. Que, mediante escritura pública número 20 de 3 de junio de 2022, otorgada ante la fe de la titular de la Notaría 153 del estado de México, Claudia Gabriela Francóz Gárate, se hizo constar la constitución de la Empresa de Participación Estatal Mayoritaria Tren Maya, S.A. de C.V. la cual tiene por objeto social:
"prestar los servicios de transporte ferroviario, complementarios y comerciales relacionados con los mismos, en términos de las concesiones, permisos, licencias y autorizaciones que, en su caso, obtenga del Gobierno Federal, para llevar a cabo la construcción, operación y explotación del "Tren Maya".
Por lo que, para cumplir con su objeto social, Tren Maya, S.A. de C.V. puede realizar, entre otras, lo siguiente:
(...)
II. Llevar a cabo la construcción, operación y explotación del "Tren Maya", así como prestar los servicios auxiliares y públicos de transporte ferroviario de personas y carga, principalmente en los. Estados de Chiapas, Tabasco, Campeche, Yucatán y Quintana Roo, pudiendo extenderse en todo el territorio nacional;
III. Realizar todas las acciones, estudios, proyectos, construcciones, adquisiciones, obras complementarias, sociales y de desarrollo inmobiliario que sean necesarias para la construcción del Sistema Ferroviario relacionado con el "Tren Maya" y los que se lleguen a crear en el territorio nacional, para el desarrollo regional, incluyendo todas aquellas actividades relacionadas con la adquisición de bienes por cualquier título, propiedad privada o cualquier modalidad de tenencia de la tierra;
IV. El diseño, la construcción, ejecución, equipamiento, instalación, puesta en operación, financiación y transmisión de todo tipo de edificaciones, obras necesarias para tendido de vías, elevados sobre carril o cable, señalizaciones y enclavamientos, electrificación de ferrocarriles, así como su mantenimiento y reparación, ya sea en régimen de contratación pública o, privada, concesión o arrendamiento;
(...)
XII. En general, realizar y ejecutar todos los actos jurídicos que sea necesarios o convenientes para llevar a cabo su objeto social.
(...)
17. Que, mediante publicación en el DOF de 30 de mayo de 2023, el Gobierno Federal otorgó, por conducto de la Secretaría de Infraestructura, Comunicaciones y Transportes, a la empresa de participación estatal mayoritaria Tren Maya, S.A. de C.V., la asignación para construir, operar y explotar la vía general de comunicación ferroviaria denominada Tren Maya, la prestación del servicio público de transporte ferroviario de carga y de pasajeros, la cual incluye los permisos para prestar los servicios auxiliares requeridos;
18. Que, por acuerdo publicado el 21 de septiembre de 2023 en el DOF, se emitieron los "Lineamientos para la entrega del Proyecto Tren Maya, que realizará el Fideicomiso denominado Fondo Nacional de Fomento al Turismo (FONATUR) y FONATUR Tren Maya, S.A. de C.V. a Tren Maya, S.A. de C.V.";
19. Que, por decreto presidencial publicado el 1 de marzo de 2024 en el DOF, se determinó que FONATUR Tren Maya S.A. de C.V. debe entregar el Proyecto Tren Maya a Tren Maya, S.A. de C.V. conforme a las disposiciones y normativas aplicables;
20. Que FONATUR Tren Maya, S.A. de C.V. es una empresa de participación estatal mayoritaria sectorizada a la Secretaría de Turismo y Tren Maya, S.A. de C.V. es una empresa de participación estatal mayoritaria sectorizada a la Secretaría de la Defensa Nacional, como se indica en la "Relación de Entidades Paraestatales de la Administración Pública Federal", publicada en el DOF el 14 de agosto 2025; 21. Que por acuerdo publicado en el DOF el 4 de agosto de 2025, se establecieron las acciones para dar continuidad y seguimiento a los derechos y obligaciones de Fonatur Tren Maya, S.A. de C.V., por Tren Maya, S.A. de C.V. respecto de aquellos relacionados con el Proyecto Tren Maya, y por el Fondo Nacional de Fomento al Turismo en los demás derechos, obligaciones y asuntos distintos a éstos;
22. Que el 29 de agosto de 2025 se publicó en el DOF la Resolución emitida por el Secretario de Hacienda y Crédito Público, mediante la cual se autorizó la desincorporación por disolución y liquidación de la empresa de participación estatal mayoritaria denominada FONATUR Tren Maya, S.A. de C.V.;
23. Que, el Programa Institucional Tren Maya, S.A. de C.V. 2025-2030, publicado el 14 octubre de 2025 en el DOF, define los tres objetivos siguientes: "1.- Asegurar la rentabilidad del Tren Maya mediante la gestión eficiente de los servicios de transporte de pasajeros, carga, servicios complementarios y comerciales, para consolidar un sistema ferroviario que impulse el crecimiento económico del Sureste"; "2.- Garantizar un sistema de transporte ferroviario confiable, eficiente, seguro, con calidad e innovador con una conectividad intermodal integral, para fortalecer la logística, el comercio y la competitividad regional", y "3.- Impulsar al Tren Maya como una empresa ferroviaria con responsabilidad ambiental y social, con respeto a los derechos humanos, para contribuir al bienestar, la movilidad sostenible y desarrollo del Sureste";
24. Que FONATUR Tren Maya, S.A. de C.V. y Tren Maya, S.A. de C.V., mediante oficio número FTM/EDVPP/480/2024, de 10 de abril de 2024, solicitaron al entonces titular de la Secretaría de Desarrollo Agrario, Territorial y Urbano (Sedatu) la expropiación de la superficie de 01-51-35.26 hectáreas del ejido "Leona Vicario", municipio de Puerto Morelos, estado de Quintana Roo, para destinarla a la construcción de obras de infraestructura ferroviaria, operación del Proyecto Tren Maya y sus obras complementarias, correspondiente al Tramo 4 Izamal-Cancún;
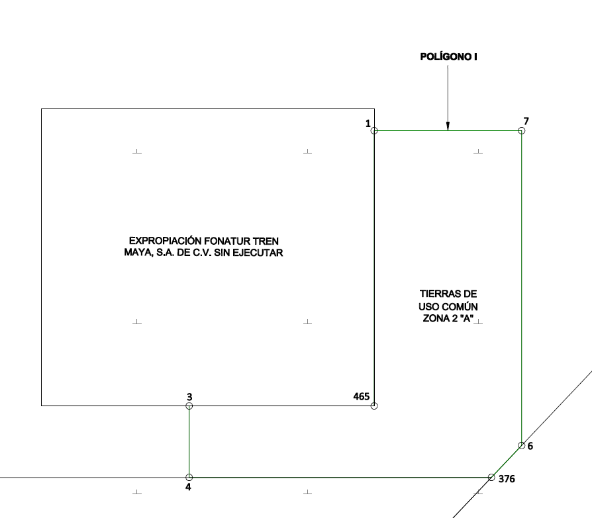
25. Que, la entonces Dirección General de Ordenamiento de la Propiedad Rural, hoy Dirección General de Resoluciones Presidenciales y Expropiaciones (DGRPE) de la Sedatu, el 26 de agosto de 2024, emitió acuerdo de instauración del procedimiento de expropiación con número de expediente DGOPR-DCE-DE/SOE-23QR/0159FONATUR TREN MAYA, S.A. DE C.V. y TREN MAYA, S.A. DE C.V/2024; 26. Que el comisionado técnico del RAN y el comisionado agrario de la Sedatu rindieron el "informe de comisión de Trabajos Técnicos e Informativos de Expropiación", de 25 de septiembre de 2024, en el que señalan que la superficie real a expropiar al ejido "Leona Vicario", municipio de Puerto Morelos, estado de Quintana Roo es de 01-60-57 hectáreas de uso común, que se describen en los siguientes planos y cuadros de construcción:
Superficie a expropiar de uso común: 01-60-57 hectáreas
Superficie total a expropiar: 01-60-57 hectáreas
27. Que, el 21 de febrero de 2025, el Instituto de Administración y Avalúos de Bienes Nacionales (Indaabin) emitió el dictamen valuatorio y anexo único, con número secuencial 04-25-74 y genérico G-42050-ZND, en el que determinó, con base en el valor comercial de la superficie a expropiar, que el monto total de indemnización asciende a $4,431,571.43 (cuatro millones cuatrocientos treinta y un mil quinientos setenta y un pesos 43/100 M.N.);
28. Que la Dirección General de Ordenamiento Territorial y Urbano de la Sedatu, el 4 de abril de 2025, emitió la opinión técnica condicionada número SOTUV/DGOTU/009/YUC.QROO/FONATUR TM4/001/2025 respecto del procedimiento de expropiación a favor de FONATUR Tren Maya S.A. de C.V., que incluye la superficie de 01-60-57 hectáreas relativas al ejido "Leona Vicario" municipio de Puerto Morelos, estado de Quintana Roo;
29. Que al comisariado ejidal del ejido "Leona Vicario", municipio de Puerto Morelos, estado de Quintana Roo se le notificó, el 30 de abril de 2025, la solicitud de expropiación, el acuerdo de instauración, el dictamen valuatorio y anexo único y la superficie real a expropiar. Asimismo, se le informó que contaba con 10 días hábiles para que manifestara lo que a su interés conviniera, en dicho plazo no realizó manifestaciones;
30. Que la DGRPE, el 27 de agosto de 2025, emitió dictamen en el que determinó procedente la expropiación de la superficie a que se refiere el numeral 25 a favor de FONATUR Tren Maya, S.A. de C.V., para destinarse a la construcción de obras de infraestructura ferroviaria, operación del proyecto Tren Maya y sus obras complementarias, y
CONSIDERANDO
I. Que, de conformidad con los artículos 27, párrafos primero y segundo, de la Constitución Política de los Estados Unidos Mexicanos (CPEUM); 93, fracciones I y VII, y 94 de la Ley Agraria, y 75 del Reglamento de la Ley Agraria en Materia de Ordenamiento de la Propiedad Rural (RLAMOPR), procede, mediante indemnización y previo decreto expedido por la persona titular del Ejecutivo Federal, publicado en el DOF, la expropiación por causa de utilidad pública, como lo es la construcción de obras de infraestructura ferroviaria, operación del Proyecto Tren Maya y sus obras complementarias;
II. Que la superficie de 01-60-57 hectáreas de uso común pertenecientes al ejido "Leona Vicario", municipio de Puerto Morelos, estado de Quintana Roo, se solicitó para destinarse a la construcción de obras de infraestructura ferroviaria, operación del Proyecto Tren Maya y sus obras complementarias, así como a la prestación del servicio público de transporte de carga ferroviaria y de pasajeros. Como consecuencia, se acreditan las causas de utilidad pública del establecimiento, explotación o conservación de un servicio o función públicos, y de la construcción de puentes, carreteras, ferrocarriles y demás obras que faciliten el transporte, previstas en el artículo 93, fracciones I y VII, respectivamente, de la Ley Agraria;
III. Que el Proyecto Tren Maya, al ser uno de los proyectos más importantes de infraestructura, desarrollo socioeconómico y turismo nacional y extranjero, no sólo impulsará el transporte de pasajeros, sino que se consolidará como un importante medio de transporte de carga, para acelerar el comercio de la península, lo que facilitará el intercambio de mercancías con el resto del país y diversificará los puntos turísticos de la región para generar una derrama económica; cumpliendo así una doble funcionalidad que fortalecerá su papel como elemento clave para construir una República próspera y conectada, como parte de las estrategias 3.7.2. y 3.7.3 del Eje general 3 "Economía Moral y Trabajo" del PND 2025-2030;
IV. Que, con la construcción, modernización y conservación, así como el desarrollo de infraestructura del Tren Maya se generarán oportunidades laborales y se redistribuirá la riqueza a lo largo de la península; para dar protección y rehabilitación a las áreas naturales protegidas y a los sitios patrimoniales. De igual forma, el Tren Maya funcionará como corredor humanitario por medio del cual se entregarán apoyos alimentarios, médicos, etc. para los pueblos y las comunidades indígenas y afromexicanas del sureste mexicano; tendrá un flujo constante, y sólo por su conducto, se podrá llegar a dichos poblados de manera pronta y eficaz; su ubicación geográfica es fundamental para salvaguardar las costas y la zona fronteriza con Centroamérica;
V. Que, de diversos documentos contenidos en el expediente de expropiación número DGOPR-DCE-DE/SOE-23QR/0159FONATUR TREN MAYA, S.A. DE C.V. y TREN MAYA, S.A. DE C.V/2024, se advierte que la superficie que se solicitó expropiar al ejido "Leona Vicario" fue de 01-51-35.26 hectáreas; sin embargo, una vez realizados los trabajos técnicos, resultó que la superficie real es de 01-60-57 hectáreas de terrenos de temporal, de uso común como consta en el informe de comisión de Trabajos Técnicos e Informativos de Expropiación ya referido, motivo por el cual la superficie a expropiar al ejido "Leona Vicario", municipio de Puerto Morelos, estado de Quintana Roo debe ser de 01-60-57 hectáreas;
VI. Que, se otorgó garantía de audiencia al órgano de representación del ejido "Leona Vicario", municipio de Puerto Morelos, estado de Quintana Roo, como se acredita con las constancias que obran en el expediente DGOPR-DCE-DE/SOE-23QR/0159FONATUR TREN MAYA, S.A. DE C.V. y TREN MAYA, S.A. DE C.V/2024, sin que en el plazo concedido realizaran manifestaciones respecto del procedimiento expropiatorio materia del presente decreto; con lo anterior, se dio cumplimiento a los artículos 14 y 16 de la CPEUM y 65 del RLAMOPR;
VII. Que queda acreditado que se ha cumplido con lo dispuesto en los artículos 94 de la Ley Agraria y 70 del RLAMOPR, ya que el Indaabin emitió dictamen valuatorio, el 21 de febrero de 2025, en el cual determinó que el monto de indemnización, con base al valor comercial de la superficie a expropiar, es de $4,431,571.43 (cuatro millones cuatrocientos treinta y un mil quinientos setenta y un pesos 43/100 M.N.). Con base en dicho avalúo, procede pagar la indemnización al ejido por las tierras de uso común, en la inteligencia de que los bienes objeto de la expropiación sólo podrán ser ocupados de manera definitiva, mediante el pago que se efectúe al ejido o a las personas que acrediten tener derecho sobre tierras de uso común en la proporción que corresponda;
VIII. Que, en caso de que los bienes expropiados se destinen a un fin distinto al señalado en el decreto respectivo, o si transcurrido un plazo de 5 años no se ha cumplido con la causa de utilidad pública, el Fideicomiso Fondo Nacional de Fomento Ejidal podrá ejercer las acciones necesarias para reclamar la reversión parcial o total, según corresponda, de los bienes expropiados, y operar la incorporación de estos a su patrimonio; ello de conformidad con el artículo 97 de la Ley Agraria. Asimismo, los bienes objeto de la expropiación sólo podrán ser ocupados de manera definitiva, mediante el pago que se efectúe al ejido o a las personas que acrediten tener derecho sobre tierras de uso común en la proporción que les corresponda;
IX. Que, mediante decreto presidencial de 1 de marzo de 2024, como se señala en el resultando 19 del presente instrumento, se estipula que FONATUR Tren Maya S.A. de C.V., deberá entregar el Proyecto Tren Maya a Tren Maya, S.A. de C.V., conforme a lo dispuesto en las normas aplicables y a más tardar el 12 de septiembre de 2024, toda vez que ha transcurrido el tiempo especificado, el presente procedimiento culminará a favor de Tren Maya, S.A. de C.V.; máxime que el 29 de agosto de 2025 se publicó en el DOF la resolución por la que se autorizó la desincorporación por disolución y liquidación de FONATUR Tren Maya, S.A. de C.V.;
X. Que los pagos correspondientes a cargo de Tren Maya, S.A. de C.V., se realizarán del presupuesto aprobado con el que cuenta dicha entidad paraestatal, sin que se autoricen ampliaciones líquidas al presupuesto establecido;
XI. Que, en términos de los artículos 93, 94 y 95 de la Ley Agraria y 60, 61, 63, 65, 67, 70, 72, 73, 74 y 75 del RLAMOPR, al haberse tramitado el procedimiento de expropiación ante la Sedatu, así como al haber justificado y acreditado las causas de utilidad pública, he tenido a bien expedir el siguiente
DECRETO
PRIMERO. Se expropia por causa de utilidad pública la superficie de 01-60-57 hectáreas (una hectárea, sesenta áreas, cincuenta y siete centiáreas), de uso común del ejido "Leona Vicario", municipio de Puerto Morelos, estado de Quintana Roo, a favor de Tren Maya, S.A. de C.V., para destinarla a la construcción de obras de infraestructura ferroviaria, operación del Proyecto Tren Maya y sus obras complementarias.
SEGUNDO. Queda a cargo de Tren Maya, S.A. de C.V. acreditar que se realizó el pago o, en su caso, cubrir con su presupuesto autorizado el monto de la indemnización que en términos de ley deba pagarse a quienes acrediten su legítimo derecho, respecto a la superficie a expropiar, por la cantidad señalada en el avalúo emitido por el Instituto de Administración y Avalúos de Bienes Nacionales, y en los términos señalados en el considerando VII del presente decreto.
TERCERO. La Secretaría de Desarrollo Agrario, Territorial y Urbano procederá a la ejecución correspondiente, una vez que Tren Maya, S.A. de C.V., haya acreditado que se realizó el pago indemnizatorio señalado en el numeral anterior. TRANSITORIOS
PRIMERO. Publíquese en el Diario Oficial de la Federación.
SEGUNDO. El presente decreto entrará en vigor y surtirá efectos el día de su publicación en el Diario Oficial de la Federación.
TERCERO. Inscríbase en el Registro Agrario Nacional, en el Registro Público de la Propiedad Federal y en el Registro Público de la Propiedad estatal o municipal correspondiente.
CUARTO. Notifíquese y ejecútese en los términos de la normativa aplicable.
Dado en la residencia del Poder Ejecutivo Federal, en Ciudad de México a 24 de diciembre de 2025.- Presidenta de los Estados Unidos Mexicanos, Claudia Sheinbaum Pardo.- Rúbrica.- Secretario de la Defensa Nacional, Ricardo Trevilla Trejo.- Rúbrica.- Secretaria de Desarrollo Agrario, Territorial y Urbano, Edna Elena Vega Rangel.- Rúbrica.