DECLARATORIA de causa de utilidad pública de la Planta Productora de Hidrógeno U-3400, ubicada en la fracción de terreno 6,451.78 m², en el interior de la Refinería Miguel Hidalgo, Tula de Allende, estado de Hidalgo, a favor de Pemex Transformación Industrial.

Al margen un sello con el Escudo Nacional, que dice: Estados Unidos Mexicanos.- Secretaría de Energía.

MIGUEL ÁNGEL MACIEL TORRES, Secretario de Energía, con fundamento en lo dispuesto por los artículos 25 y 27 de la Constitución Política de los Estados Unidos Mexicanos, en ejercicio de la facultad que me confieren los artículos 1o., 2o., fracción I, 26 y 33 de Ley Orgánica de la Administración Pública Federal; 1o., fracciones I y III Bis, 2o. y 3o. de la Ley de Expropiación; así como 1 y 5, fracciones XXIII y XXVI, del Reglamento Interior de la Secretaría de Energía, y
CONSIDERANDO
Que, el artículo 25 de la Constitución Política de los Estados Unidos Mexicanos (CPEUM) establece que [c]orresponde al Estado la rectoría del desarrollo nacional para garantizar que éste sea integral y sustentable, que fortalezca la Soberanía de la Nación y su régimen democrático y que, mediante la competitividad, el fomento del crecimiento económico y el empleo y una más justa distribución del ingreso y la riqueza, permita el pleno ejercicio de la libertad y la dignidad de los individuos, grupos y clases sociales, cuya seguridad protege esta Constitución;
Que, el artículo 27 de la CPEUM establece que [l]a nación tendrá en todo tiempo el derecho de imponer a la propiedad privada las modalidades que dicte el interés público, ya que este expresa las diversas formas de la intervención del Estado para hacer prevalecer el interés general sobre intereses particulares, y así fomentar el desarrollo económico de forma complementaria con la protección de los derechos de los ciudadanos y procurar la protección de los derechos fundamentales de los individuos por sobre los intereses económicos particulares;
Que la Ley de Expropiación (LE) es de interés público, y dispone como causa de utilidad pública el establecimiento, explotación o conservación de un servicio público, así como la construcción de obras de infraestructura pública y la prestación de servicios públicos, que requieran de bienes inmuebles y sus mejoras, derivada de concesión, de contrato o de cualquier acto jurídico celebrado en términos de las disposiciones legales aplicables (artículo 1o., fracciones I y III Bis);
Que la Ley de Petróleos Mexicanos (LPM) es de interés público y reglamentaria del artículo 25, párrafo cuarto, de la CPEUM y tiene por objeto, entre otros, regular la administración, operación y control de la empresa productiva del Estado, Petróleos Mexicanos (Pemex), así como establecer su régimen especial en materia de empresas productivas subsidiarias (artículo 1, fracción I, de la LPM);
Que la Secretaría de Energía es la encargada de establecer, conducir y coordinar la política energética del país, y ejerce los derechos de la Nación en materia de petróleo y todos los carburos de hidrógeno sólidos, líquidos y gaseosos, de minerales radioactivos, del aprovechamiento de los bienes y recursos naturales que se requieran para generar, transmitir, distribuir, comercializar y abastecer energía eléctrica; asimismo, lleva a cabo la planeación energética a mediano y largo plazos, y fija las directrices económicas y sociales para el sector energético nacional (artículo 33, fracciones I, II y V de la Ley Orgánica de la Administración Pública Federal);
Que Pemex, de conformidad con la LPM, tiene por objeto la exploración y extracción del petróleo y de los carburos de hidrógeno sólidos, líquidos o gaseosos, así como su recolección, venta y comercialización; llevar a cabo la actividad de refinación, transformación, transporte, almacenamiento, distribución, venta, exportación e importación de petróleo e hidrocarburos y los productos que se obtengan de su refinación o procesamiento y sus residuos, y la prestación de servicios relacionados con dichas actividades; así como realizar las operaciones o servicios necesarios para el cumplimiento de su objeto por sí mismo o con apoyo de sus empresas productivas subsidiarias;
Que la citada ley establece que Pemex tiene como finalidad el desarrollo de actividades empresariales, económicas, industriales y comerciales en términos de su objeto, para generar valor económico y rentabilidad para el Estado Mexicano como su propietario, así como actuar de manera eficiente al procurar el mejoramiento de la productividad para maximizar la renta petrolera del país y contribuir con ello al desarrollo nacional;
Que la LPM tiene, entre otros, el objeto de regular la administración, operación y control de la empresa productiva del Estado Pemex, así como establecer su régimen especial en materia de empresas productivas subsidiarias;
Que, de conformidad con la LPE, Pemex podrá contar con empresas productivas subsidiarias las cuales tienen personalidad jurídica y patrimonio propio y se sujetarán a su conducción, dirección y coordinación;
Que, dentro del Sistema Nacional de Refinación, a cargo de la Empresa Productiva Subsidiaria Pemex Transformación Industrial, se encuentra la Refinería Miguel Hidalgo, en Tula de Allende, Hidalgo (inaugurada el 18 de marzo de 1976), que tiene el Título de Permiso de Refinación de Petróleo número de SENER-REF-001-2018, en donde se lleva a cabo el proceso de refinación de petróleo;
Que fue necesaria la construcción de diversas plantas, entre las que se encuentra la de hidrógeno U-3400 (Planta de Hidrógeno) en 1992, debido a la demanda de hidrógeno por la modernización de los procesos que fueron agregados al proyecto inicial de la citada refinería. Las plantas que se construyeron son: H-Oil, ULSG, HDG, HDD-V, el objeto de la construcción de la Planta de Hidrógeno U-3400, es el suministro de hidrógeno de alta pureza;
Que la Refinería Miguel Hidalgo, en 1992 y 1993, modernizó sus procesos, principalmente el de la unidad Hidrodesulfuradora de Residuales, la cual fue adecuada para el Hidrotratamiento Profundo de Gasóleos, los gasóleos obtenidos son enviados como carga a las Plantas Catalíticas (FCC) para producir gasolina con menos de 20 ppm de azufre, es decir, gasolina de ultra bajo azufre, lo que permite incrementar la capacidad de producción de gasolina de ultra bajo azufre;
Que, en la Refinería Miguel Hidalgo, cuya propiedad de Pemex Transformación Industrial consta en la escritura pública número 2, de 16 de marzo de 2000, otorgada ante la fe de la Licenciada Marcela Vieyra Alamilla, Notaria adscrita a la Notaría Pública número 2 de Tula de Allende, estado de Hidalgo, inscrita en el Registro Público de Hidalgo, con el número 17 y en el Registro Público de la Propiedad Federal, bajo los números 22012/2, 38285/3, 1033/2, 26282/1, 14945/1 y 33620/1, se ubica la Planta de Hidrógeno U-3400, con capacidad nominal de 81.75 MMpcsd (millones de pies cúbicos estándar por día);
Que el Consejo de Administración de Pemex, el 28 de abril de 2015, publicó en el Diario Oficial de la Federación (DOF) el Acuerdo de Creación de la Empresa Productiva del Estado Subsidiaria de Petróleos Mexicanos, denominada Pemex Transformación Industrial;
Que, el 6 de octubre de 2015, se publicó en el DOF la Declaratoria de entrada en vigor del referido acuerdo de creación;
Que el Consejo de Administración de Pemex Transformación Industrial en sesión ordinaria de 6 de diciembre de 2016, mediante Acuerdo CAEPS-PTRI-033/2016, autorizó la "Estrategia General de Manejo de Hidrógeno para el Sistema Nacional de Refinación", donde se aprobó realizar actividades relativas al proyecto de suministro de hidrógeno para la Refinería Miguel Hidalgo, en Tula, con relación a la Planta Generadora de Hidrógeno U-3400, así como la suscripción de diversos contratos para la operatividad de dicha Planta;
Que el proceso de refinación es uno de los procesos industriales que más utiliza hidrógeno en la actualidad, porque este producto es usado como: 1) materia prima, 2) reactivo y 3) fuente de energía;
Que, en aras de lograr el objetivo del Gobierno federal de alcanzar la soberanía energética, entre otros, mediante autosuficiencia en la producción de petrolíferos, es necesario contar con la autonomía de suministro de hidrógeno en la Refinería Miguel Hidalgo, Tula de Allende, Hidalgo; sin depender de agentes externos, que resulten ajenos a los intereses sociales y de beneficio público que persigue el Estado Mexicano a fin de lograr sus objetivos constitucionales;
Que, todas las refinerías requieren hidrógeno para la producción de gasolinas y diésel. El hidrógeno que alimenta a las plantas productoras de combustibles se genera bajo distintas condiciones, la falta de hidrógeno reduce la capacidad de procesamiento;
Que, el hidrógeno utilizado en la Refinería Miguel Hidalgo proviene de las plantas reformadoras de nafta, con capacidad de producción de hasta 57.39 MMpcsd y una planta generadora de hidrógeno con capacidad nominal de 81.75 MMpcsd, esta última, originalmente propiedad de Pemex Transformación Industrial y en la actualidad propiedad de un tercero;
Que, la Refinería Miguel Hidalgo pagaba una cuota fija a un suministrador de hidrógeno, lo que encarecía los costos de suministro de hidrógeno a bajo niveles de proceso de crudo;
Que la "Estrategia General de Manejo de Hidrógeno para el Sistema Nacional de Refinación" fue autorizada por el Consejo de Administración de Pemex, mediante acuerdo CA-144/2016 en la sesión 915 extraordinaria de 14 de diciembre de 2016, así como el plan de contratación correspondiente del servicio;
Que el Plan de Negocios 2017-2021 de Pemex estableció para Pemex Transformación Industrial, la tercerización de servicios, con la finalidad de enfocar sus esfuerzos a la producción de destilados de las refinerías, toda vez que la situación financiera limitaba los recursos para cumplir con los planes de mantenimiento y de la demanda incremental de hidrógeno. Por lo anterior, se planteó una estrategia de monetización de la Planta Productora de Hidrógeno U-3400 de la Refinería Miguel Hidalgo, en Tula, Hidalgo, en favor de un privado, por lo que se determinó enajenar onerosamente dicha Planta de Hidrógeno, mediante un contrato de compraventa celebrado entre Pemex Transformación Industrial, en su carácter de vendedor y Air Liquide México, S. de R.L. de C.V., en su carácter de comprador;
Que, derivado de lo anterior, se suscribió un contrato de comodato respecto de la superficie de 6,451.78 m² del terreno en que se ubica, que permitiera al comprador la operación de la Planta de Hidrógeno, la realización de los trabajos de mantenimiento y renovación de los equipos de la misma, y de igual forma que estableciera los mecanismos que aseguraran el libre acceso;
Que el Plan Nacional de Desarrollo 2019-2024, aprobado por la Cámara de Diputados, y publicado en el DOF el 12 de julio de 2019, establece los programas y proyectos que constituyen las prioridades de atención estratégica a problemas públicos identificados. Asimismo, expone como importante propósito para la presente administración el rescate del sector energético y de Pemex para que vuelva a operar como palanca del desarrollo nacional;
Que, el 29 de diciembre de 2023, se publicó en el DOF, el "Decreto por el que se declara de utilidad pública el suministro de hidrógeno de la Planta Productora de Hidrógeno denominada U-3400, ubicada en la fracción de terreno de 6,451.78 m² al interior de la Refinería Miguel Hidalgo, ubicada en Tula de Allende, estado de Hidalgo, y se ordena la ocupación temporal a favor de Pemex Transformación Industrial", por lo que Pemex Transformación Industrial procedió a ocuparla de forma inmediata, y a partir de dicha fecha es responsable de la operación y conservación de la misma;
Que Pemex Transformación Industrial ha realizado un importante esfuerzo por consolidar el equipamiento y la infraestructura necesaria para el desarrollo de sus actividades, entre ellos, el Sistema Nacional de Refinación, que permite el procesamiento de crudo para la producción, entre otros, de gasolina, diesel, queroseno, asfaltos, lubricantes, parafinas, grasas, combustible industrial y coque;
Que el consumo de hidrógeno hoy en día está dominado por cuatro usos principales: refinación de petróleo (33%), producción de amoníaco (27%), producción de metano (11 %) y producción de acero (3%). Todo este hidrógeno se suministra por combustibles fósiles. Estos usos sustentan diversos aspectos de la economía global y su crecimiento futuro depende de la evolución de la demanda de productos derivados, como combustibles para transporte, fertilizantes y materiales de construcción;
Que, aproximadamente 38,000 MM ton de hidrógeno por año, o el 33% de la demanda mundial total de hidrógeno (tanto en forma pura como mixta), es consumida por las refinerías como materia prima, reactivo y fuente de energía. Alrededor de dos tercios se producen en plantas de hidrógeno o se adquieren de proveedores comerciales. La demanda de hidrógeno a gran escala existente en las refinerías aumentará, a medida que se endurezcan las regulaciones sobre el contenido de azufre en los productos petrolíferos;
Que el hidrotratamiento o hidrocraqueo son los principales consumidores de hidrógeno en refinación; por conducto del primero se eliminan impurezas, especialmente azufre, que elimina alrededor del 70% del azufre que se genera naturalmente en los crudos. Existe una creciente presión regulatoria para reducir aún más el contenido de azufre en los productos finales. A partir de 2020, se requirió un 40% menos de azufre en los productos refinados en comparación a 2005, a pesar del continuo crecimiento de la demanda;
Que, a nivel mundial, en las últimas décadas, la demanda de hidrógeno de las refinerías ha aumentado sustancialmente como resultado de la creciente actividad de refinación y de los requisitos de hidrotratamiento e hidrocraqueo. Se prevé que esta tendencia continúe a medida que las especificaciones de combustible reduzcan aún más los niveles aceptables de contenido de azufre;
Que la Organización Marítima Internacional también ha introducido nuevas regulaciones sobre combustibles búnker que limitan el contenido de azufre de los combustibles marinos a no más del 0,5% desde 2020 Organización de los Estados Americanos, 2019, y es probable que esto conduzca a un aumento significativo de los requisitos de hidrógeno para la producción de combustible marino. Según las tendencias actuales, se prevé que la demanda general de hidrógeno en las refinerías crezca un 7% a 41,000 MM ton de hidrógeno por año en 2030;
Que, el hidrógeno es un insumo básico para la producción de petrolíferos dentro de los parámetros de calidad que prevé la norma, por lo que es necesario recuperar la Planta de Hidrógeno U-3400 como parte de la Refinería Miguel Hidalgo, así como en los activos de Pemex Transformación Industrial, para garantizar que la producción de combustibles se realice con los tratamientos adicionales que brinden las características de calidad para su comercialización, y con ello asegurar el abasto de los combustibles en la región de influencia económica de la Refinería Miguel Hidalgo;
Que el hidrógeno producido por la Planta U-3400 es utilizado en las plantas hidrodesulfuradoras de gasolinas, intermedios, diésel y de gasóleos en donde se elimina el azufre de las corrientes provenientes de la destilación atmosférica y de la destilación al vacío. Una vez que los productos han sido hidrodesulfurados, las corrientes que cumplen con la calidad para venta al público son dispuestas para su comercialización, este es el caso de la turbosina, el diésel y el combustóleo pesado;
Que la demanda de hidrógeno a gran escala existente en las refinerías aumentará a medida que se endurezcan las regulaciones sobre el contenido de azufre en los productos petrolíferos; por tanto, es indispensable garantizar el suministro de hidrógeno para la Refinería Miguel Hidalgo, la cual cuenta con la infraestructura de distribución interna de hidrógeno y los insumos necesarios para la operación de la Planta de Hidrógeno, lo que mejorará los márgenes de refinación de Pemex Transformación Industrial y contribuirá a la soberanía energética nacional;
Que las gasolinas requieren tratamientos adicionales para brindarles algunas características de calidad adicionales y poder comercializarlas. Uno de estos procesos es la reformación catalítica, la cual requiere que la corriente de entrada tenga un máximo de contenido de azufre, ya que su catalizador es muy susceptible a la presencia de dicho elemento en cualquiera de sus formas, ese máximo contenido de azufre se logra dentro de la hidrodesulfuradora con el hidrógeno que participa en dicho proceso;
Que el azufre al estar presente en los combustibles, genera óxidos de azufre que son contaminantes ambientales y para reducir dichos contaminantes, es preciso que las refinerías cuenten con autonomía para la producción de hidrógeno, dado que en México no existe un mercado independiente de hidrógeno, ni la infraestructura que brinde suministro a plantas industriales;
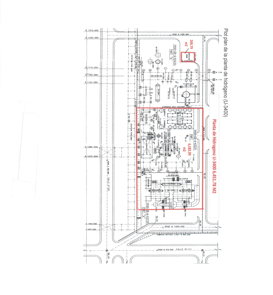
Que la Planta de Hidrógeno U-3400 se encuentra ubicada en una fracción de terreno de 6,451.78 m² dentro de una serie de plantas denominado "Complejo de hidrodesulfuración de residuos" al interior de la Refinería Miguel Hidalgo, en Tula de Allende Hidalgo, conforme a los siguientes planos:
 

 

Que, actualmente no existe autonomía de suministro de hidrógeno porque hay dependencia de un tercero y la Planta U-3400 es la única fuente de suministro de hidrógeno para el proceso de la Refinería Miguel Hidalgo, lo que pone en riesgo la producción principal de gasolinas y diésel, por no contar con el insumo que permita ser utilizado en el proceso productivo que se realiza en las instalaciones de la refinería y que las plantas reformadoras de naftas no produzcan hidrógeno ni en cantidad ni calidad requeridos;
Que la empresa productiva subsidiaria Pemex Transformación Industrial, debe recuperar la actividad desarrollada en el proceso productivo de la Planta productora de Hidrógeno, ubicada en la Refinería Miguel Hidalgo, en Tula de Allende, para obtener la materia prima que sustente el proceso de otras plantas para la generación de combustibles limpios, lo que reflejará un beneficio colectivo como la generación de productos para el desarrollo económico del país dentro de los parámetros previstos en la norma, para considerarlo como un combustible dentro de los rangos permitidos para su consumo;
Que es necesario que el Estado garantice el suministro de hidrógeno en beneficio de la colectividad, para obtener seguridad energética; es decir, la actividad continua e ininterrumpida de refinación de petróleo en el país; y así recuperar su soberanía energética;
Que, de conformidad con los artículos 1o., fracción III Bis, 2o y 3o, segundo párrafo, de la LE; 48 fracción I de la LH, 2 y 5, fracción I, de la LPM, mediante oficio DGTRI-041-2024 Pemex Transformación Industrial solicitó a la Secretaría de Energía el inicio del procedimiento de expropiación por causa de utilidad pública de la Planta Productora de Hidrógeno ubicada al interior de la Refinería Miguel Hidalgo, Tula de Allende, Hidalgo, a favor de Pemex Transformación Industrial;
Que derivado de la citada solicitud, la Secretaría de Energía se encuentra integrando el expediente respectivo, en el cual consta el dictamen técnico que justifica las causas de utilidad pública de la Planta de Hidrógeno U-3400, ubicada al interior de la Refinería Miguel Hidalgo;
Que del dictamen y estudios correspondientes que integran el expediente, se desprende que es esencial para Pemex Transformación Industrial llevar a cabo, entre otras actividades, la producción de petrolíferos, cuya actividad beneficia a los ciudadanos de diversos estados del centro del país y atiende el 10% del total de la demanda nacional, por lo que, resulta imprescindible incorporar, como parte de los activos de esa empresa productiva subsidiaria, la Planta Productora de Hidrógeno, que actualmente provee la materia prima (hidrógeno) como insumo básico, a fin de que la referida producción de petrolíferos se realice dentro de los parámetros de calidad y especificaciones que prevé la NOM-016-CRE-2016;
Que de los estudios que integran el expediente respectivo, la refinación es una de las actividades con mayores requerimientos de hidrógeno, aunado a una creciente presión regulatoria para reducir el contenido de azufre en los productos finales tales como gasolina y diésel, indispensables y altamente utilizados por la población, de tal forma que la demanda de hidrógeno a gran escala existente en las refinerías aumentará a medida que se endurezcan las regulaciones sobre el contenido de azufre en los productos petrolíferos;
Que la industria de hidrocarburos en México y por ende la prestación del servicio de suministro de hidrógeno es de utilidad pública, respecto del cual pueden constituirse servidumbres legales, o la ocupación o afectación superficial necesarias para la realización de las actividades de la industria de hidrocarburos, lo que otorga soberanía energética al Estado Mexicano. Al existir un permiso de Refinación de Petróleo para la Refinería Miguel Hidalgo, en la que se encuentra la Planta de Generación de Hidrógeno para el hidroprocesamiento (eliminación de azufre contaminante) de los diferentes productos obtenidos de la destilación del crudo para la obtención de gasolinas en sus diferentes calidades como lo es la MUBA (gasolina de ultra bajo azufre con calidad para la zona metropolitana del país), Gasolina Premium, Turbosina, para su envío al aeropuerto de Ciudad de México y otros aeropuertos de la zona de influencia de la Refinería de Miguel Hidalgo y diésel de calidad ultra bajo azufre (DUBA) cuyas características son necesarias para su comercialización;
Que la recuperación de la Planta de Hidrógeno U-3400 ubicada al interior de la Refinería Miguel Hidalgo, mejorará los márgenes de refinación de Pemex Transformación Industrial y contribuirá a la soberanía energética nacional; cuya actividad se encuentra permisionada a Pemex Transformación Industrial mediante el título de permiso número SENER-REF-001-2018, por la Secretaría de Energía, que respalda la operación de la Refinería "Miguel Hidalgo", por lo que son de utilidad pública las actividades y servicios amparados por el permiso;
Que la finalidad es que la empresa productiva subsidiaria del Estado, lleve a cabo por sí la actividad desarrollada en el proceso productivo de la Planta Productora de Hidrógeno, en la Refinería Miguel Hidalgo, Tula de Allende, para contar con el servicio de obtención de la materia prima que sustentará el proceso de otras plantas para la generación de combustibles limpios, en beneficio colectivo; con ello, se cumple con el fin de la utilidad pública, esto es que la propiedad del bien a expropiarse pase al Estado para la prestación del servicio y una adecuada operación de la instalación;
Que, toda vez que se satisfacen las causas de utilidad pública previstas en los artículos 1o., fracción I, y III Bis, 2o., de la LE, en virtud de que es apropiada e idónea para establecer y explotar por sí mismo, un servicio de utilidad colectiva, para que la empresa productiva del Estado lleve a cabo por sí, la actividad desarrollada en el proceso de la Planta Productora de Hidrógeno, en la Refinería Miguel Hidalgo, en Tula de Allende, para obtener la materia prima que permite realizar el proceso de refinación para el beneficio público en el sentido de la generación de productos para el desarrollo de la economía del país con los parámetros de la norma de calidad de los combustibles para su consumo, he tenido a bien expedir la siguiente
DECLARATORIA DE CAUSA DE UTILIDAD PÚBLICA DE LA PLANTA PRODUCTORA DE HIDRÓGENO
U-3400, UBICADA EN LA FRACCIÓN DE TERRENO 6,451.78 M², EN EL INTERIOR DE LA REFINERÍA
MIGUEL HIDALGO, TULA DE ALLENDE, ESTADO DE HIDALGO, A FAVOR DE PEMEX
TRANSFORMACIÓN INDUSTRIAL.
PRIMERO. Se declara de utilidad pública la Planta Productora de Hidrógeno denominada U-3400, ubicada en la fracción de terreno de 6,451.78 m² al interior de la Refinería Miguel Hidalgo, en Tula de Allende, estado de Hidalgo, comprendida por la superficie detallada en los considerandos de la presente declaratoria, así como la conservación y prestación del servicio de suministro de hidrógeno, su uso, aprovechamiento, operación y explotación, y demás mejoras.
Los planos de la Planta de Hidrógeno y expediente formado con motivo de la presente declaratoria, quedan a disposición de todas aquellas personas físicas o morales que acrediten y justifiquen un derecho o un interés jurídico sobre la citada Planta.
SEGUNDO. Notifíquese personalmente a los titulares de los bienes y derechos en el domicilio que de ellos conste en el expediente correspondiente. En caso de ignorarse quienes son los titulares; o bien, se desconozca su domicilio o localización, efectúese una segunda publicación en el Diario Oficial de la Federación, conforme a lo establecido en el artículo 2o. de la Ley de Expropiación.
TERCERO. Los interesados tienen un plazo de 15 días hábiles a partir de la notificación o de la segunda publicación en el Diario Oficial de la Federación de la presente declaratoria, para manifestar ante la Unidad de Asuntos Jurídicos de la Secretaría de Energía, lo que a su derecho e interés convenga y presenten las pruebas que estimen pertinentes.
CUARTO. Publíquese la presente Declaratoria en el Diario Oficial de la Federación.
Ciudad de México, a 8 de febrero de 2024.- El Secretario de Energía, Ing. Miguel Ángel Maciel Torres.- Rúbrica.