DECRETO por el que se declara de utilidad pública el suministro de hidrógeno de la Planta Productora de Hidrógeno denominada U-3400, ubicada en la fracción de terreno de 6,451.78 al interior de la Refinería Miguel Hidalgo, ubicada en Tula de Allende, estado de Hidalgo, y se ordena la ocupación temporal a favor de Pemex Transformación Industrial.

Al margen un sello con el Escudo Nacional, que dice: Estados Unidos Mexicanos.- Presidencia de la República.

ANDRÉS MANUEL LÓPEZ OBRADOR, presidente de los Estados Unidos Mexicanos, en ejercicio de la facultad que me confiere el artículo 89, fracción I, de la Constitución Política de los Estados Unidos Mexicanos, con fundamento en los artículos 25 y 27 de la propia Constitución; 1o. y 33 de Ley Orgánica de la Administración Pública Federal; 1o., fracciones I, III Bis y XII, 2 Bis, 3o., 4o., 7o., 8 Bis, 10 y 19 de la Ley de Expropiación; 143, fracción VII, de la Ley General de Bienes Nacionales, y 1, y 58 de la Ley de Hidrocarburos, y
CONSIDERANDO
Que, el artículo 25 de la Constitución Política de los Estados Unidos Mexicanos (CPEUM) establece que [c]orresponde al Estado la rectoría del desarrollo nacional para garantizar que éste sea integral y sustentable, que fortalezca la Soberanía de la Nación y su régimen democrático y que, mediante la competitividad, el fomento del crecimiento económico y el empleo y una más justa distribución del ingreso y la riqueza, permita el pleno ejercicio de la libertad y la dignidad de los individuos, grupos y clases sociales, cuya seguridad protege esta Constitución;
Que, el artículo 27 de la CPEUM establece que [l]a nación tendrá en todo tiempo el derecho de imponer a la propiedad privada las modalidades que dicte el interés público, ya que este expresa las diversas formas de la intervención del Estado para hacer prevalecer el interés general sobre intereses particulares, y así fomentar el desarrollo económico de forma complementaria con la protección de los derechos de los ciudadanos y procurar la protección de los derechos fundamentales de los individuos por sobre los intereses económicos particulares;
Que, la Ley de Expropiación (LE) es de interés público, y establece como causa de utilidad pública el establecimiento, explotación o conservación de un servicio público, así como la construcción de obras de infraestructura pública y la prestación de servicios públicos, que requieran de bienes inmuebles y sus mejoras, derivada de concesión, de contrato o de cualquier acto jurídico celebrado en términos de las disposiciones legales aplicables y los demás casos previstos por leyes especiales (artículo 1°., fracciones I, III Bis y XII);
Que, la LE establece que procede la expropiación, ocupación temporal o la simple limitación de los derechos de dominio, para los fines del Estado, previa declaratoria de utilidad pública, y mediante indemnización que en derecho corresponda (artículos 2 Bis y 4o., de la LE);
Que en el caso de la ocupación temporal, el Ejecutivo Federal hará la declaratoria de utilidad pública, decretará la medida correspondiente y ordenará su ejecución inmediata (artículo 2 Bis, párrafo segundo, de la LE);
Que, la Ley de Petróleos Mexicanos (LPM) es de interés público y reglamentaria del artículo 25, párrafo cuarto, de la CPEUM y tiene por objeto, entre otros, regular la administración, operación y control de la empresa productiva del Estado, Petróleos Mexicanos (PEMEX), así como establecer su régimen especial en materia de empresas productivas subsidiarias (artículo 1, fracción I, de la LPM);
Que el artículo 58 de la Ley de Hidrocarburos (LH) considera como utilidad pública las actividades y servicios amparados por un permiso, como en la especie lo son las que realiza Pemex Transformación Industrial. Asimismo, establece que procederá la ocupación temporal de los bienes, derechos e instalaciones necesarias para la prestación del servicio o su adecuada operación, en los supuestos previstos en la LE;
Que la Secretaría de Energía es la encargada de establecer, conducir y coordinar la política energética del país, ejerce los derechos de la Nación en materia de petróleo y todos los carburos de hidrógeno sólidos, líquidos y gaseosos, de minerales radiactivos, del aprovechamiento de los bienes y recursos naturales que se requieran para generar, transmitir, distribuir, comercializar y abastecer energía eléctrica; lleva a cabo la planeación energética a mediano y largo plazo, y fija las directrices económicas y sociales para el sector energético nacional (artículo 33, fracciones I, II y V de la Ley Orgánica de la Administración Pública Federal);
Que PEMEX, de conformidad con la LPM, tiene por objeto la exploración y extracción del petróleo y de los carburos de hidrógeno sólidos, líquidos o gaseosos, así como su recolección, venta y comercialización; llevar a cabo la actividad de refinación, transformación, transporte, almacenamiento, distribución, venta, exportación e importación de petróleo e hidrocarburos y los productos que se obtengan de su refinación o procesamiento y sus residuos, y la prestación de servicios relacionados con dichas actividades; así como realizar las operaciones o servicios necesarios para el cumplimiento de su objeto por sí mismo o con apoyo de sus empresas productivas subsidiarias;
Que, la citada ley establece que PEMEX tiene como finalidad el desarrollo de actividades empresariales, económicas, industriales y comerciales en términos de su objeto, para generar valor económico y rentabilidad para el Estado mexicano como su propietario, así como actuar de manera eficiente al procurar el mejoramiento de la productividad para maximizar la renta petrolera del país y contribuir con ello al desarrollo nacional;
Que la LPM tiene por objeto, entre otras cosas, regular la administración, operación y control de la empresa productiva del Estado, Petróleos Mexicanos; así como establecer su régimen especial en materia de empresas productivas subsidiarias;
Que, la LPE establece que PEMEX podrá contar con empresas productivas subsidiarias las cuales tienen personalidad jurídica y patrimonio propio y se sujetarán a la conducción, dirección y coordinación de PEMEX;
Que el Consejo de Administración de PEMEX, el 28 de abril de 2015 publicó en el Diario Oficial de la Federación (DOF) el Acuerdo de Creación de la Empresa Productiva del Estado Subsidiaria de Petróleos Mexicanos, denominada Pemex Transformación Industrial;
Que, el 6 de octubre de 2015, se publicó en el DOF la Declaratoria de entrada en vigor del referido acuerdo de Creación;
Que el Consejo de Administración de Pemex Transformación industrial en sesión ordinaria de 6 de diciembre de 2016, mediante Acuerdo CAEPS-PTRI-033/2016, autorizó la "Estrategia General de Manejo de Hidrógeno para el Sistema Nacional de Refinación", donde se aprobó realizar actividades relativas al proyecto de suministro de hidrógeno para la Refinería Miguel Hidalgo, en Tula, con relación a la Planta Generadora de Hidrógeno U-3400, así como la suscripción de un contrato de suministro;
Que la "Estrategia General de Manejo de Hidrógeno para el Sistema Nacional de Refinación" fue autorizada por el Consejo de Administración de PEMEX, mediante acuerdo CA-144/2016 en la sesión 915 extraordinaria de 14 de diciembre de 2016, así como el plan de contratación correspondiente, que implicó la formalización de un contrato de suministro de hidrógeno;
Que, dentro del Sistema Nacional de Refinación, a cargo de la Empresa Productiva Subsidiaria de Pemex Transformación Industrial, se encuentra la Refinería Miguel Hidalgo, en Tula de Allende, Hidalgo;
Que, en la Refinería Miguel Hidalgo, cuya propiedad de Pemex Transformación Industrial consta en la escritura pública número 2, de 16 de marzo de 2000, otorgada ante la fe de la Licenciada Marcela Vieyra Alamilla, Notaria adscrita a la Notaría Pública número 2 de Tula de Allende, estado de Hidalgo, inscrita en el Registro Público de Hidalgo, con el número 17 y en el Registro Público de la Propiedad Federal, bajo los números 22012/2, 38285/3, 1033/2, 26282/1, 14945/1 y 33620/1, se ubica la Planta Productora de Hidrógeno U-3400, con capacidad nominal de 81.75 MMpcsd;
Que, el Plan de Negocios 2017-2021, de PEMEX, estableció para Pemex Transformación Industrial, la tercerización de servicios, para enfocar sus esfuerzos en la producción de destilados de las refinerías, toda vez que la situación financiera limitaba los recursos para cumplir con los planes de mantenimiento y de la demanda creciente de hidrógeno. Se planteó una estrategia de monetización de la denominada Planta Productora de Hidrógeno U-3400 de la Refinería Miguel Hidalgo, en Tula, Hidalgo, en favor de un privado, y se determinó enajenar onerosamente dicha planta mediante un contrato de compraventa celebrado entre Pemex Transformación Industrial, en su carácter de vendedor y Air Liquide México, S. de R.L. de C.V., en su carácter de comprador;
Que, derivado de lo anterior, se suscribió un contrato de comodato por la superficie de 6,451.78 m2 de terreno en que se ubica, que permitiera al comprador la operación de la planta, la realización de los trabajos de mantenimiento y renovación de los equipos de dicha planta, y que estableciera los mecanismos que aseguraran el libre acceso a la planta;
Que actualmente, la Refinería de Tula paga una cuota fija a un suministrador de hidrógeno, lo que encarece los costos de suministro de hidrógeno a bajos niveles de proceso de crudo;
Que el Plan Nacional de Desarrollo 2019-2024, aprobado por la Cámara de Diputados, y publicado en el DOF el 12 de julio de 2019, establece los programas y proyectos que constituyen las prioridades de atención estratégica a problemas públicos identificados; asimismo, expone como un propósito de importancia estratégica para la presente administración el rescate del sector energético y de PEMEX para que vuelva a operar como palanca del desarrollo nacional;
Que, en la actualidad, para la refinación de gasolina, el hidrógeno es utilizado en gran cantidad como: 1) materia prima, 2) reactivo y 3) fuente de energía;
Que todas las refinerías requieren hidrógeno para la producción de gasolinas y diésel. El hidrógeno que alimenta a las plantas productoras de combustibles se genera bajo distintas condiciones; la falta de hidrógeno reduce la capacidad de procesamiento;
Que, en aras de lograr el objetivo del Gobierno federal de alcanzar la soberanía energética, entre otros, mediante autosuficiencia en la producción de petrolíferos, es necesario contar con la autonomía de suministro de hidrógeno en la Refinería Miguel Hidalgo, en Tula, Hidalgo, sin depender de agentes externos que puedan resultar ajenos a los intereses sociales y de beneficio público que persigue el Estado mexicano para lograr sus cometidos constitucionales;
Que Pemex Transformación Industrial ha realizado un importante esfuerzo por consolidar el equipamiento y la infraestructura necesaria para el desarrollo de sus actividades, entre ellos, en el Sistema Nacional de Refinación, que permite el procesamiento de crudo para la producción, entre otros, de gasolina, diésel, queroseno, asfaltos, lubricantes, parafinas, grasas, combustible industrial y coque;
Que el consumo de hidrógeno hoy en día está dominado por cuatro usos principales: refinación de petróleo (33%), producción de amoníaco (27%), producción de metano (11%) y producción de acero (3%), ese hidrógeno se suministra por combustibles fósiles. Estos usos sustentan muchos aspectos de la economía global y su crecimiento futuro depende de la evolución de la demanda de productos derivados, como combustibles para transporte, fertilizantes y materiales de construcción;
Que, aproximadamente 38,000 MM ton de hidrógeno por año, o el 33% de la demanda mundial total de hidrógeno (tanto en forma pura como mixta), es consumida por las refinerías como materia prima, reactivo y fuente de energía. Alrededor de dos tercios se producen en plantas de hidrógeno o se adquieren de proveedores comerciales. La demanda de hidrógeno a gran escala existente en las refinerías aumentará a medida que se endurezcan las regulaciones sobre el contenido de azufre en los productos petrolíferos;
Que el hidrotratamiento o hidrocraqueo son los principales consumidores de hidrógeno en refinación; por medio del primero se eliminan impurezas, especialmente azufre, elimina alrededor del 70% del azufre que se genera naturalmente en los crudos. Existe una creciente presión regulatoria para reducir aún más el contenido de azufre en los productos finales. A partir de 2020, se requiere un 40% menos de azufre en los productos refinados en comparación a 2005, a pesar del continuo crecimiento de la demanda;
Que, a nivel mundial, en las últimas décadas, la demanda de hidrógeno de las refinerías ha aumentado sustancialmente como resultado de la creciente actividad de refinación y de los requisitos de hidrotratamiento e hidrocraqueo. Se prevé que esta tendencia continúa a medida que las especificaciones de combustible reduzcan aún más los niveles aceptables de contenido de azufre;
Que la Organización Marítima Internacional también ha introducido nuevas regulaciones sobre combustibles búnker que limitan el contenido de azufre de los combustibles marinos a no más del 0,5% desde 2020 Organización de los Estados Americanos, 2019, y es probable que esto conduzca a un aumento significativo de los requisitos de hidrógeno para la producción de combustible marino. Según las tendencias actuales, se prevé que la demanda general de hidrógeno en las refinerías crezca un 7% a 41,000 MM ton de hidrógeno por año en 2030;
Que, el hidrógeno es un insumo básico para la producción de petrolíferos dentro de los parámetros de calidad que prevé la norma, por lo que es necesario recuperar la Planta de Hidrógeno U-3400 como parte de la Refinería Miguel Hidalgo, así como en los activos de Pemex Transformación Industrial, para garantizar que la producción de combustibles se realice con los tratamientos adicionales que brinden las características de calidad para su comercialización, y con ello asegurar el abasto de los combustibles en la región de influencia económica de la Refinería Miguel Hidalgo;
Que el hidrógeno producido por la planta U-3400 es utilizado en las plantas hidrodesulfuradoras de gasolinas, intermedios, diésel y de gasóleos en donde se elimina el azufre de las corrientes provenientes de la destilación atmosférica y de la destilación al vacío. Una vez que los productos han sido hidrodesulfurados, las corrientes que cumplen con la calidad para venta al público son dispuestas para su comercialización, este es el caso de la turbosina, el diésel y el combustóleo pesado;
Que la demanda de hidrógeno a gran escala existente en las refinerías aumentará a medida que se endurezcan las regulaciones sobre el contenido de azufre en los productos petrolíferos; por tanto, es indispensable garantizar el suministro de hidrógeno para la Refinería Miguel Hidalgo, la cual cuenta con la infraestructura de distribución interna de hidrógeno y los insumos necesarios para la operación de la planta, lo que mejorará los márgenes de refinación de Pemex Transformación Industrial y contribuirá a la soberanía energética nacional;
Que las gasolinas requieren tratamientos adicionales para brindarles algunas características de calidad adicionales y poder comercializarlas. Uno de estos procesos es la reformación catalítica, la cual requiere que la corriente de entrada tenga un máximo de contenido de azufre, ya que su catalizador es muy susceptible a la presencia de dicho elemento en cualquiera de sus formas, ese máximo contenido de azufre se logra dentro de la hidrodesulfuradora con el hidrógeno que participa en dicho proceso;
Que el azufre al estar presente en los combustibles, genera óxidos de azufre que son contaminantes ambientales y para reducir esos contaminantes, es preciso que las Refinerías cuenten con autonomía para la producción de hidrógeno, dado que en México no existe un mercado independiente de hidrógeno, ni la infraestructura para suministro a plantas industriales;
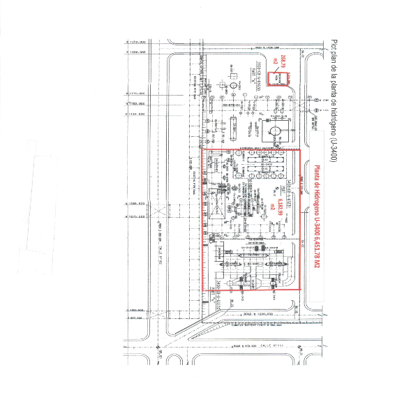
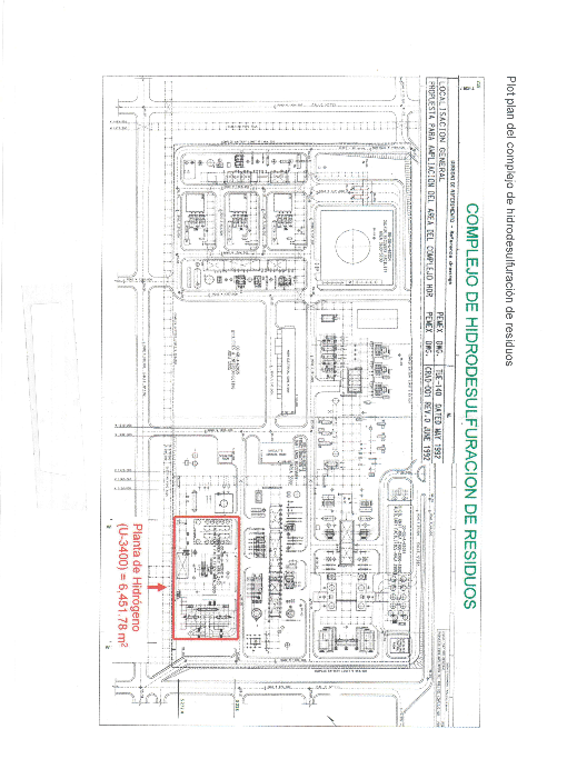
Que Pemex Transformación Industrial elaboró el dictamen técnico respecto de la Planta de Hidrógeno U-3400 que se encuentra ubicada en una fracción de terreno de 6,451.78 m2 dentro de una serie de plantas denominado "Complejo de hidrodesulfuración de residuos" al interior de la Refinería Tula, en Tula de Allende Hidalgo, conforme a los siguientes planos:
 


Que actualmente no existe autonomía de suministro de hidrógeno porque hay dependencia de un tercero y la planta U-3400 es la única fuente de suministro de hidrógeno para el proceso de la Refinería Miguel Hidalgo, lo que pone en riesgo la producción principal de gasolinas y diésel, por no contar con el insumo que permita ser utilizado en el proceso productivo que se realiza en las instalaciones de la refinería y que las plantas reformadoras de naftas no produzcan hidrógeno ni en cantidad ni calidad requeridos;
Que la empresa productiva subsidiaria Pemex Transformación Industrial, debe recuperar la actividad desarrollada en el proceso productivo de la planta productora de Hidrógeno, en la Refinería Tula, en Tula de Allende, para obtener la materia prima que sustentará el proceso de otras plantas para la generación de combustibles limpios, lo que reflejará un beneficio colectivo como la generación de productos para el desarrollo económico del país dentro de los parámetros previstos en la norma, para considerarlo como un combustible dentro de los rangos permitidos para su consumo;
Que, de conformidad con los artículos 27 de la CPEUM, 1o., fracciones I, III Bis, y XII, 2 Bis, 3o., y 4o. de la LE, mediante oficio DGTRI-165-2023 Pemex Transformación Industrial solicitó a la Secretaría de Energía tramitar la emisión de la declaratoria de utilidad pública y la emisión del decreto de ocupación temporal respecto de la Planta de Hidrógeno U-3400 ubicada al interior de la Refinería Miguel Hidalgo, en Tula de Allende, Hidalgo, a favor de Pemex Transformación Industrial;
Que, derivado de la solicitud antes referida, la Secretaría de Energía integró el expediente respectivo, en el cual consta el dictamen técnico que justifica las causas de utilidad pública como lo es la conservación y prestación del servicio de suministro de hidrógeno, en el que Pemex Transformación Industrial, señala que la Planta de Hidrógeno U-3400, ubicada al interior de la Refinería Miguel Hidalgo, es apropiada e idónea para el desarrollo del sector energético nacional y se integre a las actividades de producción de combustibles que requiere de procesos de hidrotratamiento para elaborar productos como gasolinas y diésel indispensables y altamente utilizados por la población;
Que, derivado del dictamen y estudios que integran el expediente de ocupación temporal, se acreditan las causas de utilidad pública, previstas en el artículo 1o., fracciones I, III Bis y XII, de la LE, y 58 de la LH, por lo que es necesario que Pemex Transformación Industrial ingrese, ocupe y opere la Planta Productora de Hidrógeno U-3400, en beneficio del interés público;
Que la ocupación temporal por causa de utilidad pública, como en el caso de la Planta de Hidrógeno U-3400, cumple con los requisitos de la ley, toda vez que atiende necesidades económicas y sociales en beneficio de la población;
Que la industria de hidrocarburos es de utilidad pública, respecto de la cual pueden constituirse servidumbres legales, la ocupación o afectación necesaria para la realización de actividades en la propia industria, lo que otorga una soberanía energética. Al existir un permiso de Refinación de Petróleo para la Refinería de Tula, en la que se encuentra la Planta de Generación de Hidrógeno para el hidroprocesamiento (eliminación de azufre contaminante) de los diferentes productos obtenidos de la destilación del crudo para la obtención de gasolinas en sus diferentes calidades como lo es la MUBA (gasolina de ultra bajo azufre con calidad para la zona metropolitana del país), Gasolina Premium, Turbosina, para su envío al aeropuerto de ciudad de México y otros aeropuertos de la zona de influencia de la Refinería de Tula y diésel de calidad ultra bajo azufre (DUBA) cuyas características son necesarias para su comercialización;
Que la recuperación de la Planta de Hidrógeno U-3400 ubicada al interior de la Refinería Miguel Hidalgo, mejorará los márgenes de refinación de Pemex Transformación Industrial y contribuirá a la soberanía energética nacional, cuya actividad se encuentra permisionada a Pemex Transformación Industrial, mediante el título de permiso número SENER-REF-001-2018, por la Secretaría de Energía, que respalda la operación de la Refinería "Miguel Hidalgo", y se considera de utilidad pública las actividades y servicios amparados por el permiso;
Que la Planta de Coquización Retardada (Proyecto de Aprovechamiento de Residuales de la Refinería Tula) y las Plantas adicionales como la Planta Hidrotratadora de Naftas y la Planta Hidrotratadora de Destilados Intermedios, son plantas altamente consumidoras de hidrógeno y necesarias para la consecución del proyecto de aprovechamiento de residuales Tula, por lo que es procedente la ocupación temporal de la Planta de Hidrógeno U-3400 de la Refinería Miguel Hidalgo, por Pemex Transformación Industrial;
Que la finalidad es que la empresa productiva subsidiaria del Estado, lleve a cabo por sí la actividad desarrollada en el proceso productivo de la Planta productora de Hidrógeno, en la Refinería de Tula Miguel Hidalgo, en Tula de Allende, para contar con el servicio de obtención de la materia prima que sustentará el proceso de otras plantas para la generación de combustibles limpios, en beneficio colectivo; con ello, se cumple con uno de los fines de la utilidad pública, esto es que la propiedad del bien a ocuparse temporalmente pase al Estado para la prestación del servicio y una adecuada operación de la instalación;
Que, toda vez que se satisfacen las causas de utilidad pública previstas en los artículos 1o., fracciones I, III Bis y XII, de la LE, y 58 de la LH, en virtud de que el suministro de hidrógeno que provee la citada planta es necesario para el adecuado funcionamiento de la refinación, lo que reducirá costos de compra en favor de la economía del país, he tenido a bien expedir el siguiente
DECRETO
PRIMERO. Se declara de utilidad pública la conservación y prestación del servicio de suministro de hidrógeno, su uso, aprovechamiento, operación y explotación, y demás mejoras de la Planta Productora de Hidrógeno U-3400, ubicada en la fracción de terreno de 6,451.78 m2 al interior de la Refinería Miguel Hidalgo, ubicada en Tula de Allende, estado de Hidalgo, comprendida por la superficie detallada en los considerandos del presente decreto.
Los planos de dicha planta y expediente formado con motivo del presente decreto, quedan a disposición de todas aquellas personas físicas o morales que acrediten y justifiquen un derecho o un interés jurídico sobre la citada planta.
SEGUNDO. Se ordena la ocupación temporal inmediata a favor de Pemex Transformación Industrial como empresa productiva del Estado subsidiaria de Petróleos Mexicanos, de:
a)    El uso, aprovechamiento, operación y explotación de la Planta de Hidrógeno U-3400 de la Refinería Miguel Hidalgo;
b)    Los demás bienes, derechos e instalaciones necesarios para la prestación del servicio o la adecuada operación de la planta ya señalada, para la Refinería Miguel Hidalgo, en Tula de Allende, estado de Hidalgo;
Debe estarse a lo que dispone el artículo 7o. de la Ley de Expropiación.
TERCERO. Con motivo de la entrada en vigor del presente decreto, Pemex Transformación Industrial, debe cubrir con su presupuesto autorizado el monto de la indemnización que en términos de ley deba pagarse a quienes acrediten su legítimo derecho, de conformidad con el avalúo del Instituto de Administración y Avalúos de Bienes Nacionales.
Dentro de los diez días hábiles siguientes a la notificación de este decreto, los interesados podrán acudir al procedimiento judicial a que se refiere el artículo 11 de la Ley de Expropiación, con el único objeto de controvertir el monto de la indemnización.
CUARTO. Pemex Transformación Industrial queda a cargo de la inscripción del presente decreto en el Registro Público de la Propiedad Federal y en el Registro de la Propiedad estatal que corresponda.
QUINTO. Notifíquese personalmente al titular del bien y derecho, y demás propietarios e interesados legítimos de los bienes y derechos que podrían resultar afectados con este decreto, en el domicilio que de ellos conste en el expediente correspondiente. Para el caso de que no pudiere notificarse personalmente, hágase una segunda publicación en el Diario Oficial de la Federación, dentro de los cinco días hábiles siguientes a la primera publicación, conforme al artículo 4o. de la Ley de Expropiación.
SEXTO. Publíquese el presente decreto en el Diario Oficial de la Federación.
Dado en la residencia del Poder Ejecutivo Federal, en Ciudad de México a 28 de diciembre de 2023.- Andrés Manuel López Obrador.- Rúbrica.- El Secretario de Energía, Miguel Ángel Maciel Torres.- Rúbrica.