DECRETO por el que se declara monumento artístico el conjunto en el que se localizan el Centro Scop y la Torre Central de Telecomunicaciones y Oficina Telegráfica.

Al margen un sello con el Escudo Nacional, que dice: Estados Unidos Mexicanos.- Presidencia de la República.

ANDRÉS MANUEL LÓPEZ OBRADOR, presidente de los Estados Unidos Mexicanos, en ejercicio de la facultad que me confiere el artículo 89, fracción I, de la Constitución Política de los Estados Unidos Mexicanos y con fundamento en los artículos 4o., párrafo decimosegundo, de la propia Constitución; 32, 36, 41 y 41 Bis de la Ley Orgánica de la Administración Pública Federal; 2o., 3o., 5o., 5o. TER, 33 y 45 de la Ley Federal sobre Monumentos y Zonas Arqueológicos, Artísticos e Históricos; 6, fracción VIII, de la Ley General de Bienes Nacionales; 2, fracciones I y V, de la Ley que crea el Instituto Nacional de Bellas Artes y Literatura; 3o. y 33 de la Ley de Planeación; 6, fracción VI, 7, 8, fracciones I y XIII, 10, 11, 12 y 53, fracción V, de la Ley General de Asentamientos Humanos, Ordenamiento Territorial y Desarrollo Urbano; 9, 9 bis y 9 ter del Reglamento de la Ley Federal sobre Monumentos y Zonas Arqueológicas, Artísticos e Históricos; 2, fracciones III y VIII, de la Ley General de Cultura y Derechos Culturales, y
CONSIDERANDO
Que la Constitución Política de los Estados Unidos Mexicanos, reconoce en su artículo 4o., párrafo decimosegundo, el derecho de toda persona al acceso a la cultura y al disfrute de los bienes y servicios que presta el Estado en la materia, así como el ejercicio de sus derechos culturales;
Que el Estado mexicano es parte de la Convención para la protección del patrimonio mundial, cultural y natural, adoptada en París, Francia, el 23 de noviembre de 1972, aprobada por la Cámara de Senadores el 22 de diciembre de 1983, publicada en el Diario Oficial de la Federación (DOF) el 2 de mayo de 1984, la cual en su artículo 1 considera como patrimonio cultural, entre otros "...los conjuntos: grupos de construcciones, aisladas o reunidas, cuya arquitectura, unidad e integración en el paisaje les dé un valor universal excepcional desde el punto de vista de la historia, del arte o de la ciencia". Asimismo, refiere en su artículo 4o. que los Estados Parte reconocen "la obligación de identificar, proteger, conservar, rehabilitar y transmitir a las generaciones futuras el patrimonio cultural y natural situado en su territorio";
Que la resolución A/HRC/RES/37/17, aprobada por el Consejo de Derechos Humanos de la Naciones Unidas(1) el 22 de marzo de 2018, señala que "...la destrucción del patrimonio cultural o los daños a éste pueden tener un efecto perjudicial e irreversible en el disfrute de los derechos culturales, en particular el derecho de toda persona a participar en la vida cultural, lo que incluye la capacidad de acceder al patrimonio cultural y disfrutar de él", por lo cual exhorta a todos los Estados a que respeten, promuevan y protejan el referido derecho;
Que el Plan Nacional de Desarrollo 2019-2024, publicado en el DOF el 12 de julio de 2019, es el principal instrumento de planeación de la presente administración. Se articula por 12 principios rectores y tres ejes generales, los cuales promueven la transformación de la vida pública en México y propugnan un nuevo modelo de desarrollo económico y de ordenamiento político, el cual contempla como uno de sus principios "No dejar a nadie atrás, no dejar a nadie fuera". Esto implica la búsqueda de un modelo de desarrollo respetuoso de los habitantes y del hábitat, equitativo, orientado a subsanar y no a agudizar las desigualdades, defender la diversidad cultural y del ambiente natural, sensible a las modalidades y singularidades económicas, regionales y locales y consciente de las necesidades de los habitantes futuros del país, a quienes no podemos heredar un territorio en ruinas;
Que el Programa Sectorial de Cultura 2020-2024, publicado en el DOF el 3 de julio de 2020, determina como uno de sus objetivos prioritarios la protección y conservación de la diversidad, la memoria y los patrimonios culturales de México, mediante acciones de preservación, investigación, protección, promoción de su conocimiento y apropiación. También establece, como acciones puntuales para el cumplimiento de dicho objetivo, la elaboración de expedientes técnicos para la formulación de declaratorias de los bienes patrimoniales para facilitar su protección mediante el marco jurídico nacional, así como convenios o convenciones internacionales y la ejecución de acciones de conservación de bienes muebles e inmuebles culturales para asegurar su transmisión a las futuras generaciones;
Que el artículo 33 de la Ley Federal sobre Monumentos y Zonas Arqueológicos, Artísticos e Históricos (LFMZAAH) establece que son monumentos artísticos los bienes que revisten valor estético relevante con las siguientes características: representatividad, inserción en determinada corriente estilística, grado de innovación, materiales, técnicas utilizados y otras análogas, y en caso de bienes inmuebles su significación en el contexto urbano;
Que el artículo 2, fracciones III y VIII, de la Ley General de Cultura y Derechos Culturales, señala que tiene por objeto, entre otros, "[p]romover y respetar la continuidad y el conocimiento de la cultura del país en todas sus manifestaciones y expresiones (...) Promover entre la población el principio de solidaridad y responsabilidad en la preservación, conservación, mejoramiento y restauración de los bienes y servicios que presta el Estado en la materia";
Que el artículo 2°, fracciones I y III, de la Ley que crea el Instituto Nacional de Bellas Artes y Literatura, señala que dicho instituto tiene, entre otras funciones, "[e]l cultivo, fomento, estímulo, creación e investigación de las bellas artes en las ramas de la música, las artes plásticas, las artes dramáticas y la danza, las bellas letras en todos sus géneros y la arquitectura (...) El fomento, la organización y la difusión de las Bellas Artes, inclusive las bellas letras, por todos los medios posibles y orientada esta última hacia el público en general y en especial hacia las clases populares y la población escolar";
Que el Centro Scop, antes Oficinas Centrales de la Secretaría de Comunicaciones y Transportes (Centro Nacional), ubicado en la avenida Xola, número 1561, colonia Narvarte Oriente, alcaldía Benito Juárez, código postal 03023, Ciudad de México, es una de las obras más destacadas de la arquitectura del siglo XX; su construcción inició en 1953 bajo el proyecto y la dirección técnica del arquitecto Carlos Lazo Barreiro, quien tenía a su cargo a la entonces Secretaría de Comunicaciones y Obras Públicas, hoy Secretaría de Infraestructura, Comunicaciones y Transportes, y de los arquitectos Augusto Pérez Palacios y Raúl Cacho Álvarez. Dicha obra concluyó en 1954 como parte de los objetivos del Programa Nacional de Comunicaciones, que entre otros, concentraba sus dependencias dispersas en Ciudad de México, en una sede integradora(2);
Que en la función narrativa de las obras artísticas y arquitectónicas del Centro Scop, coinciden las tareas gubernamentales con un discurso público de fácil comprensión representativo de su momento, que enfatizan los valores históricos del México prehispánico y hasta el periodo revolucionario, así como los ideales en los que se refleja la sociedad mexicana de la segunda mitad del siglo XX(3);
Que se destacó como un proyecto innovador de creación artística colectiva que contó con la intervención de autores emblemáticos de las artes plásticas mexicanas, tales como los maestros José Chávez Morado y Juan O´ Gorman, y sus discípulos del Taller de Integración Plástica; Arturo Estrada, Guillermo Monroy, José Gordillo, Jorge Best, Rosendo Soto y Luis García Robledo, en los trece murales de mosaico que cubren los muros de sus fachadas y algunos espacios interiores; asimismo, el altorrelieve escultórico del maestro José de Jesús Francisco Zúñiga Chavarría que enmarca el acceso y la escultura de bulto del maestro Rodrigo Arenas Betancourt, ubicados en la plaza principal del conjunto(4);
Que esta obra relevante presenta un alto grado de innovación tecnológica y simbólica en su construcción basada en un sistema de estructuras de concreto armado y otros materiales derivados de procesos industriales como el tabique, el acero y el vidrio; particularmente en los murales de mosaico, por la gran extensión de su superficie fueron habilitados ingeniosamente con una serie de paneles independientes constituidos por un soporte de concreto en el que se adhirieron teselas de hasta 150 variedades pétreas extraídas de las ricas canteras mexicanas por su diversidad de colores y matices, y también por fragmentos de vidrio, barro esmaltado y ladrillo(5);
Que la Torre Central de Telecomunicaciones y Oficina Telegráfica ubicada en la avenida Eje Central Lázaro Cárdenas, número 567, colonia Narvarte, alcaldía Benito Juárez, código postal 03020, Ciudad de México, es un ejemplo destacado de la arquitectura y obra pública de la segunda mitad del siglo XX; fue construida en 1968 e inaugurada el 6 de octubre del mismo año; asimismo, es atribuida al arquitecto Rafael Mijares Alcérreca, el cual se desempeñaba profesionalmente en la entonces Secretaría de Comunicaciones y Obras Públicas, hoy Secretaría de Infraestructura, Comunicaciones y Transportes, y a su colaborador el ingeniero Juan José Padilla, bajo los objetivos del entonces Programa Nacional de Telecomunicaciones(6);
Que la Torre Central de Telecomunicaciones y Oficina Telegráfica forma parte de la infraestructura pública construida como una segunda etapa del Centro Scop para llevar a cabo los Juegos de la XIX Olimpiada o Juegos Olímpicos de México de 1968, la cual estableció las telecomunicaciones satelitales con la Red Federal de Microondas y fue un referente en la historia de las comunicaciones en México(7);
Que esta obra arquitectónica es representativa de la corriente estilística denominada movimiento moderno en su vertiente internacional de finales de los años sesenta del siglo XX, la cual se distingue por construcciones que alcanzan nuevas alturas dado el desarrollo en las tecnologías para la eficiencia y uso del concreto armado, se generaliza el uso de materiales prefabricados que originó un nuevo lenguaje arquitectónico de estilizados muros cortina que rompen con la antigua relación de los macizos y los vanos en las fachadas de las construcciones(8);
Que la Torre Central de Telecomunicaciones y Oficina Telegráfica es representativa del espíritu de la época, que innovó con un funcional partido arquitectónico que plantea un robusto basamento en tres niveles; asimismo, rompió con el alineamiento del predio y procuró una plaza de acceso del que emerge al norte una torre, cuyas fachadas presentan planos de escalonamiento y al oeste una base en la que resaltan dos losas planas en forma hexagonal para la colocación de antenas. De igual manera, sobresale la antena para microondas a manera de insignia(9);
Que la Torre Central de Telecomunicaciones y Oficina Telegráfica presenta un alto grado de innovación tecnológica y el uso de materiales industrializados en su construcción basada en una estructura de concreto armado en forma de H, que concentra las instalaciones y circulaciones verticales en un núcleo de servicios que permite la modulación y la flexibilidad de los espacios interiores, los muros cortina en las fachadas norte y sur presentan un diseño lineal derivado de la retícula de aluminio que soporta los vidrios y armoniza los masivos elementos de concreto en las fachadas este y oeste lo que robustece la unidad formal de la construcción(10);
Que el conjunto conformado por el Centro Scop y la Torre Central de Telecomunicaciones y Oficina Telegráfica es un ejemplo relevante de integración arquitectónica al contexto urbano de la colonia Narvarte, de Ciudad de México, por su localización estratégica a nivel local y regional, su masividad, perfiles y altura; asimismo, permite la interacción de sus espacios públicos con el entorno y la apreciación de sus valores arquitectónicos y plásticos de la narrativa que la obra artística integra, además de ser un elemento significativo del paisaje urbano de dicha ciudad, y un referente en la memoria colectiva y simbólica de los mexicanos(11);
Que dicho conjunto es propiedad del Gobierno federal, como consta en las cédulas de inventario del Patrimonio Inmobiliario Federal y Paraestatal, emitidas por el Instituto de Administración y Avalúos de Bienes Nacionales, con registro federal inmobiliario número 9-17175-1 respecto al Centro Scop, y 9-9132-9 por la Torre Central de Telecomunicaciones y Oficina Telegráfica;
Que en el caso específico del Centro Scop se debe considerar el análisis técnico e histórico de cada uno de los edificios que lo conforman, en relación con los antecedentes de las afectaciones derivadas de los sismos de 1985 y 2017, con base en los estudios y revisiones de diversas especialidades que sean necesarias para determinar los alcances de la intervención en cada una de las construcciones, así como los proyectos especiales de rehabilitación, de paisaje, entre otras acciones, que permitan propuestas sustentables y de integración contemporánea al conjunto, para mantener toda la obra plástica patrimonio artístico en el sitio, con el acompañamiento de las áreas técnicas y normativas del Instituto Nacional de Bellas Artes y Literatura (INBAL);
Que en la primera sesión de 2021, celebrada el 9 de junio de 2021, la Comisión Nacional de Zonas y Monumentos Artísticos del INBAL, por acuerdo "ÚNICO" aprobó "LA VALIDACIÓN DE LA DECLARATORIA DE MONUMENTO ARTÍSTICO DEL CONJUNTO CENTRO NACIONAL, CONOCIDO COMO CENTRO SCOP, CONFORME AL ARTÍCULO 34 DE LA LEY FEDERAL SOBRE MONUMENTOS Y ZONAS ARQUEOLÓGICOS, ARTÍSTICOS E HISTÓRICOS";
Que con el objeto de preservar y conservar el patrimonio cultural ubicado en el conjunto Centro Scop y Torre Central de Telecomunicaciones y Oficina Telegráfica, el 11 de abril de 2023, la directora general del INBAL, conforme al procedimiento establecido en la LFMZAAH, emitió el "Acuerdo por el que se da inicio al procedimiento para la emisión de la Declaratoria de Monumento Artístico del conjunto en el que se emplazan el Centro SCOP antes Oficinas Centrales de la Secretaría de Comunicaciones y Transportes (Centro Nacional) ubicado en la Avenida Xola número 1651, Colonia Narvarte Oriente, Alcaldía Benito Juárez, Código Postal 03023 y la Torre Central de Telecomunicaciones y Oficina Telegráfica ubicada en la Avenida Eje Central Lázaro Cárdenas número 567, Colonia Narvarte, Alcaldía Benito Juárez, Código Postal 03020, ambos en Ciudad de México";
Que, en cumplimiento de los artículos 14 y 16 de la CPEUM y 5o. TER, fracción III, de la LFMZAAH, se otorgó garantía de audiencia a la Secretaría de Infraestructura, Comunicaciones y Transportes, a la Financiera para el Bienestar, a la Secretaría de Bienestar y al administrador de la Unidad Habitacional IMSS Narvarte, toda vez que se les notificó, el 4 de mayo de 2023, el "Acuerdo por el que se da inicio al procedimiento para la emisión de la Declaratoria de Monumento Artístico del conjunto en el que se emplazan el Centro SCOP antes Oficinas Centrales de la Secretaría de Comunicaciones y Transportes (Centro Nacional) ubicado en la Avenida Xola número 1561, Colonia Narvarte Oriente, Alcaldía Benito Juárez, Código Postal 03023 y la Torre Central de Telecomunicaciones y Oficina Telegráfica ubicada en la Avenida Eje Central Lázaro Cárdenas número 567, Colonia Narvarte, Alcaldía Benito Juárez, Código Postal 03020, ambos en Ciudad de México". Asimismo, se les informó que contaban con 15 días hábiles para manifestar lo que a su derecho conviniera. En dicho plazo manifestaron su conformidad con el procedimiento;
Que la directora general del INBAL emitió opinión de procedencia respecto de la declaratoria de monumentos artísticos, el 5 de junio de 2023, y remitió el expediente técnico, y actuaciones administrativas y jurídicas a la Secretaría de Cultura, y
Que el gobierno de México tiene la obligación de garantizar el derecho a la cultura, a proteger, conservar, rehabilitar y asegurar a las futuras generaciones el patrimonio cultural mexicano, como lo son el Centro Scop y la Torre Central de Telecomunicaciones y Oficina Telegráfica; y toda vez que la Secretaría de Cultura revisó las constancias que integran el expediente técnico respectivo y no existen procedimientos pendientes por desahogar, en términos de la LFMZAAH, he tenido a bien expedir el siguiente
DECRETO
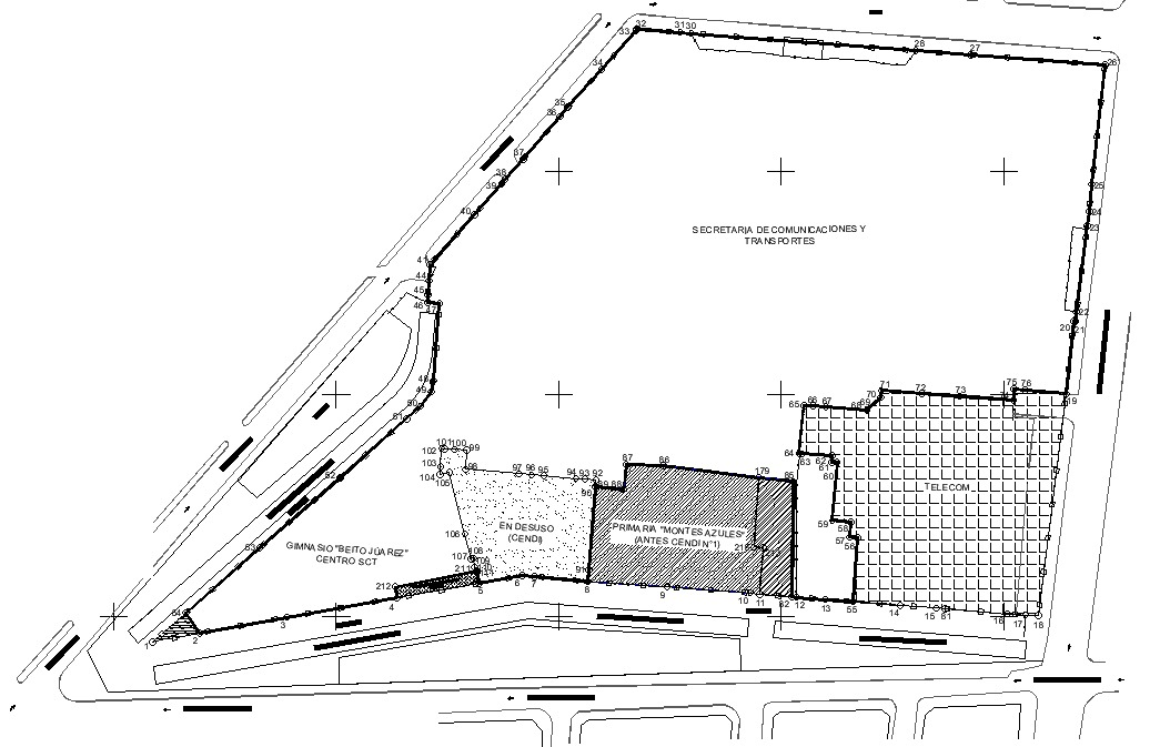
PRIMERO. Se declara monumento artístico el conjunto en el que se localizan el Centro Scop, antes Oficinas Centrales de la Secretaría de Comunicaciones y Transportes (Centro Nacional), ubicado en la avenida Xola, número 1561, colonia Narvarte Oriente, alcaldía Benito Juárez, código postal 03023, y la Torre Central de Telecomunicaciones y Oficina Telegráfica ubicada en la avenida Eje Central Lázaro Cárdenas, número 567, colonia Narvarte, alcaldía Benito Juárez, código postal 03020, ambos en Ciudad de México, conforme al siguiente plano:

*Coordenadas al centro del polígono: latitud 19° 23' 38.10" N y longitud 99° 08' 52.10" W.
SEGUNDO. Para realizar cualquier obra de conservación, restauración, excavación, cimentación, construcción y/o liberación, incluyendo acciones de demolición en los inmuebles que así lo ameriten del monumento artístico a que se refiere este decreto, así como en los colindantes que puedan afectar las características de los mismos, se debe obtener permiso del Instituto Nacional de Bellas Artes y Literatura en términos del Reglamento de la Ley Federal sobre Monumentos y Zonas Arqueológicas, Artísticos e Históricos.
TERCERO. La reproducción del monumento artístico con fines comerciales, se debe sujetar a las disposiciones establecidas en la Ley Federal sobre Monumentos y Zonas Arqueológicos, Artísticos e Históricos, su reglamento, Ley Federal de Derechos de Autor y demás disposiciones jurídicas aplicables.
CUARTO. La Secretaría de Cultura y el Instituto Nacional de Bellas Artes y Literatura, en coordinación con la Secretaría de Infraestructura, Comunicaciones y Transportes, en un plazo de 30 días naturales, contados a partir de la entrada en vigor del presente decreto, establecerán mecanismos de colaboración que definan los criterios para la protección, conservación, promoción y difusión del monumento artístico, enfocados al conocimiento, al estudio, al respeto y al aprecio del patrimonio cultural.
Asimismo, deben promover programas educativos y de divulgación que estimulen entre la población el conocimiento, el estudio, el respeto y el aprecio del patrimonio cultural del monumento artístico.
QUINTO. El Instituto Nacional de Bellas Artes y Literatura debe vigilar el cumplimiento de lo ordenado por este decreto, en los términos de las disposiciones aplicables.
SEXTO. Las autoridades de los tres niveles de gobierno, en el ámbito de su competencia, así como los particulares, podrán colaborar con el Instituto Nacional de Bellas Artes y Literatura en el cumplimiento de lo previsto en este decreto. Asimismo, deben hacer del conocimiento a las autoridades competentes cualquier situación que ponga en peligro el monumento artístico.
SÉPTIMO. La Secretaría de Infraestructura, Comunicaciones y Transportes mediante los instrumentos jurídicos que correspondan, con el apoyo del Instituto Nacional de Bellas Artes y Literatura, en colaboración con las autoridades de los tres niveles de gobierno correspondientes, debe establecer las acciones para la regulación del uso de suelo para la preservación del monumento artístico y su entorno ecológico.
OCTAVO. La Secretaría de Cultura y la Secretaría de Infraestructura, Comunicaciones y Transportes deben coordinarse para implementar un proyecto de intervención que garantice la preservación, la conservación y la permanencia de la obra mural y escultórica que existe en el sitio, en términos de los dictámenes y estudios técnicos relativos al estado de seguridad estructural del monumento artístico que se refiere en el presente decreto. Asimismo, se preservará y mejorará el arbolado y área verde actual, así como los servicios necesarios para lograr una propuesta de uso mixto y disfrute público.
NOVENO. Inscríbase la presente declaratoria y su plano oficial en el Registro Público de Monumentos y Zonas Artísticos dependiente del Instituto Nacional de Bellas Artes y Literatura y en el Registro Público de la Propiedad de Ciudad de México en el plazo de 15 días a partir de su publicación en el Diario Oficial de la Federación; notifíquese en términos del artículo 23 de la Ley Federal sobre Monumentos y Zonas Arqueológicos, Artísticos e Históricos.
TRANSITORIOS
PRIMERO. El presente decreto entra en vigor al día siguiente de su publicación en el Diario Oficial de la Federación.
SEGUNDO. Las erogaciones que, en su caso, se generen con motivo de la entrada en vigor del presente decreto, deben ser cubiertas con cargo al presupuesto autorizado para los ejecutores de gasto correspondientes en el Presupuesto de Egresos de la Federación para el ejercicio fiscal 2023, por lo que no se incrementará su presupuesto y no se autorizarán recursos adicionales para el presente ejercicio fiscal y para los subsecuentes.
Dado en la residencia del Ejecutivo Federal, en Ciudad de México a 13 de octubre de 2023.- Andrés Manuel López Obrador.- Rúbrica.- La Secretaria del Bienestar, Ariadna Montiel Reyes.- Rúbrica.- El Secretario de Infraestructura, Comunicaciones y Transportes, Jorge Nuño Lara.- Rúbrica.- El Secretario de Desarrollo Agrario, Territorial y Urbano, Román Guillermo Meyer Falcón.- Rúbrica.- La Secretaria de Cultura, Alejandra Frausto Guerrero.- Rúbrica.
 
 
1    Naciones Unidas, A/HRC/RES/37/17 Los derechos culturales y la proyección del patrimonio cultural en Resolución aprobada por el Consejo de Derechos Humanos el 22 de marzo de 2018, [en línea], <https://digitallibrary.un.org/record/1486785?ln=es>, [consulta: 2 de marzo, 2023].
2    Instituto Nacional de Bellas Artes y Literatura (2020) Propuesta de Declaratoria de Monumento Artístico, CENTRO SCOP ANTES OFICINAS CENTRALES DE LA SECRETARÍA DE COMUNICACIONES Y TRANSPORTES (CENTRO NACIONAL) 1953-1954, TORRE CENTRAL DE TELECOMUNICACIONES Y OFICINA TELEGRÁFICA 1968, Expediente Técnico enviado a la Comisión Nacional de Zonas y Monumentos Artísticos para la Primera Sesión de 2021 llevada a cabo el 09 de junio de 2021, págs. 3, 4, 10 y 11.
3    Ibidem, págs. 27 y 28.
4    Ibidem, págs. 11, 13, 14 y 29.
5    Ibidem, págs. 11, 29 y 30.
6    Ibidem, pág. 4, 35 y 37.
7    Ibidem, págs. 37 y 43.
8    Ibidem, pág. 43, 44, 45 y 46.
9    Ibidem, págs. 38, 43, 44 y 45.
10   Ibidem, págs. 38, 43, 44 y 45.
11   Ibidem, págs. 31, 32 y 46.