CONVENIO de Coordinación en materia de reasignación de recursos que celebran la Secretaría de Marina y el Estado de Sinaloa, para llevar a cabo el proyecto de ampliación, remodelación y equipamiento del Hospital Naval de Especialidades de Mazatlán, en dicha entidad federativa.

CONVENIO DE COORDINACIÓN EN MATERIA DE REASIGNACIÓN DE RECURSOS QUE CELEBRAN POR UNA PARTE EL EJECUTIVO FEDERAL, POR CONDUCTO DE LA SECRETARÍA DE MARINA A LA QUE EN ADELANTE SE LE DENOMINARA "SEMAR" REPRESENTADA POR SU TITULAR EL C. JOSÉ RAFAEL OJEDA DURÁN, Y POR LA OTRA PARTE EL EJECUTIVO DEL ESTADO LIBRE Y SOBERANO DE SINALOA (EL GOBIERNO DE SINALOA) AL QUE EN LO SUCESIVO SE DENOMINARA LA ENTIDAD FEDERATIVA, REPRESENTADA POR EL C. QUIRINO ORDAZ COPPEL, EN SU CARACTER DE GOBERNADOR CONSTITUCIONAL, ASISTIDO POR EL C. GONZALO GÓMEZ FLORES, SECRETARIO GENERAL DE GOBIERNO, C. LUIS ALBERTO DE LA VEGA ARMENTA, SECRETARIO DE ADMINISTRACIÓN Y FINANZAS, EL C. OSBALDO LÓPEZ ANGULO, SECRETARIO DE OBRAS PÚBLICAS, Y LA C. MARÍA GUADALUPE YAN RUBIO, SECRETARIA DE TRANSPARENCIA Y RENDICIÓN DE CUENTAS, CONFORME A LOS ANTECEDENTES, DECLARACIONES Y CLÁUSULAS SIGUIENTES:
ANTECEDENTES
I.     La Ley Federal de Presupuesto y Responsabilidad Hacendaria, dispone en el artículo 83, segundo párrafo, que las dependencias y entidades de la Administración Pública Federal que requieran suscribir convenios de reasignación, deberán apegarse al modelo de convenio emitido por la Secretaría de Hacienda y Crédito Público (SHCP) y la Secretaría de la Función Pública (SFP), así como obtener la autorización presupuestaria de la SHCP.
II.     La Dirección General de Programación y Presupuesto (DGPyP A) de la SHCP, mediante Oficio No. 315-A.-0857 de fecha 25 de marzo de 2021, emitió su dictamen de suficiencia presupuestaria para que la SEMAR reasigne recursos a la ENTIDAD FEDERATIVA con cargo a su presupuesto autorizado.
DECLARACIONES
I. De la SEMAR:
1.     Que es una dependencia del Poder Ejecutivo Federal que cuenta con la competencia necesaria para celebrar este Convenio, de conformidad con lo señalado en los artículos 26 y 30 de la Ley Orgánica de la Administración Pública Federal.
2.     Que en el ámbito de su competencia le corresponde garantizar la seguridad marítima, salvamento en caso de accidentes o incidentes de embarcaciones y búsqueda y rescate para salvaguardar la vida humana en la mar y el control de tráfico marítimo.
       Asimismo, le corresponde construir, mantener y operar unidades y establecimientos navales, para el cumplimiento de la misión de la Armada de México, así como prestar servicios en el ámbito de su competencia que coadyuven al desarrollo marítimo nacional.
3.     Que el Secretario de Marina, el Almirante José Rafael Ojeda Durán, cuenta con las facultades suficientes y necesarias que le permiten suscribir el presente Convenio, según se desprende de lo previsto en los artículos 5 y 6, fracciones X, XVI y XX, del Reglamento Interior de la Secretaría de Marina.
4.     Que para todos los efectos legales relacionados con este Convenio señala como su domicilio el ubicado en Avenida Heroica Escuela Naval Militar Núm. 861, Los Cipreses, Alcaldía Coyoacán, Ciudad de México. C.P. 04830.
II. De la ENTIDAD FEDERATIVA:
1.     Que de conformidad con los artículos 40, 42, fracción I y 43 de la Constitución Política de los Estados Unidos Mexicanos; y los artículos 1° y 3° de la Constitución Política del Estado de Sinaloa, es un Estado libre y soberano que forma parte integrante de la federación y tiene personalidad jurídica propia.
2.     Que concurre a la celebración del presente Convenio a través del Gobernador Constitucional del Estado de Sinaloa, C. Quirino Ordaz Coppel, quien acredita su personalidad mediante Constancia de Mayoría de fecha 12 de junio de 2016, emitida por el Consejo General del Instituto Electoral del Estado de Sinaloa, y cuenta con las facultades suficientes para suscribir el presente Convenio, en términos de lo dispuesto por los artículos 55, 65 fracción XXIII Bis y 66 primer párrafo de la Constitución Política del Estado de Sinaloa; 1°, 2°, 3°, 6°, 7°, 8°, 9° y 20 de la Ley Orgánica de la Administración Pública del Estado de Sinaloa; 7, 9, 11 y 12 del Reglamento Orgánico de la Administración Pública del Estado de Sinaloa. Asimismo, manifiesta que dichas facultades no han
terminado, ni le han sido revocadas, modificadas ni limitadas de manera alguna a esta fecha.
3.     El C. Gonzalo Gómez Flores, Secretario General de Gobierno, acredita su personalidad con el nombramiento de fecha 1 de enero de 2017, expedido por el Gobernador Constitucional del Estado, y cuenta con facultades suficientes para suscribir el presente Convenio, en términos de lo previsto por los Artículos 66, 69 y 72 de la Constitución Política del Estado de Sinaloa; 1° 3°, 9°, 11 y 21 de la Ley Orgánica de la Administración Pública del Estado de Sinaloa; 1, 2, 4, 15, fracción I, 17 y 36, del Reglamento Orgánico de la Administración Pública del Estado de Sinaloa; 1, 9 fracción X y 10 fracciones VII y XX del Reglamento Interior de la Secretaría General de Gobierno. Asimismo, manifiesta que dichas facultades no han terminado, ni le han sido revocadas, modificadas ni limitadas de manera alguna a esta fecha.
4.     El C. Luis Alberto de la Vega Armenta, Secretario de Administración y Finanzas, acredita su personalidad con el nombramiento de fecha 04 de febrero de 2020, expedido por el Gobernador Constitucional del Estado, y cuenta con facultades suficientes para suscribir el presente Convenio, en términos de lo previsto por los Artículos 66, 69 y 72 de la Constitución Política del Estado de Sinaloa; 1° 3°, 9°, 11 y 21 de la Ley Orgánica de la Administración Pública del Estado de Sinaloa; 1, 2, 4, 15, fracción II, 18 y 36, del Reglamento Orgánico de la Administración Pública del Estado de Sinaloa; 1, 9, fracción I y 10, del Reglamento Interior de la Secretaría de Administración y Finanzas. Asimismo, manifiesta que dichas facultades no han terminado, ni le han sido revocadas, modificadas ni limitadas de manera alguna a esta fecha.
5.     El C. Osbaldo López Angulo, Secretario de Obras Públicas, acredita su personalidad con el nombramiento de fecha 1 de enero de 2017, expedido por el Gobernador Constitucional del Estado, y cuenta con facultades suficientes para suscribir el presente Convenio, en términos de lo previsto por los Artículos 66, 69 y 72 de la Constitución Política del Estado de Sinaloa; 1° 3°, 9°, 11 y 21 de la Ley Orgánica de la Administración Pública del Estado de Sinaloa; 1, 2, 4, 15, fracción VII, 23 y 36, del Reglamento Orgánico de la Administración Pública del Estado de Sinaloa; 2 y 11, fracción XX del Reglamento Interior de la Secretaría de Obras Públicas. Asimismo, manifiesta que dichas facultades no han terminado, ni le han sido revocadas, modificadas ni limitadas de manera alguna a esta fecha.
6.     La C. María Guadalupe Yan Rubio, Secretaria de Transparencia y Rendición de Cuentas, acredita su personalidad con el nombramiento de fecha 1 de enero de 2017, expedido por el Gobernador Constitucional del Estado, y cuenta con facultades suficientes para suscribir el presente Convenio, en términos de lo previsto por los Artículos 66, 69 y 72 de la Constitución Política del Estado de Sinaloa; 1° 3°, 9°, 11 y 21 de la Ley Orgánica de la Administración Pública del Estado de Sinaloa; 1, 2, 4, 15, fracción XIV, 30 y 36, del Reglamento Orgánico de la Administración Pública del Estado de Sinaloa; 2, 6, 7, fracción I y 8, fracción XXI, del Reglamento Interior de la Secretaría de Transparencia y Rendición de Cuentas. Asimismo, manifiesta que dichas facultades no han terminado, ni le han sido revocadas, modificadas ni limitadas de manera alguna a esta fecha.
7.     Que sus prioridades para alcanzar los objetivos pretendidos a través del presente instrumento, el coordinar la participación de los gobiernos Federal y Local, en materia de la "Construcción de las etapas 2 y 3 de la ampliación del Hospital Naval de Mazatlán, Sinaloa, el cual incrementará la oferta de servicios en el área de influencia, considerado como una instalación estratégica para garantizar la atención de los derechohabientes, enfrentar contingencias en apoyo de la población general y garantizar la seguridad del personal y usuarios.
8.     Que para todos los efectos legales relacionados con este Convenio señala como su domicilio el ubicado en Avenida Insurgentes S/N Col. Centro Sinaloa, Culiacán, Sinaloa C.P. 80129.
En virtud de lo anterior y con fundamento en los artículos 90 de la Constitución Política de los Estados Unidos Mexicanos; 22, 26 y 30 de la Ley Orgánica de la Administración Pública Federal; 7, 8 fracciones IX, XVIII y XXVII de la Ley de Navegación y Comercio Marítimos; 1 de la Ley de Adquisiciones, Arrendamientos y Servicios del Sector Público; 1 de la Ley de Obras Públicas y Servicios Relacionados con las Mismas; 82 y 83 de la Ley Federal de Presupuesto y Responsabilidad Hacendaria, y 223, 224, 225 y 226 de su Reglamento, así como en los artículos 1º , 3º, 55, 65 fracción XXIII Bis, 66, 69 y 72 de la Constitución Política del Estado Libre y Soberano de Sinaloa y los artículos 1º, 2º, 3º, 7°, 9°, 11 y 21 de la Ley Orgánica de la Administración Pública del Estado de Sinaloa, 1°, 15, 17, 18, 23, 30 y 36 del Reglamento Orgánico de la Administración Pública del Estado de Sinaloa, y Segundo transitorio de los "Lineamientos para el ejercicio eficaz, transparente, ágil y eficiente de los recursos que transfieren las dependencias y entidades de la Administración Pública Federal a las entidades federativas mediante convenios de coordinación en materia de reasignación de recursos", publicados en el Diario Oficial de la Federación el 28 de marzo de 2007 y demás disposiciones jurídicas aplicables, las partes celebran el presente Convenio al tenor de las siguientes:
CLÁUSULAS
 
PRIMERA.- OBJETO.- El presente Convenio y los anexos que forman parte integrante del mismo, tienen por objeto transferir recursos presupuestarios federales a la ENTIDAD FEDERATIVA para coordinar su participación con el Ejecutivo Federal en materia de Infraestructura Hospitalaria; reasignar a aquélla la ejecución de funciones, programas o proyectos federales; para el ejercicio fiscal 2021; definir la aplicación que se dará a tales recursos; precisar los compromisos que sobre el particular asumen la ENTIDAD FEDERATIVA y el Ejecutivo Federal; y establecer los mecanismos para la evaluación y control de su ejercicio.
Los recursos que reasigna el Ejecutivo Federal, a que se refiere la cláusula segunda del presente Convenio, se aplicarán al siguiente proyecto y hasta por los importes que a continuación se mencionan:
PROYECTO:
IMPORTE
Construcción de las etapas 2 y 3 de la ampliación del Hospital Naval de Mazatlán, Sinaloa.
$123,828,000.00
 
El proyecto a que se refiere el párrafo anterior se prevé forma detallada en el Anexo 1 del presente Convenio.
Con el objeto de asegurar la aplicación y efectividad del presente Convenio, las partes se sujetarán a lo establecido en el mismo y sus correspondientes anexos, a los Lineamientos para el ejercicio eficaz, transparente, ágil y eficiente de los recursos que transfieren las dependencias y entidades de la Administración Pública Federal a las entidades federativas mediante convenios de coordinación en materia de reasignación de recursos, así como a las demás disposiciones jurídicas aplicables.
SEGUNDA.- REASIGNACIÓN.- Para la realización de las acciones objeto del presente Convenio, el Ejecutivo Federal reasignará a la ENTIDAD FEDERATIVA recursos presupuestarios federales hasta por la cantidad de $123,828,000.00 (Ciento veintitrés millones ochocientos veintiocho mil pesos 00/100 M.N.) con cargo al presupuesto de la SEMAR, de acuerdo con los plazos y calendario establecidos que se precisan en el Anexo 2 de este Convenio.
Los recursos a que se refiere el párrafo anterior, conforme a los artículos 82, fracción IX, y 83, primer párrafo, de la Ley Federal de Presupuesto y Responsabilidad Hacendaria, se radicarán, a través de la Secretaría de Administración y Finanzas de la ENTIDAD FEDERATIVA, en la cuenta bancaria productiva específica que ésta establezca para tal efecto, en forma previa a la entrega de los recursos, en la institución de crédito bancaria que la misma determine, informando de ello a la SEMAR, con la finalidad de que los recursos reasignados y sus rendimientos financieros estén debidamente identificados.
Los recursos presupuestarios federales que se reasignen a la ENTIDAD FEDERATIVA en los términos de este Convenio no pierden su carácter federal.
A efecto de dar cumplimiento a lo dispuesto en el artículo 82, fracción II, de la Ley Federal de Presupuesto y Responsabilidad Hacendaria, la ENTIDAD FEDERATIVA deberá observar los siguientes criterios para asegurar la transparencia en la distribución, aplicación y comprobación de los recursos presupuestarios federales reasignados:
PARÁMETROS:
I.     Ambas partes se comprometen a aplicar en lo conducente, el principio de transparencia ante la sociedad civil, así como las normas de acceso a la información pública, sin que en ningún caso se ponga en riesgo la información y/o documentación de acceso restringido en sus dos modalidades de reservada y confidencial, de acuerdo a las leyes en la materia.
II.     La información referente a la transferencia de los recursos presupuestarios asignados por "SEMAR" a la ENTIDAD FEDERATIVA, quedará en posesión de ambas partes, tanto la documentación financiera como su soporte técnico correspondiente a cada uno de los pagos que sean realizados por el ejecutor del gasto, para que sea proporcionada, cuando así se solicite formalmente.
TERCERA.- OBJETIVOS E INDICADORES DE DESEMPEÑO Y SUS METAS.- Los recursos presupuestarios federales que reasigna el Ejecutivo Federal por conducto de la SEMAR a que se refiere la cláusula segunda del presente Convenio se aplicarán al proyecto a que se refiere la cláusula primera del mismo, el cual tendrá los objetivos e indicadores de desempeño y sus metas que a continuación se mencionan:
OBJETIVOS
METAS
INDICADORES DE
DESEMPEÑO
Construcción de las etapas 2 y 3 de la ampliación del Hospital Naval de Mazatlán, Sinaloa.
A.    Estudios y proyectos
B.    Derechos licencias y permisos
C.    Preliminares
D.    Cimentación y estructura
E.    Albañilería
F.    Acabados
G.    Instalación hidrosanitaria
H.    Instalación eléctrica (alumbrado y contactos)
I.     Elevador
J.    Blindaje y protección cuarto de rayos X
K.    Instalaciones especiales
L.    Instalación de aire acondicionado
M.   Instalación de gases medicinales
N.    Cisterna
O.    Herrería y cancelería
P.    Carpintería
Q.    Muebles de baño y accesorios
R.    Lavandería
S.    Instalación eléctrica (fuerza, subestación)
T.    Planta de tratamiento
U.    Obra exterior
Avance programado y Avance físico real
Avance financiero programado y Avance financiero real
 
CUARTA.- APLICACIÓN.- Los recursos presupuestarios federales que reasigna el Ejecutivo Federal a que alude la cláusula segunda de este instrumento, se destinarán en forma exclusiva a la ejecución del proyecto Construcción de las etapas 2 y 3 de la ampliación del Hospital Naval de Mazatlán, en el Estado de Sinaloa.
Dichos recursos no podrán traspasarse a otros conceptos de gasto y se registrarán conforme a su naturaleza, como gasto corriente o gasto de capital.
Los recursos presupuestarios federales que se reasignen, una vez devengados y conforme avance el ejercicio, deberán ser registrados por la ENTIDAD FEDERATIVA en su contabilidad de acuerdo con las disposiciones jurídicas aplicables y se rendirán en su Cuenta Pública, sin que por ello pierdan su carácter federal.
Los rendimientos financieros que generen los recursos a que se refiere la cláusula segunda de este Convenio, deberán destinarse al proyecto previsto en la cláusula primera del mismo.
La aplicación y ejercicio de los recursos se sujetará a las disposiciones previstas en la Ley de Disciplina Financiera de las Entidades Federativas y los Municipios y de conformidad con el calendario de ejecución establecido en el Anexo 3, el cual debidamente firmado por LAS PARTES, forma parte integrante del presente Convenio.
QUINTA.- GASTOS ADMINISTRATIVOS.- Para sufragar los gastos administrativos que resulten de la ejecución del proyecto previsto en la cláusula primera del presente instrumento, se podrá destinar hasta un 1.0% por ciento del total de los recursos aportados por la SEMAR.
SEXTA.- OBLIGACIONES DE LA ENTIDAD FEDERATIVA.- LA ENTIDAD FEDERATIVA se obliga a:
I.     Aplicar a través de la Secretaría de Obras Públicas, Instancia Ejecutora EN LA ENTIDAD FEDERATIVA, los recursos a que se refiere la cláusula segunda de este instrumento en el proyecto establecido en la cláusula primera del mismo, sujetándose a los objetivos e indicadores de desempeño y sus metas previstos en la cláusula tercera de este instrumento.
 
II.     Suscribir los acuerdos de coordinación o anexos de ejecución con la SEMAR, de conformidad con lo establecido en las disposiciones aplicables.
III.    Responsabilizarse, a través de su Secretaría de Administración y Finanzas de: administrar los recursos presupuestarios federales radicados únicamente en la cuenta bancaria productiva específica señalada en la cláusula segunda de este Convenio, por lo que no podrán traspasarse tales recursos a otras cuentas; efectuar las ministraciones oportunamente para la ejecución de la(s) función(es), programa(s) o proyecto(s) previsto(s) en este instrumento; recabar la documentación comprobatoria de las erogaciones; realizar los registros correspondientes en la contabilidad y en la Cuenta Pública local conforme sean devengados y ejercidos los recursos, respectivamente, así como dar cumplimiento a las demás disposiciones federales aplicables en la administración de dichos recursos, en corresponsabilidad con la instancia ejecutora local
IV.   Entregar mensualmente por conducto de la Secretaría de Administración y Finanzas a la SEMAR, la relación detallada sobre las erogaciones del gasto elaborada por la Secretaría de Obras Públicas, Instancia Ejecutora en la ENTIDAD FEDERATIVA y validada por la propia Secretaría de Administración y Finanzas.
       Asimismo, se compromete a mantener bajo su custodia, a través de la Secretaría de Administración y Finanzas la documentación comprobatoria original de los recursos presupuestarios federales erogados, hasta en tanto la misma le sea requerida por la SEMAR y, en su caso por la SHCP y la SFP, así como la información adicional que estas últimas le requieran, de conformidad con lo establecido en los artículos 83, primer párrafo, de la Ley Federal de Presupuesto y Responsabilidad Hacendaria, y 224, fracción VI, de su Reglamento.
       La documentación comprobatoria del gasto de los recursos presupuestarios federales objeto de este Convenio, deberá cumplir con los requisitos fiscales establecidos en las disposiciones federales aplicables.
V.    Registrar en su contabilidad los recursos presupuestarios federales que reciba, de acuerdo con los principios de contabilidad gubernamental, y aquella información relativa a la rendición de informes sobre las finanzas públicas y la Cuenta Pública local ante su Congreso (Asamblea Legislativa del Gobierno de Sinaloa).
VI.   Iniciar las acciones para dar cumplimiento del proyecto a que hace referencia la cláusula primera de este Convenio, en un plazo no mayor a 30 días naturales, contados a partir de la formalización de este instrumento.
VII.   Observar las disposiciones legales federales aplicables a las obras públicas y a los servicios relacionados con las mismas, así como a las adquisiciones, arrendamientos de bienes muebles y prestación de servicios de cualquier naturaleza que se efectúen con los recursos señalados en la cláusula segunda del presente Convenio.
VIII.  Evitar comprometer recursos que excedan de su capacidad financiera, para la realización del proyecto previsto en este instrumento.
IX.   Requerir con la oportunidad debida a las instancias federales, estatales o municipales que correspondan, la asesoría técnica, autorizaciones o permisos que resulten necesarios para la realización del proyecto previsto en este instrumento.
X.    Reportar y dar seguimiento mensualmente, en coordinación con la SEMAR sobre el avance en el cumplimiento de objetivos e indicadores de desempeño y sus metas, previstos en la cláusula tercera de este Convenio, así como el avance y, en su caso, resultados de las acciones que lleve a cabo de conformidad con este instrumento, en los términos establecidos en los numerales Tercero y Cuarto del Acuerdo por el que se da a conocer a los gobiernos de las entidades federativas y municipios, y de las demarcaciones territoriales del Distrito Federal, el formato para proporcionar información relacionada con recursos presupuestarios federales, publicado en el Diario Oficial de la Federación el 31 de enero de 2007. De ser el caso, y conforme a las disposiciones aplicables, evaluar los resultados obtenidos con la aplicación de los recursos presupuestarios federales que se proporcionarán en el marco del presente Convenio.
XI.   Proporcionar la información y documentación que en relación con los recursos a que se refiere la cláusula segunda de este instrumento requieran los órganos de control y fiscalización federales y estatales facultados, y permitir a éstos las visitas de inspección que en ejercicio de sus respectivas atribuciones lleven a cabo.
 
XII.   Presentar a la SEMAR, y por conducto de ésta a la SHCP, a través de la DGPyP A, y directamente a la SFP, por conducto de la Unidad de Operación Regional y Contraloría Social, a más tardar el último día hábil de febrero de 2022, el cierre de ejercicio de las operaciones realizadas, las conciliaciones bancarias, el monto de los recursos ejercidos, en su caso, con el desglose a que se refiere la cláusula segunda de este instrumento, así como el nivel de cumplimiento de los objetivos de la(s) función(es), programa(s) o proyecto(s) y las metas de los indicadores de desempeño, alcanzados en el ejercicio de 2021.
SÉPTIMA.- OBLIGACIONES DEL EJECUTIVO FEDERAL.-El Ejecutivo Federal, a través de la SEMAR, se obliga a:
I.     Reasignar los recursos presupuestarios federales a que se refiere la cláusula segunda, párrafo primero, del presente Convenio, de acuerdo con los plazos y calendario que se precisan en el Anexo 2 de este instrumento.
II.     Realizar los registros correspondientes en la Cuenta Pública federal y en los demás informes sobre el ejercicio del gasto público, a efecto de informar sobre la aplicación de los recursos transferidos en el marco del presente Convenio
III.    Dar seguimiento mensualmente, en coordinación con la ENTIDAD FEDERATIVA, sobre el avance en el cumplimiento de objetivos e indicadores de desempeño y sus metas, previstos en la cláusula tercera del presente Convenio.
Asimismo, evaluar los resultados obtenidos con la aplicación de los recursos presupuestarios federales que se proporcionarán en el marco de este instrumento.
OCTAVA.- RECURSOS HUMANOS.- Los recursos humanos que requiera cada una de las partes para la ejecución del objeto del presente Convenio, quedarán bajo su absoluta responsabilidad jurídica y administrativa, y no existirá relación laboral alguna entre estos y la otra parte, por lo que en ningún caso se entenderán como patrones sustitutos o solidarios.
NOVENA.- CONTROL, VIGILANCIA, SEGUIMIENTO Y EVALUACION.- El control, vigilancia, seguimiento y evaluación de los recursos presupuestarios federales a que se refiere la cláusula segunda del presente Convenio corresponderá a la SEMAR, a la SHCP, a la SFP y a la Auditoría Superior de la Federación, sin perjuicio de las acciones de vigilancia, control, seguimiento y evaluación que, en coordinación con la SFP, realice el órgano de control de la ENTIDAD FEDERATIVA.
Las responsabilidades administrativas, civiles y penales derivadas de afectaciones a la Hacienda Pública Federal en que, en su caso, incurran los servidores públicos, federales o locales, así como los particulares, serán sancionadas en los términos de la legislación aplicable.
DÉCIMA.- VERIFICACIÓN.- Con el objeto de asegurar la efectividad del presente Convenio, la SEMAR y la ENTIDAD FEDERATIVA revisarán periódicamente su contenido y aplicación, así como también adoptarán las medidas necesarias para establecer el enlace y la comunicación requeridas para dar el debido seguimiento a los compromisos asumidos.
Las partes convienen que la ENTIDAD FEDERATIVA destine una cantidad equivalente al cinco al millar del monto total de los recursos reasignados y aportados en efectivo, a favor de la Secretaría de Transparencia y Rendición de Cuentas de la ENTIDAD FEDERATIVA, para que realice la vigilancia, inspección, control y evaluación de las obras y acciones ejecutadas por administración directa con esos recursos; dicha cantidad será ejercida conforme a los lineamientos que emita la SFP. La ministración correspondiente se hará conforme a los plazos y calendario programados para el ejercicio de los recursos reasignados, para lo que del total de estos recursos se restará hasta el cinco al millar. Para el caso de las obras públicas ejecutadas por contrato, aplicará lo dispuesto en el artículo 191 de la Ley Federal de Derechos.
La SFP verificará en cualquier momento el cumplimiento de los compromisos a cargo de la ENTIDAD FEDERATIVA, en los términos del presente instrumento.
En los términos establecidos en el artículo 82, fracciones XI y XII de la Ley Federal de Presupuesto y Responsabilidad Hacendaria, la ENTIDAD FEDERATIVA destinará un monto equivalente al cinco al millar del monto total de los recursos reasignados para la fiscalización de los mismos, a favor del órgano técnico de fiscalización de la legislatura de la ENTIDAD FEDERATIVA.
DÉCIMA PRIMERA.- SUSPENSIÓN O CANCELACIÓN DE LA REASIGNACIÓN DE RECURSOS.- El Ejecutivo Federal, por conducto de la SEMAR podrá suspender o cancelar la ministración subsecuente de recursos presupuestarios federales a la ENTIDAD FEDERATIVA, cuando se determine que se hayan utilizado con fines distintos a los previstos en este Convenio o por el incumplimiento de las obligaciones contraídas en el mismo, supuestos en los cuales los recursos indebidamente utilizados tendrán que ser restituidos a la Tesorería de la Federación, dentro de los 15 días hábiles siguientes en que lo requiera la SEMAR.
 
Previo a que la SEMAR determine lo que corresponda en términos del párrafo anterior, concederá el derecho de audiencia a la ENTIDAD FEDERATIVA para que, en su caso, aclare o desvirtúe los hechos que se le imputen.
DÉCIMA SEGUNDA.- RECURSOS FEDERALES NO DEVENGADOS.-Las partes acuerdan que los remanentes o saldos disponibles de los recursos presupuestarios federales en la cuenta bancaria productiva específica a que se refiere la cláusula segunda de este Convenio, incluyendo los rendimientos financieros generados, que no se encuentren devengados o estén vinculados formalmente con compromisos y obligaciones de pago al 31 de diciembre de 2021, se reintegraran a la Tesorería de la Federación, en un plazo de 15 días naturales contados a partir del cierre del ejercicio fiscal, conforme a las disposiciones aplicables.
DÉCIMA TERCERA.- MODIFICACIONES AL CONVENIO. -Las partes acuerdan que el presente Convenio podrá modificarse de común acuerdo y por escrito, sin alterar su estructura y en estricto apego a las disposiciones jurídicas aplicables. Las modificaciones al Convenio deberán publicarse en el Diario Oficial de la Federación y en el Órgano de Difusión Oficial de la ENTIDAD FEDERATIVA dentro de los 15 días hábiles posteriores a su formalización.
En caso de contingencias para la realización del proyecto en este instrumento, ambas partes acuerdan tomar las medidas o mecanismos que permitan afrontar dichas contingencias. En todo caso, las medidas y mecanismos acordados serán formalizados mediante la suscripción del convenio modificatorio correspondiente.
DÉCIMA CUARTA.- INTERPRETACION, JURISDICCION Y COMPETENCIA. -Las partes manifiestan su conformidad para interpretar, en el ámbito de sus respectivas competencias, y resolver de común acuerdo, todo lo relativo a la ejecución y cumplimiento del presente Convenio, así como a sujetar todo lo no previsto en el mismo a lo dispuesto en la Ley Federal de Presupuesto y Responsabilidad Hacendaria, su Reglamento, así como a las demás disposiciones jurídicas aplicables.
De las controversias que surjan con motivo de la ejecución y cumplimiento del presente Convenio conocerán los tribunales federales competentes en la Ciudad de México.
DÉCIMA QUINTA.- VIGENCIA.- El presente Convenio comenzará a surtir sus efectos a partir de la fecha de su suscripción, y hasta el 31 de diciembre de 2021, con excepción de lo previsto en la fracción XII de la cláusula sexta de este instrumento, debiéndose publicar en el Diario Oficial de la Federación y en el órgano de difusión oficial de la ENTIDAD FEDERATIVA, dentro de los 15 días hábiles posteriores a su formalización, de conformidad con el artículo 224, último párrafo, del Reglamento de la Ley Federal de Presupuesto y Responsabilidad Hacendaria.
DÉCIMA SEXTA.- TERMINACION ANTICIPADA.- El presente Convenio podrá darse por terminado cuando se presente alguna de las siguientes causas:
I.     Por estar satisfecho el objeto para el que fue celebrado;
II.     Por acuerdo de las partes;
III.    Por rescisión, cuando se determine que los recursos presupuestarios federales se utilizaron con fines distintos a los previstos en este Convenio o por el incumplimiento de las obligaciones contraídas en el mismo, y
IV.   Por caso fortuito o fuerza mayor.
DÉCIMA SÉPTIMA.- DIFUSIÓN Y TRANSPARENCIA.- El Ejecutivo Federal, a través de la SEMAR, difundirá en su página de Internet el proyecto financiado con los recursos a que se refiere la cláusula segunda del presente Convenio, incluyendo los avances y resultados físicos y financieros. La ENTIDAD FEDERATIVA se compromete, por su parte, a difundir dicha información mediante su página de Internet y otros medios públicos, en los términos de las disposiciones aplicables.
Estando enteradas las partes del contenido y alcance legal del presente Convenio, lo firman a los treinta días del mes de marzo de dos mil veintiuno.- Por el Ejecutivo Federal: el Secretario de Marina, José Rafael Ojeda Durán.- Rúbrica.- Por el Ejecutivo de la Entidad Federativa de Sinaloa: el Gobernador Constitucional, Quirino Ordaz Coppel.- Rúbrica.- El Secretario General de Gobierno, Gonzalo Gómez Flores.- Rúbrica.- El Secretario de Administración y Finanzas, Luis Alberto de la Vega Armenta.- Rúbrica.- El Secretario de Obras Públicas Titular de la Instancia Ejecutora en la Entidad Federativa, Osbaldo López Angulo.- Rúbrica.- La Secretaria de Trasparencia y Rendición de Cuentas, María Guadalupe Yan Rubio.- Rúbrica.
 
ANEXO 1
DESCRIPCIÓN DETALLADA DEL PROYECTO CONSTRUCCIÓN DE LAS ETAPAS 2 Y 3 DE LA
AMPLIACIÓN DEL HOSPITAL NAVAL DE MAZATLÁN.

DIRECCIÓN GENERAL DE RECURSOS
SUBSECRETARÍA DE MARINA
DIRECCIÓN GENERAL DE SERVICIOS
DIRECCIÓN GENERAL ADJUNTA DE OBRAS Y DRAGADO

MEMORIA DESCRIPTIVA ARQUITECTÓNICA
ÍNDICE
I.     Datos Generales del Proyecto.
I.A.   Nombre del Proyecto.
I.B.   Antecedentes
I.C.   Localización y ubicación
I.D.   Tipo de proyecto
I.E.   Superficie de proyecto
II.    Datos técnicos del Proyecto.
II.A.Descripción del proyecto
II.B.  Datos Técnicos Arquitectónicos
II.C.  Descripción general del sistema constructivo
II.D.  Descripción general de acabados.
III.    Datos técnicos de Redes
III.A. Descripción general de las redes hidrosanitarias
III.B. Descripción general de las redes eléctricas
Datos Generales del Proyecto
I.A.  Nombre del Proyecto
       Hospital Naval en "Mazatlán, Sinaloa" (HOSNAVTLAN)
I.B.  Antecedentes
El Hospital de Mazatlán tiene más de 37 años de servicio, su infraestructura actual, no permite satisfacer la demanda de los servicios de salud para el personal naval y sus derechohabientes, por lo que se considera necesario realizar una ampliación y remodelación del Hospital actual, con la finalidad de estar en posibilidades de satisfacer la demanda y cumplir con las normas existentes que establecen los requisitos mínimos arquitectónicos para facilitar el acceso, tránsito, uso y permanencia de las personas en establecimientos médicos para este nivel de atención, así como también los estándares actuales establecidos por el Consejo de Salubridad General, vigentes a partir del 13 de junio de 2008. Cabe mencionar que el Hospital Naval de Mazatlán, carece de las condiciones mínimas para ser clasificado dentro del programa "Hospital Seguro" de la
Secretaria de Seguridad Publica y Protección Ciudadana.
El Hospital Naval brindará un incremento en la capacidad de atención para pacientes de los diferentes servicios médicos, la propuesta contempla la distribución de los espacios para los servicios, apegado a la normatividad vigente con las especificaciones y estándares en materia de salud, de tal forma que brinde las mayores facilidades al área operativa
I.C.  Localización y Ubicación
El Proyecto del Hospital Naval de Especialidades de "Mazatlán" (HOSNAVTLAN), está ubicado en la calle Armada de México y Niños Héroes de 1914, Col. Adolfo López Mateos, en el Municipio de Mazatlán, Sinaloa, cuenta con los servicios básicos de agua potable y energía eléctrica.

Coordenadas geográficas: Latitud 23°14'3.50'' N, Longitud 106°25'30.22'' O y Elevación:11.00 msnm.
I.D.  Tipo de Proyecto
       Infraestructura de Salud (Naval Militar)
I.E.  Superficies del Proyecto.
1)    Sup. Total de construcción obra civil:
5,046.00
m2.
 
 
 
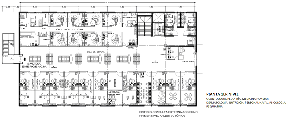
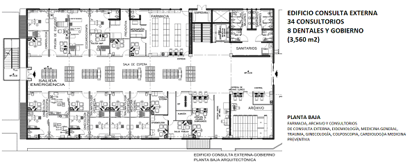
2)    Edificio- Fase 2 Consulta Externa
3,560.00
m2.
Planta baja: consultorios ginecología, trauma, cardio y archivo.
890.00
m2.
Planta 1er nivel: consultorios dentales, medicina familiar, evaluación personal naval
890.00
m2.
Planta 2do nivel: consultorios oftalmología, alergología, otorrinolaringología, cirugía.
890.00
m2.
Planta 3er nivel: Gobierno.
890.00
m2.
 
 
 
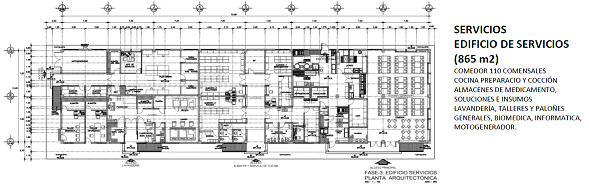
3)    Edificio FASE 3 Servicios
1486.00
m2.
Edificio Servicios
865.00
m2.
Planta de Tratamiento de Aguas Residuales
110.00
m2.
Cobertizo de Ambulancias
204.00
m2.
Cobertizo de vehículos
115.00
m2.
Caseta Manifold gases medicinales para hospital
72.00
m2.
Caseta RPBI
75.00
m2.
Cisterna para hospital Cap 70,000 lts.
45.00
m2.
II.    Datos Técnicos del Proyecto
II.A. Descripción del Proyecto
El conjunto arquitectónico del Hospital Naval está conformado por un Edificio principal (Hospital existente) con servicios médicos de diagnóstico y tratamiento, se realizará obra civil nueva en un edificio para consulta externa y áreas de Gobierno, considerados como FASE 2 dentro del polígono del mismo hospital, posteriormente se complementará a los Servicios (FASE 3), considerados en obra exterior para el óptimo funcionamiento del conjunto general como son una caseta manifold para gases medicinales, cobertizo de vehículos, cisterna, planta de tratamiento, caseta de RPBI así como basura municipal en diferentes ubicaciones dentro del predio.


Datos Técnicos Arquitectónicos
 
Edificio de Consulta Externa
El Edificio Consulta Externa es forma regular desplantado sobre una superficie aproximada del terreno de 39.60 m x 29.60 m, en 4 niveles con un área construida aproximada de 3560.00 m2,. el cual alberga las siguientes áreas en



 

Edificio de Servicios
El Edificio Servicios del Hospital Naval es de forma regular y esta desplantado sobre una superficie aproximada del terreno de 14.90 m x 58.10 m, en un nivel, en un área construida aproximada de 865.00 m2,. el cual alberga las siguientes áreas en:



Descripción General del Sistema Constructivo
El sistema constructivo empleado para las Edificaciones del Consulta Externa y Gobierno, están conformado por:
 
a)    Cimentaciones a base zapatas corridas y contra trabes de concreto premezclado armado.
b)    La estructura será a base de marcos rígidos con vigas y columnas metálicas.
c)     Las losas de entrepisos y cubiertas serán elaboradas con el sistema losacero.
d)    Muros perimetrales a base de paneles prefabricados de concreto e interiores de block ligero de cemento arena para baños, aseos, IDF y tableros eléctricos.
e)    Muros falsos a una y dos caras a base de panel de yeso (las placas deben tener las características de resistencia a la humedad y al desarrollo de moho, certificación para uso en sistemas contrafuego) y con bastidor de perfiles metálicos (canales, postes y esquineros).
II.B. Descripción General de Acabados
1.    El acabado final en pisos interiores será dependiendo de las áreas:
a.   Sala de Espera: Loseta cerámica.
b.   Baños, Sanitarios y Aseos: Loseta cerámica antiderrapante.
c.    Consultorios tipo 3 piso Vinílico disipativo.
d.   SITE: Piso elevado Antiestático.
e.   Oficinas en Áreas de Gobierno con losetas de porcelanato.
2.     El acabado final en muros interiores será de aplanado fino a base de mortero cemento-arena y con un recubrimiento final dependiendo de las áreas:
a.   Pasillos y Sala de Espera: Resina Acrílica texturizada Antibacteriana (certificado por el IMSS).
b.   Baños, Sanitarios y Aseos: Azulejo cerámico y pintura de esmalte.
3.     El acabado final en muros exteriores será de aplanado fino a base de mortero cemento-arena y con un recubrimiento final a base de pintura vinílica con aplicación previa de sellador.
4.     Carpintería: Las puertas Interiores y Closet se fabricarán puertas de madera de pino o caobilla de primera, con recubrimiento plástico laminado.
5.     Cancelaría: Las Puertas Exteriores y Ventanas se fabricarán con perfiles de aluminio anodizado blanco.
6.     Mamparas: Todas las mamparas divisorias en baños y sanitarios será a base de perfil tubular galvanizado con forro de lámina galvanizada, esmaltada y horneada.
7.     Vidriería en puertas y ventanas, de cristal claro de 6 mm de espesor en interiores y cristal templado de 10 y 12 mm de espesor en exteriores con película de seguridad contra huracanes.
8.     Se colocarán cortinas metálicas anticiclónicas en ventanas al exterior.
9.     Los muebles de baño serán de cerámica empleando mesetas en base conformada por bastidor metálico, forrada de panel de cemento para soportar ovalines a los que se les aplicara recubrimiento final de loseta cerámica o azulejo.
10.   El Plafones será modular en áreas centrales y plafón liso de panel de yeso en la periferia de cada área, los cuales tienen las características de anti-moho y resistencia al fuego. En áreas exteriores, se colocará a base de metal desplegado con recubrimiento final de pintura de esmalte, con aplicación previa de sellador 5 x 1.
11.   En áreas de pasillos y andadores exteriores se fabricarán banquetas y guarniciones de concreto armado con acabado escobillado.
12.   La impermeabilización de azoteas será tipo prefabricada de 4 mm de espesor, acabado con gravilla
color terracota.
Datos Técnicos de Redes
II.C. Descripción general de Instalaciones hidrosanitarias
Abastecimiento y Distribución de agua potable
El abastecimiento de agua potable para el proyecto del Hospital Naval, consulta externa y servicios, será proveniente de la red municipal y se conducirá hacia una cisterna para su almacenamiento, así como para el sistema contra incendios, donde para el caso del agua potable, su distribución será bombeada mediante equipo hidroneumático a los diferentes servicios hidrosanitarios a excepción de los mingitorios e inodoros, en los diferentes edificios que componen el conjunto del proyecto. El material utilizado para la red de distribución será de CPVC hidráulico, y para el caso del sistema contra incendio su distribución será por medio una bomba Jockey, una eléctrica y una diésel (que estarán, para abastecer a los diversos gabinetes de protección contra incendio (hidrantes).
Reutilización y Desalojo de Aguas Tratadas.
El tratamiento del agua residual será por medio de una Planta de Tratamiento de Aguas Residuales, la cual será almacenada en una cisterna para el agua tratada y distribuida para su utilización exclusivamente a los inodoros y mingitorios dentro de los diferentes edificios que componen el conjunto del proyecto, las demasías serán reaprovechadas para el riego en áreas verdes. El material de tuberías de conducción de las aguas tratadas será de CPVC y para el desalojo será de Polietileno de Alta Densidad (PAD)
II.D. Descripción general de Instalaciones eléctricas
Sistema de Iluminación
La iluminación para el proyecto del Hospital Naval, en el interior de cada edificación se utilizara luminarias de tipo sobreponer y empotrar con lámparas de tecnología led y en el exterior serán luminarios tipo led, controlados por panel fotovoltaico, con el fin de reaprovechar la luz solar durante el día.
Sistema de Aire Acondicionado
Sera mediante equipos de sistema divido de expansión directa ( condensadora al exterior evaporadora ubicada en azoteas de los edificios), las evaporadoras serán de tipo cassette expansión directa con refrigerante ecológico R410-A.
II.E.  Descripción general de Instalaciones especiales
Sistema Gases Medicinales
Los sistemas de instalaciones especiales como gases medicinales, tableros de aislamientos entre otros, será de acuerdo a las normativas vigentes correspondientes.
Elaboró                                                             Vo. Bo.
Proyectista                                    Coordinador de Proyectos Hospitalarios
___________________________________           _____________________________________
TT. Corb. SIA. L. Arq.                                          Tte. Frag. SIA. L. Arq.
Luis Eduardo Hernández Jiménez                              Hugo Hernández Hernández
(C-5056680)                                                       (C-2120612)
Rúbrica.                                                            Rúbrica.
ANEXO 2
CALENDARIO DE REASIGNACIÓN DE LOS RECURSOS DEL PROYECTO CONSTRUCCIÓN DE LAS
ETAPAS 2 Y 3 DE LA AMPLIACIÓN DEL HOSPITAL NAVAL DE MAZATLÁN
DESCRIPCIÓN
REASIGNACIÓN
FECHA
Construcción de las etapas 2 y 3 de la ampliación del Hospital Naval de Mazatlán, Sinaloa.
$123,828,000.00
Abril 2021
Total Reasignado hasta por la cantidad de:
$123,828,000.00
 
ANEXO 3
CALENDARIO DE EJECUCIÓN DEL PROYECTO
Ramo: 13 SEMAR
Proyecto:    Ampliación, Remodelación y equipamiento del Hospital Naval de Especialidades de Mazatlán, Sin.
Programa Presupuestario: K012 "Proyectos de Infraestructura Social de Asistencia y Seguridad Social"
Estado de Sinaloa
Concepto
Abril
Mayo
Junio
Julio
Agosto
Septiembre
Total
Porcentaje estimado de Avance físico
10%
15%
25%
25%
15%
10%
100%
Porcentaje estimado de Avance financiero
30%
10%
10%
10%
10%
30%
100%
Parcial
$37,148,400.00
$12,382,800.00
$12,382,800.00
$12,382,800.00
$12,382,800.00
$37,148,400.00
---
Acumulado
$37,148,400.00
$49,531,200.00
$61,914,000.00
$74,296,800.00
$86,679,600.00
$123,828,000.00
$123,828,000.00
 
_____________________________