CONVENIO de Coordinación en materia de reasignación de recursos que celebran la Secretaría de Marina y el Estado de Yucatán, para llevar a cabo el proyecto de construcción y equipamiento de un Hospital Naval en Yucalpetén en dicha entidad federativa.
CONVENIO DE COORDINACIÓN EN MATERIA DE REASIGNACIÓN DE RECURSOS QUE CELEBRAN POR UNA PARTE EL EJECUTIVO FEDERAL, POR CONDUCTO DE LA SECRETARÍA DE MARINA A LA QUE EN ADELANTE SE LE DENOMINARÁ "SEMAR" REPRESENTADA POR SU TITULAR EL C. JOSÉ RAFAEL OJEDA DURÁN Y POR LA OTRA PARTE EL EJECUTIVO DEL ESTADO LIBRE Y SOBERANO DE YUCATÁN, AL QUE EN LO SUCESIVO SE DENOMINARÁ LA ENTIDAD FEDERATIVA, REPRESENTADA POR EL C. MAURICIO VILA DOSAL EN SU CARÁCTER DE GOBERNADOR CONSTITUCIONAL DEL ESTADO DE YUCATÁN, ASISTIDO POR LOS C.C. MARÍA DOLORES FRITZ SIERRA, SECRETARIA GENERAL DE GOBIERNO; OLGA ROSAS MOYA, SECRETARIA DE ADMINISTRACIÓN Y FINANZAS, VIRGILIO AUGUSTO CRESPO MÉNDEZ, SECRETARIO DE OBRAS PÚBLICAS, LIZBETH BEATRIZ BASTO AVILÉS, SECRETARIA DE LA CONTRALORÍA GENERAL Y ROGER JOSÉ ECHEVERRÍA CALERO, DIRECTOR GENERAL DEL INSTITUTO PARA LA CONSTRUCCIÓN Y CONSERVACIÓN DE OBRA PÚBLICA EN YUCATÁN, CONFORME A LOS ANTECEDENTES, DECLARACIONES Y CLÁUSULAS SIGUIENTES:
ANTECEDENTES
I. La Ley Federal de Presupuesto y Responsabilidad Hacendaria, dispone en el artículo 83, segundo párrafo, que las dependencias y entidades de la Administración Pública Federal que requieran suscribir convenios de reasignación, deberán apegarse al modelo de convenio emitido por la Secretaría de Hacienda y Crédito Público (SHCP) y la Secretaría de la Función Pública (SFP), así como obtener la autorización presupuestaria de la SHCP.
II. La Dirección General de Programación y Presupuesto (DGPyP) de la SHCP, mediante Oficio No. 315-A.-0856 de fecha 26 de marzo de 2021, emitió su dictamen de suficiencia presupuestaria para que la SEMAR reasigne recursos a la ENTIDAD FEDERATIVA con cargo a su presupuesto autorizado.
DECLARACIONES
I. De la SEMAR:
1. Que es una dependencia del Poder Ejecutivo Federal que cuenta con la competencia necesaria para celebrar este Convenio, de conformidad con lo señalado en los artículos 26 y 30 de la Ley Orgánica de la Administración Pública Federal.
2. Que en el ámbito de su competencia le corresponde garantizar la seguridad marítima, salvamento en caso de accidentes o incidentes de embarcaciones y búsqueda y rescate para salvaguardar la vida humana en la mar y el control de tráfico marítimo.
Asimismo, le corresponde construir, mantener y operar unidades y establecimientos navales, para el cumplimiento de la misión de la Armada de México, así como prestar servicios en el ámbito de su competencia que coadyuven al desarrollo marítimo nacional.
3. Que el Secretario de Marina, el Almirante José Rafael Ojeda Durán, cuenta con las facultades suficientes y necesarias que le permiten suscribir el presente Convenio, según se desprende de lo previsto en los artículos 5 y 6, fracciones X, XVI y XX, del Reglamento Interior de la Secretaría de Marina.
4. Que para todos los efectos legales relacionados con este Convenio señala como su domicilio el ubicado en Avenida Heroica Escuela Naval Militar Núm. 861, Los Cipreses, Alcaldía Coyoacán, Ciudad de México. C.P. 04830.
II. De la ENTIDAD FEDERATIVA:
1. Que en términos de los artículos 40, 43 y 116 de la Constitución Política de los Estados Unidos Mexicanos, y 12 y 13, de la Constitución Política del Estado de Yucatán, es un Estado Libre y Soberano integrante de la Federación;
2. Que el Licenciado Mauricio Vila Dosal, en su carácter de Gobernador del Estado de Yucatán, está facultado para suscribir el presente instrumento, de conformidad en lo dispuesto por los artículos 44 y 55 de la Constitución Política del Estado de Yucatán, y conforme lo previsto por los artículos 2, 6, 12, y 14 del Código de la Administración Pública del Estado de Yucatán.
3. Que de conformidad con los artículos 22, fracciones I, II, IX y XVII; 27, fracción IV; 30; 31; 38; 46; 48; 49; 66 y 116 del Código de la Administración Pública de Yucatán; y 11, apartado B, fracciones III, VI
y XI; 39; 59; 158; 525 y 609, fracción II, de su reglamento, este Convenio es también suscrito por la Secretaria General de Gobierno del Estado, de Administración y Finanzas, de Obras Públicas, la Secretaria de la Contraloría General y el Director General del Instituto para la Construcción y Conservación de Obra Pública de Yucatán.
4. Que sus prioridades para alcanzar los objetivos pretendidos a través del presente instrumento son coordinar la participación de las partes a fin de llevar a cabo el proyecto ejecutivo así como los trabajos para la ejecución de la obra denominada "LA CONSTRUCCIÓN DE LAS NUEVAS INSTALACIONES DEL HOSPITAL GENERAL NAVAL DE YUCALPETEN, EN UN INMUEBLE DESTINADO A LA SECRETARÍA DE MARINA UBICADO EN LA CALLE 16 No. 607, COLONIA PARQUE INDUSTRIAL PORTUARIO DE YUCALPETEN, MUNICIPIO DE PROGRESO, YUCATAN, PARA BENEFICIO Y LA PRESTACIÓN DE SERVICIOS MÉDICOS DE AMBAS PARTES", para la inserción de un nuevo hospital de Segundo nivel de atención, el cual incrementará la oferta de servicios en el área de influencia, considerado como una instalación estratégica para garantizar la atención de los derechohabientes, enfrentar contingencias en apoyo de la población general y garantizar la seguridad del personal y usuarios; conforme a lo previamente acordado en el Convenio Marco de Coordinación y su Convenio Específico para la Construcción del Hospital General Naval de Yucalpetén suscritos el 04 de mayo del 2020 entre la SEMAR y el Gobierno del Estado de Yucatán.
5. Que la Abogada María Dolores Fritz Sierra, titular de la Secretaría General de Gobierno del Estado de Yucatán, se encuentra facultada para asistir a la firma del presente instrumento, conforme al nombramiento expedido a su favor por el Gobernador Constitucional del Estado de Yucatán, el 01 de octubre del 2018 y en términos de las atribuciones conferidas en los artículos 22, fracción I, 27 fracciones I y IV, y 30 del Código de la Administración Pública de Yucatán, manifestando que dichas facultades no han terminado, ni le han sido revocadas, modificadas ni limitadas de manera alguna a esta fecha.
6. Que la Licenciada Olga Rosas Moya, titular de la Secretaría de Administración y Finanzas, cuenta con las facultades para asistir a la firma del presente convenio conforme al nombramiento expedido a su favor por el Gobernador Constitucional del Estado de Yucatán, el 01 de octubre del 2018 y en términos de las atribuciones conferidas en los artículos 22, fracción II; 27, fracción I y IV; y 31, fracción XXVII, del Código de la Administración Pública de Yucatán, manifestando que dichas facultades no han terminado, ni le han sido revocadas, modificadas ni limitadas de manera alguna a esta fecha.
7. Que el Ingeniero Virgilio Augusto Crespo Méndez, Titular de la Secretaría de Obras Públicas, cuenta con las facultades para asistir a la firma del presente convenio conforme al nombramiento expedido a su favor por el Gobernador Constitucional del Estado de Yucatán, el 01 de octubre del 2018, y en términos de las atribuciones conferidas en el artículo 27, fracción IV del Código de la Administración Pública del Estado de Yucatán, manifestando que dichas facultades no han terminado, ni le han sido revocadas, modificadas ni limitadas de manera alguna a esta fecha.
8. Que la Maestra Lizbeth Beatriz Basto Avilés, titular de la Secretaría de la Contraloría General, cuenta con las facultades para asistir a la firma del presente convenio conforme al nombramiento expedido a su favor por el Gobernador Constitucional del Estado de Yucatán, el 1 de octubre de 2018, y en términos de las atribuciones conferidas en el artículos 22, fracción XVII; y 27 fracciones I y IV, del Código de la Administración Pública en Yucatán, manifestando que dichas facultades no han terminado, ni le han sido revocadas, modificadas ni imitadas de manera alguna a esta fecha.
9. Que el Ingeniero Roger José Echeverría Calero, cuenta con las facultades suficientes para suscribir el presente convenio conforme a lo dispuesto por los artículos 76 fracción I y 116 fracción I del Código de la Administración Pública de Yucatán y el artículo 17 fracción III y VIII del Decreto 238 de creación del Instituto para la Construcción y Conservación de Obra Pública en Yucatán, en su calidad de Director General, cargo que acredita con el nombramiento hecho a su favor por el Titular del Poder Ejecutivo del Estado de fecha 01 de octubre de 2018.
10. Que para todos los efectos legales relacionados con este Convenio señala como su domicilio el ubicado en Palacio de Gobierno, en Calle 61 x 60 y 62, Colonia Centro, C.P. 97000, en la ciudad de Mérida, Yucatán.
En virtud de lo anterior y con fundamento en los artículos 90 de la Constitución Política de los Estados Unidos Mexicanos; 22, 26 y 30 de la Ley Orgánica de la Administración Pública Federal; 1 de la Ley de Obras Públicas y Servicios Relacionados con las Mismas; 82 y 83 de la Ley Federal de Presupuesto y Responsabilidad Hacendaria, y 223, 224, 225 y 226 de su Reglamento, así como en los artículos 12, 13, 44 y 55 de la Constitución Política del Estado Libre y Soberano de Yucatán y los artículos 22, fracciones I, II, IX y XVII; 27, fracción IV; 30; 31; 38; 46; 48; 49; 66 y 116 del Código de la Administración Pública de Yucatán; y 11, apartado B, fracciones III, VI y XI; 39; 59; 158; 525 y 609, fracción II, de su reglamento; y segundo
transitorio de los "Lineamientos para el ejercicio eficaz, transparente, ágil y eficiente de los recursos que transfieren las dependencias y entidades de la Administración Pública Federal a las entidades federativas mediante convenios de coordinación en materia de reasignación de recursos", publicados en el Diario Oficial de la Federación el 28 de marzo de 2007 y demás disposiciones jurídicas aplicables, las partes celebran el presente Convenio al tenor de las siguientes:
CLÁUSULAS
PRIMERA.- OBJETO.- El presente Convenio y los anexos que forman parte integrante del mismo, tienen por objeto transferir recursos presupuestarios federales a la ENTIDAD FEDERATIVA para coordinar su participación con el Ejecutivo Federal en materia de infraestructura hospitalaria; reasignar a aquélla la ejecución de funciones, programas o proyectos federales; para el ejercicio fiscal 2021; definir la aplicación que se dará a tales recursos; precisar los compromisos que sobre el particular asumen la ENTIDAD FEDERATIVA y el Ejecutivo Federal; y establecer los mecanismos para la evaluación y control de su ejercicio.
Los recursos que reasigna el Ejecutivo Federal, a que se refiere la cláusula segunda del presente Convenio, se aplicarán al siguiente proyecto y hasta por los importes que a continuación se mencionan:
| PROYECTO: | IMPORTE |
| CONSTRUCCIÓN DE LAS NUEVAS INSTALACIONES DEL HOSPITAL GENERAL NAVAL DE YUCALPETEN, EN UN INMUEBLE DESTINADO A LA SECRETARÍA DE MARINA UBICADO EN LA CALLE 16 No. 607, COLONIA PARQUE INDUSTRIAL PORTUARIO DE YUCALPETEN, MUNICIPIO DE PROGRESO, YUCATÁN, PARA BENEFICIO Y LA PRESTACIÓN DE SERVICIOS MÉDICOS DE AMBAS PARTES | $100'000,000.00 (Son: CIEN MILLONES DE PESOS, 00/100 M.N) |
El proyecto a que se refiere el párrafo anterior se prevé en forma detallada en el Anexo 1 del presente Convenio.
Con el objeto de asegurar la aplicación y efectividad del presente Convenio, las partes se sujetarán a lo establecido en el mismo y sus correspondientes anexos, a los Lineamientos para el ejercicio eficaz, transparente, ágil y eficiente de los recursos que transfieren las dependencias y entidades de la Administración Pública Federal a las entidades federativas mediante convenios de coordinación en materia de reasignación de recursos, así como a las demás disposiciones jurídicas aplicables.
SEGUNDA. - REASIGNACIÓN. - Para la realización de las acciones objeto del presente Convenio, el Ejecutivo Federal reasignará a la ENTIDAD FEDERATIVA recursos presupuestarios federales hasta por la cantidad de $100'000,000.00 (Cien millones de pesos 00/100 M.N.) con cargo al presupuesto de la SEMAR, de acuerdo con los plazos y calendario establecidos que se precisan en el Anexo 2 de este Convenio.
Los recursos a que se refiere el párrafo anterior, conforme a los artículos 82, fracción IX, y 83, primer párrafo, de la Ley Federal de Presupuesto y Responsabilidad Hacendaria, se radicarán, a través de la Tesorería (o su equivalente) de la ENTIDAD FEDERATIVA en la cuenta bancaria productiva específica que ésta establezca para tal efecto, en forma previa a la entrega de los recursos, en la institución de crédito bancaria que la misma determine, informando de ello a la SEMAR, con la finalidad de que los recursos reasignados y sus rendimientos financieros estén debidamente identificados.
Los recursos presupuestarios federales que se reasignen a la ENTIDAD FEDERATIVA en los términos de este Convenio no pierden su carácter federal.
A efecto de dar cumplimiento a lo dispuesto en el artículo 82, fracción II, de la Ley Federal de Presupuesto y Responsabilidad Hacendaria, la ENTIDAD FEDERATIVA deberá observar los siguientes criterios para asegurar la transparencia en la distribución, aplicación y comprobación de los recursos presupuestarios federales reasignados:
PARÁMETROS:
I. Ambas partes se comprometen a aplicar en lo conducente, el principio de transparencia ante la sociedad civil, así como las normas de acceso a la información pública, sin que en ningún caso se ponga en riesgo la información y/o documentación de acceso restringido en sus dos modalidades de reservada y confidencial, de acuerdo a las leyes en la materia.
II. La información referente a la transferencia de los recursos presupuestarios asignados por "SEMAR" a "LA ENTIDAD FEDERATIVA", quedará en posesión de ambas partes, tanto la documentación financiera como su soporte técnico correspondiente a cada uno de los pagos que sean realizados por el ejecutor del gasto, para que sea proporcionada, cuando así se solicite formalmente.
TERCERA.- OBJETIVOS E INDICADORES DE DESEMPEÑO Y SUS METAS.- Los recursos presupuestarios federales que reasigna el Ejecutivo Federal por conducto de la SEMAR a que se refiere la cláusula segunda del presente Convenio se aplicarán al proyecto a que se refiere la cláusula primera del mismo, el cual tendrá los objetivos e indicadores de desempeño y sus metas que a continuación se mencionan:
| OBJETIVOS | METAS | INDICADORES DE DESEMPEÑO |
| Construcción de la etapa 2 del Hospital Naval de Yucalpetén, Progreso, Yucatán. | A. Estudios y proyectos B. Derechos licencias y permisos C. Preliminares D. Cimentación y estructura E. Albañilería F. Acabados G. Instalación hidrosanitaria H. Instalación eléctrica (alumbrado y contactos) I. Elevador J. Instalaciones especiales K. Instalaciones de voz y datos y comunicaciones. L. Instalación de aire acondicionado M. Instalación de gases medicinales N. Herrería y cancelería O. Carpintería P. Muebles de baño y accesorios Q. Instalación eléctrica de fuerza. R. Obra exterior | Avance programado y Avance físico real. Avance financiero programado y Avance financiero real |
CUARTA.- APLICACIÓN.- Los recursos presupuestarios federales que reasigna el Ejecutivo Federal a que alude la cláusula segunda de este instrumento, se destinarán en forma exclusiva a la ejecución del proyecto construcción de las nuevas instalaciones del Hospital General Naval de Yucalpetén, en el municipio de Progreso, Yucatán.
Dichos recursos no podrán traspasarse a otros conceptos de gasto y se registrarán conforme a su naturaleza, como gasto corriente o gasto de capital.
Los recursos presupuestarios federales que se reasignen, una vez devengados y conforme avance el ejercicio, deberán ser registrados por la ENTIDAD FEDERATIVA en su contabilidad de acuerdo con las disposiciones jurídicas aplicables y se rendirán en su Cuenta Pública, sin que por ello pierdan su carácter federal.
Los rendimientos financieros que generen los recursos a que se refiere la cláusula segunda de este Convenio, deberán destinarse al proyecto previsto en la cláusula primera del mismo.
La aplicación y ejercicio de los recursos se sujetará a las disposiciones previstas en la Ley de Disciplina Financiera de las Entidades Federativas y los Municipios y de conformidad con el calendario de ejecución establecido en el Anexo 3, el cual debidamente firmado por LAS PARTES, forma parte integrante del presente Convenio.
QUINTA. - GASTOS ADMINISTRATIVOS. - Para sufragar los gastos administrativos que resulten de la ejecución del proyecto previsto en la cláusula primera del presente instrumento, se podrá destinar hasta un 2% (dos) por ciento del total de los recursos aportados por las partes.
SEXTA. - OBLIGACIONES DE LA ENTIDAD FEDERATIVA. - LA ENTIDAD FEDERATIVA se obliga a:
I. Aplicar los recursos a que se refiere la cláusula segunda de este instrumento en el proyecto establecido en la cláusula primera del mismo, sujetándose a los objetivos e indicadores de desempeño y sus metas previstos en la cláusula tercera de este instrumento.
II. Responsabilizarse, a través de su Secretaría de Administración y Finanzas de: administrar los recursos presupuestarios federales radicados únicamente en la cuenta bancaria productiva específica señalada en la cláusula segunda de este Convenio, por lo que no podrán traspasarse tales recursos a otras cuentas; efectuar las ministraciones oportunamente para la ejecución de la(s) función(es), programa(s) o proyecto(s) previsto(s) en este instrumento; recabar la documentación comprobatoria de las erogaciones; realizar los registros correspondientes en la contabilidad y en la Cuenta Pública local conforme sean devengados y ejercidos los recursos, respectivamente, así como dar cumplimiento a las demás disposiciones federales aplicables en la administración de dichos recursos, en corresponsabilidad con la instancia ejecutora local
III. Entregar mensualmente por conducto de la Secretaría de Administración y Finanzas a la SEMAR, la relación detallada sobre las erogaciones del gasto elaborada por el Instituto para la Construcción y Conservación de Obra Pública de Yucatán como la instancia ejecutora, en coordinación con la Secretaría de Obras Públicas validada por la propia Secretaría de Administración y Finanzas.
Asimismo, se compromete a mantener bajo su custodia, a través de la Secretaría de Administración y Finanzas la documentación comprobatoria original de los recursos presupuestarios federales erogados, hasta en tanto la misma le sea requerida por la SEMAR y, en su caso por la SHCP y la SFP, así como la información adicional que estas últimas le requieran, de conformidad con lo establecido en los artículos 83, primer párrafo, de la Ley Federal de Presupuesto y Responsabilidad Hacendaria, y 224, fracción VI, de su Reglamento.
La documentación comprobatoria del gasto de los recursos presupuestarios federales objeto de este Convenio, deberá cumplir con los requisitos fiscales establecidos en las disposiciones federales aplicables.
IV. Registrar en su contabilidad los recursos presupuestarios federales que reciba, de acuerdo con los principios de contabilidad gubernamental, y aquella información relativa a la rendición de informes sobre las finanzas públicas y la Cuenta Pública local ante su Congreso.
V. Iniciar las acciones para dar cumplimiento del proyecto a que hace referencia la cláusula primera de este Convenio, en un plazo no mayor a 30 días naturales, contados a partir de la formalización de este instrumento.
VI. Observar las disposiciones legales federales aplicables a las obras públicas y a los servicios relacionados con las mismas, así como a las adquisiciones, arrendamientos de bienes muebles y prestación de servicios de cualquier naturaleza que se efectúen con los recursos señalados en la cláusula segunda del presente Convenio.
VII. Evitar comprometer recursos que excedan de su capacidad financiera, para la realización del proyecto previsto en este instrumento.
VIII. Reportar y dar seguimiento trimestralmente, en coordinación con la SEMAR sobre el avance en el cumplimiento de objetivos e indicadores de desempeño y sus metas, previstos en la cláusula tercera de este Convenio, así como el avance y, en su caso, resultados de las acciones que lleve a cabo de conformidad con este instrumento, en los términos establecidos en los numerales Tercero y Cuarto del Acuerdo por el que se da a conocer a los gobiernos de las entidades federativas y municipios, y de las demarcaciones territoriales del Distrito Federal, el formato para proporcionar información relacionada con recursos presupuestarios federales, publicado en el Diario Oficial de la Federación el 31 de enero de 2007. De ser el caso, y conforme a las disposiciones aplicables, evaluar los resultados obtenidos con la aplicación de los recursos presupuestarios federales que se proporcionarán en el marco del presente Convenio.
IX. Proporcionar la información y documentación que en relación con los recursos a que se refiere la cláusula segunda de este instrumento requieran los órganos de control y fiscalización federales y estatales facultados, y permitir a éstos las visitas de inspección que en ejercicio de sus respectivas atribuciones lleven a cabo.
X. Presentar a la SEMAR, y por conducto de ésta a la SHCP, a través de la DGPyP (A o B, según corresponda), y directamente a la SFP, por conducto de la Dirección General de Auditoria a la Operación Regional, a más tardar el último día hábil de febrero de 2022, el cierre de ejercicio de las operaciones realizadas, las conciliaciones bancarias, el monto de los recursos ejercidos, en su caso, con el desglose a que se refiere la cláusula segunda de este instrumento, así como el nivel de cumplimiento de los objetivos de la(s) función(es), programa(s) o proyecto(s) y las metas de los indicadores de desempeño, alcanzados en el ejercicio de 2021.
SÉPTIMA.- OBLIGACIONES DEL EJECUTIVO FEDERAL.- El Ejecutivo Federal, a través de la SEMAR, se obliga a:
I. Reasignar los recursos presupuestarios federales a que se refiere la cláusula segunda, párrafo primero, del presente Convenio, de acuerdo con los plazos y calendario que se precisan en el Anexo 2 de este instrumento.
II. Realizar los registros correspondientes en la Cuenta Pública federal y en los demás informes sobre el ejercicio del gasto público, a efecto de informar sobre la aplicación de los recursos transferidos en el marco del presente Convenio.
III. Dar seguimiento trimestralmente, en coordinación con la ENTIDAD FEDERATIVA, sobre el avance en el cumplimiento de objetivos e indicadores de desempeño y sus metas, previstos en la cláusula tercera del presente Convenio.
IV. Requerir con la oportunidad debida a las instancias federales, estatales o municipales que correspondan, la asesoría técnica, autorizaciones o permisos que resulten necesarios para la realización del proyecto previsto en este instrumento.
Asimismo, evaluar los resultados obtenidos con la aplicación de los recursos presupuestarios federales que se proporcionarán en el marco de este instrumento.
OCTAVA. - RECURSOS HUMANOS. - Los recursos humanos que requiera cada una de las partes para la ejecución del objeto del presente Convenio, quedarán bajo su absoluta responsabilidad jurídica y administrativa, y no existirá relación laboral alguna entre estos y la otra parte, por lo que en ningún caso se entenderán como patrones sustitutos o solidarios.
NOVENA.- CONTROL, VIGILANCIA, SEGUIMIENTO Y EVALUACIÓN.- El control, vigilancia, seguimiento y evaluación de los recursos presupuestarios federales a que se refiere la cláusula segunda del presente Convenio corresponderá a la SEMAR, a la SHCP, a la SFP y a la Auditoría Superior de la Federación, sin perjuicio de las acciones de vigilancia, control, seguimiento y evaluación que, en coordinación con la SFP, realice el órgano de control de la ENTIDAD FEDERATIVA.
Las responsabilidades administrativas, civiles y penales derivadas de afectaciones a la Hacienda Pública Federal en que, en su caso, incurran los servidores públicos, federales o locales, así como los particulares, serán sancionadas en los términos de la legislación aplicable.
DÉCIMA. - VERIFICACIÓN. - Con el objeto de asegurar la efectividad del presente Convenio, la SEMAR y la ENTIDAD FEDERATIVA revisarán periódicamente su contenido y aplicación, así como también adoptarán las medidas necesarias para establecer el enlace y la comunicación requeridas para dar el debido seguimiento a los compromisos asumidos.
Las partes convienen que la ENTIDAD FEDERATIVA destine una cantidad equivalente al cinco al millar del monto total de los recursos reasignados y aportados en efectivo, a favor de la Contraloría del Ejecutivo estatal para que realice la vigilancia, inspección, control y evaluación de las obras y acciones ejecutadas con estos recursos, sujeta al procedimiento de contratación que corresponda; dicha cantidad será ejercida conforme a los lineamientos que emita la SFP. La ministración correspondiente se hará conforme a los plazos y calendario programados para el ejercicio de los recursos reasignados, para lo que del total de estos recursos se restará hasta el uno al millar y la diferencia se aplicará a las acciones que se detallan en los anexos de este instrumento. Para el caso de las obras públicas ejecutadas por contrato, aplicará lo dispuesto en el artículo 191 de la Ley Federal de Derechos.
La SFP verificará en cualquier momento el cumplimiento de los compromisos a cargo de la ENTIDAD FEDERATIVA, en los términos del presente instrumento.
En los términos establecidos en el artículo 82, fracciones XI y XII de la Ley Federal de Presupuesto y Responsabilidad Hacendaria, la ENTIDAD FEDERATIVA destinará un monto equivalente al uno al millar del monto total de los recursos reasignados para la fiscalización de los mismos, a favor del órgano técnico de fiscalización de la legislatura de la ENTIDAD FEDERATIVA.
DÉCIMA PRIMERA.- SUSPENSIÓN O CANCELACIÓN DE LA REASIGNACIÓN DE RECURSOS.- El Ejecutivo Federal, por conducto de la SEMAR podrá suspender o cancelar la ministración subsecuente de recursos presupuestarios federales a la ENTIDAD FEDERATIVA, cuando se determine que se hayan utilizado con fines distintos a los previstos en este Convenio o por el incumplimiento de las obligaciones contraídas en el mismo, supuestos en los cuales los recursos indebidamente utilizados tendrán que ser restituidos a la Tesorería de la Federación, dentro de los 15 días hábiles siguientes en que lo requiera la SEMAR.
Previo a que la SEMAR determine lo que corresponda en términos del párrafo anterior, concederá el derecho de audiencia a la ENTIDAD FEDERATIVA para que, en su caso, aclare o desvirtúe los hechos que se le imputen.
DÉCIMA SEGUNDA.- RECURSOS FEDERALES NO DEVENGADOS.- Las partes acuerdan que los remanentes o saldos disponibles de los recursos presupuestarios federales en la cuenta bancaria productiva específica a que se refiere la cláusula segunda de este Convenio, incluyendo los rendimientos financieros generados, que no se encuentren devengados o estén vinculados formalmente con compromisos y obligaciones de pago al 31 de diciembre de 2021, se reintegraran a la Tesorería de la Federación en un plazo de 15 días naturales contados a partir del cierre del ejercicio fiscal, conforme a las disposiciones aplicables.
DÉCIMA TERCERA.- MODIFICACIONES AL CONVENIO.- Las partes acuerdan que el presente Convenio podrá modificarse de común acuerdo y por escrito, sin alterar su estructura y en estricto apego a las disposiciones jurídicas aplicables. Las modificaciones al Convenio deberán publicarse en el Diario Oficial de la Federación y en el Órgano de Difusión Oficial de la ENTIDAD FEDERATIVA dentro de los 15 días hábiles posteriores a su formalización.
En caso de contingencias para la realización de la(s) función(es), programa(s) o proyecto(s) previsto(s) en este instrumento, ambas partes acuerdan tomar las medidas o mecanismos que permitan afrontar dichas contingencias. En todo caso, las medidas y mecanismos acordados serán formalizados mediante la suscripción del convenio modificatorio correspondiente.
DÉCIMA CUARTA.- INTERPRETACIÓN, JURISDICCIÓN Y COMPETENCIA.- Las partes manifiestan su conformidad para interpretar, en el ámbito de sus respectivas competencias, y resolver de común acuerdo, todo lo relativo a la ejecución y cumplimiento del presente Convenio, así como a sujetar todo lo no previsto en el mismo a lo dispuesto en la Ley Federal de Presupuesto y Responsabilidad Hacendaria, su Reglamento, así como a las demás disposiciones jurídicas aplicables.
De las controversias que surjan con motivo de la ejecución y cumplimiento del presente Convenio conocerán los tribunales federales competentes en la Ciudad de México.
DÉCIMA QUINTA.- VIGENCIA.- El presente Convenio comenzará a surtir sus efectos a partir de la fecha de su suscripción, y hasta el 31 de diciembre de 2021, con excepción de lo previsto en la fracción X de la cláusula sexta de este instrumento, debiéndose publicar en el Diario Oficial de la Federación y en el órgano de difusión oficial de la ENTIDAD FEDERATIVA, dentro de los 15 días hábiles posteriores a su formalización, de conformidad con el artículo 224, último párrafo, del Reglamento de la Ley Federal de Presupuesto y Responsabilidad Hacendaria.
DÉCIMA SEXTA.- TERMINACIÓN ANTICIPADA.- El presente Convenio podrá darse por terminado cuando se presente alguna de las siguientes causas:
I. Por estar satisfecho el objeto para el que fue celebrado;
II. Por acuerdo de las partes;
I. Por rescisión, cuando se determine que los recursos presupuestarios federales se utilizaron con fines distintos a los previstos en este Convenio o por el incumplimiento de las obligaciones contraídas en el mismo, y
II. Por caso fortuito o fuerza mayor.
DÉCIMA SÉPTIMA. - DIFUSIÓN Y TRANSPARENCIA. - El Ejecutivo Federal, a través de la SEMAR, difundirá en su página de Internet el proyecto financiado con los recursos a que se refiere la cláusula segunda del presente Convenio, incluyendo los avances y resultados físicos y financieros.
La ENTIDAD FEDERATIVA se compromete, por su parte, a difundir dicha información mediante su página de Internet y otros medios públicos, en los términos de las disposiciones aplicables.
Estando enteradas las partes del contenido y alcance legal del presente Convenio, lo firman a los treinta días del mes de marzo de dos mil veintiuno.- Por el Ejecutivo Federal: el Secretario de Marina, José Rafael Ojeda Durán.- Rúbrica.- Por el Ejecutivo de la Entidad Federativa de Yucatán: el Gobernador Constitucional, Mauricio Vila Dosal.- Rúbrica.- La Secretaria General de Gobierno, María Dolores Fritz Sierra.- Rúbrica.- La Secretaria de Administración y Finanzas, Olga Rosas Moya.- Rúbrica.- El Secretario de Obras Públicas, Virgilio Augusto Crespo Méndez.- Rúbrica.- La Secretaria de la Contraloría General, Lizbeth Beatriz Basto Avilés.- Rúbrica.- El Director General del Instituto para la Construcción y Conservación de Obra Pública en Yucatán, Roger José Echeverría Calero.- Rúbrica.
ANEXO 1
DESCRIPCIÓN DETALLADA DEL PROYECTO "CONSTRUCCIÓN DE LAS NUEVAS INSTALACIONES DEL HOSPITAL GENERAL NAVAL DE YUCALPETEN, EN UN INMUEBLE DESTINADO A LA SECRETARÍA DE MARINA UBICADO EN LA CALLE 16 No. 607, COLONIA PARQUE INDUSTRIAL PORTUARIO DE YUCALPETEN, MUNICIPIO DE PROGRESO, YUCATÁN, PARA BENEFICIO Y LA PRESTACIÓN DE SERVICIOS MÉDICOS DE AMBAS PARTES"
SECRETARIA DE MARINA-ARMADA DE MÉXICO
SUBSECRETARÍA DE MARINA
DIRECCIÓN GENERAL DE SERVICIOS
DIRECCIÓN GENERAL ADJUNTA DE OBRAS Y DRAGADO
| Proyecto HOSPITAL NAVAL YUCALPETÉN, YUC. |
MEMORIA
DESCRIPTIVA
ARQUITECTÓNICA
ÍNDICE
I. Datos Generales del proyecto.
I.A. Nombre del proyecto.
I.B. Antecedentes
I.C. Localización y ubicación
I.D. Tipo de proyecto
I.E. Superficie de proyecto
II. Datos técnicos del Proyecto.
II.A. Descripción del proyecto
II.B. Datos técnicos arquitectónicos
II.C. Descripción general del sistema constructivo
II.D. Descripción general de acabados.
III. Datos técnicos de Redes
III.A. Descripción general de las redes hidrosanitarias
III.B. Descripción general de las redes eléctricas
I. Datos Generales del Proyecto
I.A. Nombre del Proyecto
Hospital Naval de "Yucalpetén" (HOSNAVYUC)
I.B. Antecedentes
El actual Hospital Naval de Yucalpetén cuenta con más 43 años de servicio, debido a la antigüedad de sus instalaciones, la infraestructura presenta un deterioro importante, a pesar de un buen mantenimiento, además carece de los espacios necesarios y suficientes para cumplir con las normas existentes que establecen los requisitos mínimos arquitectónicos para facilitar
el acceso, tránsito, uso y permanencia de las personas en establecimientos médicos para este nivel de atención, así como los estándares actuales establecidos por el Consejo de Salubridad General, vigentes a partir del 13 de junio de 2008, además carece de las condiciones mínimas para ser considerado dentro del programa "Hospital Seguro" de la Secretaría de Seguridad Pública y Protección Ciudadana.
El Hospital Naval brindará un incremento en la capacidad de atención para pacientes de los diferentes servicios médicos, la propuesta contempla la distribución de los espacios para los servicios, apegado a la normatividad vigente y cumplirá con las especificaciones y estándares en materia de salud, de tal forma que brinde las mayores facilidades al área operativa
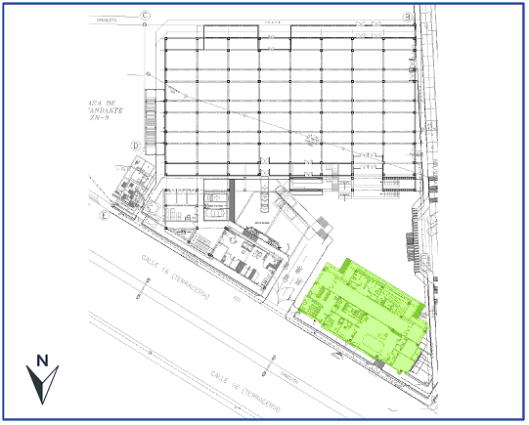
I.C. Localización y Ubicación
El Proyecto del Hospital Naval "Yucalpetén" (HOSNAVYUC), se ubica dentro de predio de la Unidad Habitacional Naval "23 de Noviembre" en la calle 16 No. 607, Col. Parque Industrial Portuario de Yucalpetén, Municipio de Progreso, Yuc., mismo que cuenta con que los servicios básicos de agua potable y energía eléctrica.
Localización del predio de la HOSNAVYUK (Origen: Google Earth versión 9.2.53.6 - 2019)
Coordenadas geográficas: Latitud 21°16'27.36'' N, Longitud 89°41'55.04'' O y Elevación: 0.695 msnm.
I.D. Tipo de Proyecto
Infraestructura de Salud (Naval Militar)
I.E. Superficies del Proyecto.
| 1) Sup. Total de construcción obra civil: | 8,047.55 | m2. |
| Edificio -1 Hospital | 8,047.55 | m2. |
| 2) Sup. Desplante del inmueble: | 2,127.20 | m2. |
| 3) Sup. Total de obra exterior y Áreas Libres: | 1,264.80 | m2. |
| Vialidades | 295.30 | m2. |
| Banquetas | 601.50 | m2. |
| Jardín | 368.00 | m2. |
| 4) Sup. Total Predio: | 4,360.50 | m2. |
Superficies por servicios del Hospital:
| Planta Baja | 2,127.20 | m2. |
| Farmacia | 72.55 | m2. |
| Urgencias: | 452.75 | m2. |
| Tococirugía | 316.00 | m2. |
| Cirugía | 287.00 | m2. |
| CEYE | 126.70 | m2. |
| Unidad de Cuidados Intensivos Adultos | 232.10 | m2. |
| Mortuorio | 33.80 | m2. |
| Cafetería | 84.45 | m2. |
| Cuarto de Maquinas | 75.30 | m2. |
| Salas de Espera y Circulaciones | 164.00 | m2. |
| Circulación Técnica | 141.90 | m2. |
| Módulos de Escaleras y Elevadores | 72.55 | m2. |
| Escaleras de Emergencias | 68.10 | m2. |
| Primer Nivel | 2,068.35 | m2. |
| Consulta Externa | 680.85 | m2. |
| Laboratorio: | 127.15 | m2. |
| Imagenología: | 187.50 | m2. |
| Unidad de Cuidados Intensivos Neonatales | 133.00 | m2. |
| Hemodiálisis | 298.40 | m2. |
| Salas de Espera | 473.60 | m2. |
| Circulación Técnica | 27.20 | m2. |
| Módulos de Escaleras y Elevadores | 72.55 | m2. |
| Escaleras de Emergencias | 68.10 | m2. |
| Segundo Nivel | 2,098.80 | m2. |
| Gobierno: | 654.30 | m2. |
| Consulta Externa | 208.45 | m2 |
| Hospitalización | 903.50 | m2. |
| Salas de Espera | 115.90 | m2. |
| Circulación Técnica | 76.00 | m2. |
| Módulos de Escaleras y Elevadores | 72.55 | m2. |
| Escaleras de Emergencias | 68.10 | m2. |
| Tercer Nivel | 1,753.20 | m2. |
| Cocina Comedor: | 504.00 | m2. |
| Alojamientos | 492.55 | m2 |
| Informática | 78.10 | m2. |
| Almacenes | 302.95 | m2. |
| Circulaciones | 234.95 | m2. |
| Módulos de Escaleras y Elevadores | 72.55 | m2. |
| Escaleras de Emergencias | 68.10 | m2. |
II. Datos Técnicos del Proyecto
II.A. Descripción del Proyecto
El conjunto arquitectónico del Hospital Naval está conformado por un edificio donde tendrá todos los servicios médicos y se apoyará con sus de servicios generales correspondientes (planta de tratamiento, cisternas y gases medicinales).
II.B. Datos Técnicos Arquitectónicos
El Edificio del Hospital es de forma regular esta desplantado sobre una superficie aproximada del terreno de 57.60 m x 32.40 m, en cuatro niveles, en un área construida aproximada de 8,047.55 m2, el cual alberga las siguientes áreas:
Planta Baja
a. Urgencias: Módulo de sala de espera con control, triage, y sanitarios, 01 consultorio, con capacidad de 04 camas adultos y 02 pediátricos, 01 aislado adulto con filtro y baño, central de enfermera con preparación de medicamentos, trabajo de médicos, médico de guardia, sala de choque, hidratación, curaciones, Inhaloterapia (02 cubículos de atención) descontaminación, almacén de equipo-camillas y área de servicios ( aseo, séptico, ropa sucia y limpia).
b. Tococirugía: 01 consultorios, área de observación con 02 camas, área de trabajo de labor con 02 camas, área de postparto con 02 camas, código mater, 01 centrales de enfermeras, 01 sala de expulsión, 01 Quirófano, 01 Transfer, 01 lavabo de cirujano y área de servicios (ropa sucia, ropa limpia, aseo y séptico).
c. Cirugía: Vestidores Hombres y Mujeres, CEYE, Preanestecia, Transfer, 01 Quirófanos y Recuperación 04 camas con 01 centrales de enfermeras, prelavado, almacén de equipo, y área de servicios ( aseo, séptico, ropa sucia y limpia).
d. Unidad de Cuidados Intensivos Adultos: Acceso con filtro , 02 cubículos adultos y 01 cubículo aislado, central de enfermeras con preparación de medicamentos, vestidores - sanitarios para médicos y área de servicios (ropa sucia, ropa limpia, aseo y séptico).
e. Farmacia: Atención al público, Encargado, Almacén y Bodega de medicamentos controlados.
f. Servicios: casa de máquinas (hidráulico, y eléctrico),
g. Cafetería con autoservicio.
h. Circulaciones
i. Módulo escaleras y elevadores
j. Escaleras de emergencia.
Primer Nivel
a. Consulta Externa: Módulo de sala de espera con control, Signos Vitales, Archivo clínico, Trabajo social, Jefe de Consulta Externa, 04 cubículo de apoyo médico, 12 Consultorios (02 Medicina General, 01 Medicina Preventiva, 01 Medicina Interna, 01 Nutrición, 01 Pediatría, 01 Ginecología, 01 Traumatología y Ortopedia, 01 Otorrino, 01 Oftalmología y 02 Odontología con su CEYE dental).
b. Imagenología: control, Jefe de unidad, 01 ultrasonido, 01 mastografía, 01 sala de rayos X simples, interpretación, impresión - revelado, y área de servicios ( aseo, ropa sucia y limpia).
c. Laboratorios: control con 03 tomas, jefe de la unidad, 04 peines de análisis, guarda de reactivos, lavado - esterilizado y regadera de emergencia.
d. Unidad de Cuidados intensivos Neonatales: Acceso con filtro, 02 cubículos, 01 aislado, 01 extracción de leche, 01 central de enfermeras con preparación de medicamentos, guarda de equipo, ropa limpia y material de consumo.
e. Hemodiálisis: Control, jefe de unidad, 01 Consultorios, 06 cubículos, 01 aislado, 01 central de enfermeras con preparación de medicamentos, 01 sala de choque, sanitarios, tratamiento de agua y servicios ( aseo, séptico, ropa sucia y limpia).
f. Circulaciones
g. Módulo escaleras y elevadores
h. Escaleras de emergencia.
Segundo Nivel
a. Área de Gobierno: sala de espera, salón de usos múltiples para 26 personas, 05 cubículos de apoyo administrativo y médico, archivo, auditorio para 70 personas, sala de juntas y dirección.
b. Consulta Externa: 01 Reclutamiento, 01 Consultorio (Psicología) y 01 Anexo.
c. Hospitalización: control de admisión y altas, salas de espera, 02 cubículos de Jefes Médicos, 01 cubículo de trabajo social, áreas de encamados; 06 camas de mujeres, 04 camas pediátricos, 03 camas de conjunto, 06 camas de hombres, 02 aislado pediátrico, 01 aislado adulto, 02 especiales, sala de día, central de enfermera, preparación de medicamentos, trabajos médicos, descanso de médicos con baño, curaciones, almacén de equipos adultos y pediátricos, servicios ( aseo, séptico, ropa sucia y limpia).
d. Circulaciones
e. Módulo escaleras y elevadores
f. Escaleras de emergencia.
Tercer Nivel
a. Cocina Comedor: recepción de víveres, áreas de almacén y refrigeración, preparación, cocción, autoservicio, ensamble de hospitalización, lavado, almacén de loza hospital y general, servicios ( aseo, lavabos y baños), 01 área de comensales para 36 personas y 01 área de comensales para 40 personas.
b. Módulo de Alojamientos: Para 80 personas.
c. Servicios de Informática, Biomédicos, SITE y monitoreo.
d. Almacenes: 03 Almacén general,
e. Circulaciones
f. Módulo escaleras y elevadores
g. Escaleras de emergencia.
II.C. Descripción General del Sistema Constructivo
El sistema constructivo empleado para la edificación del Hospital, será el tradicional y está conformado por:
a) La cimentación será a base de losa de cimentación rigidizada con contra-trabes y desplantada sobre pilas.
b) La estructura será de marcos rígidos a base de trabes y columnas de concreto.
c) Las losas de entrepisos y azotea serán de concreto armado.
d) Muros a base de block ligero de cemento arena, asentado con mortero cemento-arena.
e) Muros falsos a una y dos caras a base de panel de yeso (las placas deben tener las características de resistencia a la humedad y al desarrollo de moho, certificación para uso en sistemas contrafuego) y con bastidor de perfiles metálicos (canales, postes y esquineros).
II.D. Descripción General de Acabados
1. En acabado final en pisos interiores será dependiendo de las áreas:
a. Urgencias, Laboratorios, Imagenología y Consultorios: Piso Vinílico Homogéneo.
b. Gobierno y Sala de Espera: Loseta cerámica.
c. Baños, Sanitarios y Aseos: Loseta cerámica Antiderrapante.
d. Sala de Choque, Quirófanos, Salas de Expulsión, UCIS: Piso Vinílico Conductivo
e. IDF: Piso falso Antiestático.
2. En acabado final en muros interiores será de aplanado fino a base de mortero cemento-arena y con un recubrimiento final dependiendo de las áreas:
a. Urgencias, Laboratorios, Imagenología, Consultorios, Pasillos y Sala de Espera: Resina Acrílica texturizada Antibacteriana (certificado por el IMSS).
b. Gobierno: Pintura vinílica.
c. Baños, Sanitarios y Aseos: Azulejo cerámico y pintura de esmalte.
d. Sala de Choque, Quirófanos, Sala de Expulsión, UCIS: Vinílico Conductivo
3. En acabado final en muros exteriores será de aplanado fino a base de mortero cemento-arena y con un recubrimiento final a base de pintura vinílica con aplicación previa de sellador.
4. Carpintería: Las puertas Interiores y Closet se fabricarán puertas de madera de pino o caobilla de primera, con recubrimiento plástico laminado.
5. Cancelaría: Las Puertas Exteriores y Ventanas se fabricarán con perfiles de aluminio anodizado blanco.
6. Mamparas: Todas las mamparas divisorias en baños y sanitarios será a base de perfil tubular galvanizado con forro de lámina galvanizada , esmaltada y horneada
7. Vidriería en puertas y ventanas, de cristal claro de 6 mm de espesor en interiores y cristal templado color humo de 10 y 12 mm de espesor en exteriores.
8. Se colocará en ventanas al exterior cortinas metálicas anticiclónicas
9. Los muebles de baño serán de cerámica empleando mesetas en base conformada por bastidor metálico, forrada de panel de cemento para soportar ovalines a los que se les aplicara recubrimiento final de loseta cerámica o azulejo.
10. En Plafones se colocará falso plafón modular en áreas centrales y plafón liso de panel de yeso en la periferia de cada área, los cuales tienen las características de anti-moho y resistencia al fuego, en áreas exteriores de metal desplegado con recubrimiento final de pintura de esmalte, con aplicación previa de sellador.
11. En áreas de pasillos y andadores exteriores se fabricarán banquetas y guarniciones de concreto armado con acabado escobillado.
12. La impermeabilización de azoteas será tipo prefabricada de 4 mm de espesor, acabado con gravilla color terracota.
13. Se contemplara estructura metálica o aluminio estructural para las escaleras de emergencia exteriores
III. Datos Técnicos de Redes
III.A. Descripción general de Instalaciones hidrosanitarias
Abastecimiento y Distribución de agua potable
El abastecimiento de agua potable para el proyecto del Hospital Naval, será proveniente de la red municipal y se conducirá hacia una cisterna existente para su almacenamiento para el sistema contraincedio y el servicio de agua potable, para el caso del agua potable su distribución será bombeada mediante equipo hidroneumático a los diferentes servicios hidrosanitarios a excepción de los mingitorios e inodoros, en los diferentes edificios que componen el conjunto del proyecto. El material utilizado para la red de distribución será de CPVC hidráulico, y para el caso del sistema contraincendio su distribución será por medio una bomba Jockey, una eléctrica y una diésel (que estarán , para abastecer a los diversos gabinetes de protección contraincendio (hidrantes).
Reutilización y Desalojo de Aguas Tratadas.
El tratamiento del agua residual será por medio de una Planta de Tratamiento de Aguas Residuales existente, la cual será almacenada en una cisterna para el agua tratada y distribuida para su utilización exclusivamente a los inodoros y mingitorios dentro de los diferentes edificios que componen el conjunto del proyecto, las demasías serán conducidas a un pozo de infiltración. El material de tuberías de conducción de las aguas tratadas será de CPVC y para el desalojo será de Polietileno de Alta Densidad (PEAD)
III.B. Descripción general de Instalaciones eléctricas
Sistema de Iluminación
La iluminación para el proyecto del Hospital Naval, en el interior de cada edificación se utilizara luminarias de tipo sobreponer y empotrar con lámparas de led y en el exterior serán luminarios tipo led, controlados por panel fotovoltaico, con el fin de reaprovechar la luz solar durante el día.
Sistema de Aire Acondicionado
Sera mediante equipos de sistema divido de expansión directa ( condensadora al exterior evaporadora ubicada en interior de los edificios), las evaporadoras serán de tipo cassette expansión directa con refrigerante ecológico R410-A.
III.C. Descripción general de Instalaciones especiales
Sistema Gases Medicinales
Los sistemas de instalaciones especiales como gases medicinales, tableros de aislamientos entre otros, será de acuerdo a las normativas vigentes correspondientes.
Elaboró: el Coordinador de Proyecto, Tte. Corb. Sia. L. Arq. Noe Uriel Aguilar Callejas (C-8352280).- Rúbrica.- Revisó: el Jefe Depto. Acc. Proys. Arqs. y Urbs., Tte. Corb. Sia. L. Arq. Luis E. Hernández Jiménez (C-5056680).- Rúbrica.- Vo. Bo.: el Subdirector de Estudios y Arquitectura, Capitán de Navío Sia. L. Arq. José Joel Cid López (B-4357927).- Rúbrica.
| MEMORIA DESCRIPTIVA HOSPITAL NAVAL DE YUCALPETÉN CÁMARA HIPERBÁRICA |
DESCRIPCIÓN GENERAL
El edificio de Cámara Hiperbárica, es uno de los edificios que forma parte del Proyecto del Hospital Naval de "Yucalpetén", ubicado dentro del predio de la Unidad Habitacional Naval "23 de Noviembre" en la calle 16 No. 607, Col. Parque Industrial Portuario de Yucalpetén, Municipio de Progreso, Yuc.
Superficies del edificio
Planta baja con 440.13 m2 y Planta Alta con 499.88 m2, haciendo un total de 840.01m2, enseguida el desglose de superficies por servicios:
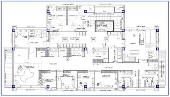
1. Planta Baja
| Área de accesos | 63.63 m2 |
| Vestíbulo y circulaciones | 77.84 m2 |
| Escaleras, elevador (capacidad para 13 personas) y bodega) | 35.77 m2 |
| IDF | 5.58 m2 |
| Sanitarios (hombres y mujeres, cada uno con 2 lavamanos, un módulo para W.C., un módulo con W.C.para personas con discapacidad y un mingitorio en el caso de sanitarios para hombres) | 31.83 m2 |
| Cuarto de aseo (a un costado del acceso sanitario para hombres) | 3.25 m2 |
| Cuarto de tableros eléctricos (costado derecho del acceso a sanitario para mujeres) | 3.25 m2 |
| Caseta de control de acceso al hospital | 14.77 m2 |
| Sala de espera (capacidad para 13 personas y un cuarto de aseo) | 31.01 m2 |
| Recepción (con 2 áreas de trabajo) | 6.83 m2 |
| Sanitarios (hombres y mujeres) | 7.54 m2 |
| Área de guarda de camillas y sillas | 5.65 m2 |
| Consultorio (área de consulta, un pequeño vestidor y el área de revisión médica) | 33.34 m2 |
| Área de cámara hiperbárica (área para cámara hiperbárica, un área de trabajo médicos con 2 lugares, 2 compartimentos tipo closets, un área de R.S. y 2 vestidores) | 64.48 m2 |
| Sanitarios en área de cámara hiperbárica (hombres y mujeres). Cuarto eléctrico Cuarto de máquinas | 7.08 m2 15.19 m2 33.09 m2 |
1. PALNTA BAJA. Edificio Cámara Hiperbárica
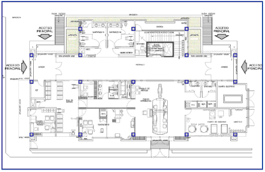
2. Planta Alta
| Escaleras y elevador | 35.77 m2 |
| Circulaciones | 53.65 m2 |
| Sanitarios | 38.33 m2 |
| Baños Vestidores | 32.09 m2 |
| Sala de Espera | 43.09 m2 |
| Consultorio | 24.76 m2 |
| Trabajo Médico | 5.22 m2 |
| Almacén | 3.60 m2 |
| R.S. | 3.24 m2 |
| R.L. | 4.49 m2 |
| IDF | 9.52 m2 |
| Control | 8.92 m2 |
| Guarda de camillas y sillas | 7.46 m2 |
| Gimnasio | 48.71 m2 |
| Cubículo 1. Hidroterapia | 26.88 m2 |
| Cubículo 2. Parafinas y Compresas | 11.16 m2 |
| Cubículo 3. Miembros Inferiores-Superiores | 13.40 m2 |
| Cubículo 4. Fisioterapia | 13.54 m2 |
| Cubículo 5. Fisioterapia | 15.95 m2 |
2. PLANTA ALTA. Edificio Cámara Hiperbárica
DESCRIPCIÓN TÉCNICA
Cimentación
El sistema empleado para la cimentación de edificio de Cámara Hiperbárica, fue una losa de cimentación rigidizada con contratrabes, dados y pilas de cimentación.
Estructura
La estructura fue resuelta a través de marcos rígidos a base de trabes y columnas de concreto.
Las losas de entrepiso y de azotea son de concreto armado.
Muros a base de block ligero, asentado con mortero cemento-polvo de piedra.
Muros falsos a base de panel de yeso (el material utilizado para la construcción de estos muros deberá cumplir con la resistencia a la humedad y al desarrollo de moho, certificado para uso en sistemas contrafuego) y con bastidor de perfiles metálicos (canales, postes y esquineros)
Herrería
Los elementos de herrería requeridos en este edificio son:
Escotilla marina de lámina negra cal. 18, acabado con una capa de cromato de zinc y dos capas de esmalte alquidálico
Escalera marina de 9m de largo, con tubo de acero céd. 30, acabado con una capa de cromato de zinc y dos capas de esmalte alquidálico
Pasamanos de escaleras con tubos y postes de acero inoxidable, sujetos al piso con placas de acero inoxidable.
Cortinas anticiclónicas plegables tipo acordeón en claros de puertas y ventanas, resistentes a vientos de 305 km/hr.
Cancelería
La cancelería de puertas y ventanas son a base de aluminio anodizado color negro con cristales flotados
de 6 mm.
Ésta considera una puerta automática corrediza con sensor de cristal templado de 9mm.
Carpintería
Todas las puertas estarán hechas a base de bastidores de pino de 1era, con un tratamiento termicida, fungicida e insecticida, el acabado será con plástico laminado marcos y contramarcos con lámina negra cal. 20, acabado de pintura electrostática.
Instalación Eléctrica
El proyecto de iluminación propone luminarias de tipo de sobreponer y empotrar con lámparas led , y en el exterior luminarios tipo led, controlados por panel fotovoltaico.
El cuarto eléctrico de este edificio contempla una planta de emergencia de 75 KVA (60 KW), 3F-4H, modelo GS-60, con interruptor termo magnético y tablero de transferencia.
Instalación Hidráulica
Red Hidráulica
La red hidráulica de agua fría, agua caliente y agua tratada será base de tubería de CPVC, la CTS-RD-11 con diámetros entre 13mm a 50mm, y la RD-11 con diámetro entre 64mm y 100 mm. En la red de tubería también están consideradas válvulas eliminadoras de aire
Agua Caliente
Se instalará un generador de agua caliente a base de gas L.P. Modelo 521-100, ubicado en azotea
Muebles Sanitarios
En el edificio hay 6 lavabos de una perforación, de sobreponer con rebosadero modelo LV MOREA1; 4 lavabos de sobrecubierta modelo CADET UNIVERSAL con cespol de bronce; 2 lavabos ovalín chicos, sin perforaciones, sobrecubierta, con rebosadero color blanco, con cespol de bronce; 2 inodoros NAO modelo TZF-1 para fluxómetro y asiento, con tapa, ambos color blanco; 8 inodoros NAO 17 modelo TZF-17 para fluxómetro y asiento con tapa, ambos en color blanco; 10 fluxómetros para W.C. de sensor eléctrico; 12 mezcladora monomando, acabado cromo.
Instalación hidráulica Contraincendios
El equipo hidroneumático contraincendios está contenido en el edificio de Talleres, este mismo equipo le da servicio al edificio de cámara Hiperbárica a través de 3 gabinetes contra incendios prefabricados de estructura metálica y lámina negra, para mangueras de 30 m y extintor.
La red de tuberías contra incendios es a base de tubería de acero sin costura, cédula 40, con salidas a gabinete tipo bridadas. Toda la tubería estará cubierta con anticorrosivo cromato de zinc y esmalte alquidálico color rojo.
Instalación de Aire acondicionado
El sistema de aire acondicionado está resuelto a través de unidades evaporadoras con sus respectivas unidades condensadoras en azotea.
| Cámara Hiperbárica Planta Baja |
| Unidad Evaporadora | Unidad Condensadora |
| No. Equipo | Clave | Tipo | Capacidad (T.R) | Área | Clave | Capacidad (T.R) |
| 01 | AA-6,8 | Mini Split | 2.0 | Vestíbulo | AA-6,8 | 2.0 |
| 02 | AA-9,11 | Mini Split | 2.0 | Vestíbulo | AA-9,11 | 2.0 |
| 03 | AA-1,3 | Mini Split | 1.0 | IDF | AA-1,3 | 1.0 |
| 04 | AA-2,4 | Mini Split | 1.0 | Caseta de control de acceso | AA-2,4 | 1.0 |
| 05 | AA-5,7 | Mini Split | 2.0 | Sala de espera | AA-5,7 | 2.0 |
| 06 | AA-10,12 | Mini Split | 2.5 | Cámara hiperbárica | AA-10,12 | 2.5 |
| 07 | AA-13,15 | Mini Split | 2.5 | Cámara hiperbárica | AA-13,15 | 2.5 |
| Cámara Hiperbárica Planta Alta |
| 09 | AA1-25,27 | Mini Split | 1.5 | Sala de espera | AA1-25,27 | 1.5 |
| 10 | AA1-26,28 | Mini Split | 1.5 | Sala de espera | AA1-26,28 | 1.5 |
| 11 | AA1-29,31 | Mini Split | 1.5 | Gimnasio | AA1-29,31 | 1.5 |
| 12 | AA1-18,20 | Mini Split | 1.5 | Gimnasio | AA1-18,20 | 1.5 |
| 13 | AA1-21,23 | Mini Split | 1.0 | Camillas | AA1-21,23 | 1.0 |
| 14 | AA1-22,24 | Mini Split | 1.0 | Control | AA1-22,24 | 1.0 |
| 15 | AA1-17,19 | Mini Split | 1.0 | Circulación | AA1-17,19 | 2.0 |
| 16 | AA1-14,16 | Mini Split | 1.0 | C5 fisioterapia | AA1-14,16 | 1.0 |
| 17 | AA1-13,15 | Mini Split | 1.0 | C4 fisioterapia | AA1-13,15 | 1.0 |
| 18 | AA1-9,11 | Mini Split | 1.0 | C3 miembros superiores e inferiores | AA1-9,11 | 1.0 |
| 19 | AA1-6,8 | Mini Split | 1.0 | C2 parafinas y compresas | AA1-6,8 | 1.0 |
| 20 | AA1-10,12 | Mini Split | 2.0 | circulación | AA1-10,12 | 2.0 |
| 21 | AA1-1,3 | Mini Split | 1.5 | C1 hidroterapia | AA1-1,3 | 1.5 |
| 22 | AA1-2,4 | Mini Split | 1.0 | IDF | AA1-2,4 | 1.0 |
| 23 | AA1-5,7 | Mini Split | 2.0 | Consultorio | AA1-5,7 | 2.0 |
| | | | | | | |
Elevadores
El edificio contará con un elevador OTIS GEN 2- COMFORT con capacidad para 13 personas.
Elaboró: Arq. Lourdes Inés Echeverría Quintal.- Rúbrica.- Revisó: Ing. Carlos Orlando Pérez Zaldívar.- Rúbrica.- Vo. Bo. Arq. Mario Alberto Cepeda García.- Rúbrica.
ANEXO 2
CALENDARIO DE REASIGNACIÓN
ANEXO 3
CALENDARIO DE EJECUCIÓN DEL PROYECTO
Ramo: 13 MARINA
Proyecto: Construcción y Equipamiento de un Hospital Naval en Yucalpetén, Yuc.
Programa Presupuestario: K012 "Proyectos de Infraestructura Social de Asistencia y Seguridad Social"
Estado de Yucatán
______________________________