PROYECTO de Norma Oficial Mexicana PROY-NOM-022-ENER/SE-2020, Eficiencia energética y requisitos de seguridad al usuario para aparatos de refrigeración comercial autocontenidos. Límites, métodos de prueba y etiquetado.

Al margen un sello con el Escudo Nacional, que dice: Estados Unidos Mexicanos.- Secretaría de Energía.- Comisión Nacional para el Uso Eficiente de la Energía.- Comité Consultivo Nacional de Normalización para la Preservación y Uso Racional de los Recursos Energéticos (CCNNPURRE).

PROYECTO DE NORMA OFICIAL MEXICANA PROY-NOM-022-ENER/SE-2020, EFICIENCIA ENERGÉTICA Y REQUISITOS DE SEGURIDAD AL USUARIO PARA APARATOS DE REFRIGERACIÓN COMERCIAL AUTOCONTENIDOS. LÍMITES, MÉTODOS DE PRUEBA Y ETIQUETADO.
ODÓN DEMÓFILO DE BUEN RODRÍGUEZ, Presidente del Comité Consultivo Nacional de Normalización para la Preservación y Uso Racional de los Recursos Energéticos (CCNNPURRE) y Director General de la Comisión Nacional para el Uso Eficiente de la Energía y ALFONSO GUATI ROJO SÁNCHEZ, Director General de Normas y Presidente del Comité Consultivo Nacional de Normalización de la Secretaría de Economía (CCONNSE), con fundamento en los artículos con fundamento en los artículos 33, fracción X, 34, fracciones II, XIII y XXXIII de la Ley Orgánica de la Administración Pública Federal; 4 de la Ley Federal de Procedimiento aAdministrativo;17, 18, fracciones V, XIV y XIX y 36, fracción IX de la Ley de Transición Energética; 38, fracciones II y IV, 39, fracción V, 40 fracciones I, XII y XVIII, 41 y 47 fracción IV y penúltimo párrafo, de la Ley Federal sobre Metrología y Normalización; 28, 31 y 34 del Reglamento de la Ley Federal sobre Metrología y Normalización, y 22, fracciones I, IV, IX, X, XXI y XXV del Reglamento Interior de la Secretaría de Economía; 2 apartado F, fracción II, 8, fracciones XIV, XV y XXX, 39 y 40 del Reglamento Interior de la Secretaría de Energía y en el artículo Único, fracciones I y II del Acuerdo por el que se delegan en el Director General de la Comisión Nacional para el Uso Eficiente de la Energía, las facultades que se indican, publicado en el Diario Oficial de la Federación el día 21 de julio de 2014; y
CONSIDERANDO
Que el presente proyecto de Norma Oficial Mexicana se sometió a consideración, y fue aprobado por el Comité Consultivo Nacional de Normalización para la Preservación y Uso Racional de los Recursos Energéticos, en su Quincuagésima Octava Sesión Ordinaria del 17 de junio de 2020, así como por el Comité Consultivo Nacional de Normalización de la Secretaría de Economía, en su Tercera Sesión Extraordinaria del 18 de junio de 2020. Lo anterior, con el fin de llevar a cabo su publicación en el Diario Oficial de la Federación y someterlo a consulta pública, de conformidad con el artículo 47, fracción I de la Ley Federal sobre Metrología y Normalización y 33 párrafo primero de su Reglamento, a efecto de que los interesados, dentro de los sesenta días naturales contados, a partir de la fecha de su publicación en el Diario Oficial de la Federación, presenten sus comentarios ante el CCNNPURRE, ubicado en: Av. Revolución No. 1877, Colonia Loreto, Alcaldía Álvaro Obregón, Ciudad de México, CP. 01090, correo electrónico: norma.morales@conuee.gob.mx o ante el CCONNSE, ubicado en: Pachuca 189, Colonia Condesa, Alcaldía Cuauhtémoc, CP. 06140, Ciudad de México, al correo electrónico alfonso.guati@economia.gob.mx, para que, en los términos de la ley de la materia, se consideren en el seno de los Comités que lo propusieron.
Asimismo, de acuerdo a lo dispuesto por el artículo 45 de la Ley Federal sobre Metrología y Normalización, la Manifestación de Impacto Regulatorio relacionada con el Proyecto de Norma Oficial Mexicana PROY-NOM-022-ENER/SE-2020, Eficiencia energética y requisitos de seguridad al usuario para aparatos de refrigeración comercial autocontenidos. Límites, métodos de prueba y etiquetado, estará a disposición del público para su consulta en el domicilio de los Comités antes señalados.
Por lo expuesto y fundado, se expide para consulta pública el siguiente:
PROYECTO DE NORMA OFICIAL MEXICANA PROY-NOM-022-ENER/SE-2020, EFICIENCIA
ENERGÉTICA Y REQUISITOS DE SEGURIDAD AL USUARIO PARA APARATOS DE REFRIGERACIÓN
COMERCIAL AUTOCONTENIDOS. LÍMITES, MÉTODOS DE PRUEBA Y ETIQUETADO.
Sufragio Efectivo. No Reelección
Ciudad de México, a 18 de junio de 2020.- El Presidente del Comité Consultivo Nacional de Normalización para la Preservación y Uso Racional de los Recursos Energéticos (CCNNPURRE) y Director General de la Comisión Nacional para el Uso Eficiente de la Energía, Odón Demófilo de Buen Rodríguez.- Rúbrica.- El Presidente del Comité Consultivo Nacional de Normalización de la Secretaría de Economía (CCONNSE) y Director General de Normas de la Secretaría de Economía, Alfonso Guati Rojo Sánchez.- Rúbrica.
 
Este proyecto de Norma Oficial Mexicana fue elaborado en el Comité Consultivo Nacional de Normalización para la Preservación y Uso Racional de los Recursos Energéticos (CCNNPURRE) y el Comité Consultivo Nacional de Normalización de la Secretaría de Economía (CCONNSE), con la colaboración de los siguientes organismos, instituciones y empresas:
-      Asesoría y Pruebas a Equipo Eléctrico y Electrónico S.A. de C.V.;
-      Asociación de Normalización y Certificación, A.C.;
-      Asociación Nacional de Fabricantes para la Industria de la Refrigeración;
-      Criotec, S.A. de C.V.;
-      Dirección General de Gestión de la Calidad del Aire y Registro de Emisiones y Transferencia de Contaminantes, SEMARNAT;
-      Fideicomiso para el Ahorro de Energía Eléctrica;
-      Imbera, S.A. de C.V.;
-      Maskiner México;
-      Metalfrio Solutions México, S.A. de C.V.;
-      Metaplus, S.A. de C.V.;
-      ONNERA México S.A. de C.V.;
-      Procuraduría Federal del Consumidor;
-      Refrigeración Ojeda S.A. de C.V.
CONTENIDO
1.    Objetivo y Campo de aplicación
2.    Referencias
3.    Definiciones
3.1   Abatimiento de temperatura (Pull-Down)
3.2   Accesorio
3.3   Aislamiento principal
3.4   Aislamiento reforzado
3.5   Aislamiento suplementario (aislamiento de protección)
3.6   Aparato
3.7   Aparato estacionario
3.8   Aparato clase 0
3.9   Aparato clase 0I
3.10  Aparato clase I
3.11  Aparato clase II
3.12  Aparato clase III
3.13  Autocontenidos
3.14  Carga normal
3.15  Circulación forzada de aire
3.16  Congelador
3.17  Conservador de bolsas con hielo
3.18  Consumo de energía por litro
 
3.19  Control de temperatura
3.20  Cordón de alimentación
3.22  Corriente nominal o corriente asignada
3.22  Corta circuito térmico
3.23  Cuerpo
3.24  Dispositivo de control térmico o dispositivo de protección térmica
3.25  Doble aislamiento
3.26  Enfriador
3.27  Frecuencia nominal
3.28  Funcionamiento normal
3.29  Herramienta
3.30  Intervalo de tensiones nominales o intervalo de tensiones asignadas
3.31  Operación continua o normal
3.32  Parte accesible
3.33  Parte desmontable
3.34  Parte no desmontable
3.35  Parte viva
3.36  Placa fría
3.37  Polietileno de Tereftalato (PET)
3.38  Potencia nominal de entrada o potencia asignada
3.39  Refrigerante
3.40  Refrigerante inflamable
3.41  Sistema de refrigeración de aire forzado
3.42  Sistema de refrigeración de placas frías
3.43  Sistema de refrigeración híbrido
3.44  Tensión extra baja de seguridad (SELV)
3.45  Tensión nominal
3.46  Vitrina
3.47  Volumen refrigerado útil
4.     Clasificación
5.    Requisitos y métodos de prueba
5.1   Eficiencia energética
5.2   Abatimiento de temperatura (Pull-Down)
5.3   Seguridad al usuario
6.    Muestreo
7.    Criterios de aceptación
7.1   Eficiencia energética
7.2   Abatimiento de temperatura (Pull-Down)
7.3   Seguridad al usuario
8.    Etiquetado y marcado
 
8.1   Etiquetado
8.2   Marcado
9.    Vigilancia
10.   Procedimiento de evaluación de la conformidad
11.   Concordancia con normas internacionales
Apéndices
Apéndice A (Normativo) Figuras
Apéndice B (Normativo) Definición del sistema de medición
Apéndice C (Normativo) Determinación del volumen refrigerado útil
Apéndice D (Normativo) Colocación de los medidores de la velocidad del aire
Apéndice E (Normativo) Carga y colocación de sensores de los aparatos de prueba
Apéndice F (Normativo) Circuito para medición de corrientes de fuga
Figuras
FIGURA 1. Ejemplo de etiqueta para aparatos de refrigeración comercial autocontenidos
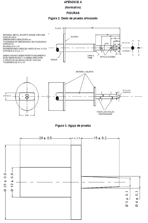
FIGURA 2. Dedo de prueba articulado
FIGURA 3. Aguja de prueba
FIGURA 4. Probeta de prueba
FIGURA 5. Diagrama para la medición de corriente de fuga a la temperatura de operación para equipos monofásicos Clase II
FIGURA 6. Aparatos distintos de Clase II monofásicos
FIGURA 7. Aparatos de Clase II trifásicos
FIGURA 8. Diagrama para la medición de la corriente de fuga a la temperatura de operación de aparatos distintos de Clase II trifásicos
Tablas
TABLA 1. Valores límite de consumo de energía por litro para aparatos de refrigeración comercial y de uso médico autocontenidos
TABLA 2. Dimensiones y masa de los bloques
TABLA 3. Intervalos de desempeño
TABLA 4. Límite de tiempo para prueba de Abatimiento de Temperatura
TABLA 5. Desviaciones permitidas en potencia
TABLA 6. Incremento de temperatura permisible
TABLA 7. Valores límite para corriente de fuga
TABLA 8. Tensión de prueba
TABLA 9. Resistencia de aislamiento
TABLA 10. Límites de temperatura
TABLA 11. Clasificación de las familias considerando el tipo de producto y la capacidad útil de refrigeración
TABLA B.1. Instrumentos de medición y grado de exactitud
TABLA B.2. Variaciones permisibles en los parámetros medidos
 
12.   Bibliografía
13.   Transitorios
1. Objetivo y Campo de aplicación
Este proyecto de Norma Oficial Mexicana establece los límites de consumo máximo de energía eléctrica por litro de volumen refrigerado útil y el método de prueba para verificar su cumplimiento, los requisitos de seguridad al usuario y los métodos de prueba para determinar su cumplimiento, así como los requisitos de etiquetado y marcado. Aplica a los siguientes aparatos de refrigeración comercial autocontenidos, Clase I alimentados con energía eléctrica, nuevos, usados y reconstruidos.
Con capacidades mínimas según el tipo de aparato y de acuerdo con Tabla 1, que se comercialicen en los Estados Unidos Mexicanos.
Tipo de aparato                                                             Capacidad mínima (litros)
-      Enfriadores verticales con una o más puertas                                 25
-      Enfriadores horizontales                                                            50
-      Congeladores horizontales, incluye equipo médico                          50
-      Congeladores verticales, incluye equipo médico                              50
-      Vitrinas cerradas                                                                     100
-      Conservadores de bolsas con hielo                                             100
Se excluyen del campo de aplicación los siguientes productos:
-      Enfriadores con despachadores de bebidas: cerveza, agua, vino, etc.
-      Equipos remotos.
-      Enfriadores sin puerta o cortina de aire.
-      Enfriadores o conservadores de vino.
-      Enfriador/congeladores combinados o dos en uno.
-      Cuartos o Cámaras de enfriar o congelar.
-      Mesas frias y/o mesas de preparación de alimentos.
Para los aparatos que queden fuera del alcance del presente proyecto de Norma y se encuentren dentro del campo de aplicación de la NOM-003-SCFI o la que la cancele, deberán cumplir con las especificaciones correspondientes de dicha NOM.
2. Referencias
Para la correcta aplicación de este proyecto de Norma Oficial Mexicana, deben consultarse y aplicarse las siguientes normas vigentes o las que en su caso las sustituyan:
-      NOM-008-SCFI-2002, Sistema General de Unidades de Medida, publicada en el Diario Oficial de la Federación el 27 de noviembre de 2002.
-      NOM-024-SCFI-2013, Información comercial para empaques, instructivos y garantías de los productos electrónicos, eléctricos y electrodomésticos, publicada en el Diario Oficial de la Federación el 8 de agosto de 2013.
-      NOM-106-SCFI-2017, Características de diseño y condiciones de uso de la Contraseña Oficial., publicada en el Diario Oficial de la Federación el 8 de septiembre de 2017.
-      NOM-003-SCFI-2014, Productos eléctricos - Especificaciones de seguridad, publicada en el Diario Oficial de la Federación el 28 de mayo de 2015.
3. Definiciones
Para efectos de este proyecto de Norma Oficial Mexicana se establecen las siguientes definiciones. Cuando se usen los términos tensión y corriente debe entenderse que se trata de magnitudes eléctricas y de valores eficaces (raíz cuadrática media, rcm).
Donde se utilice el término motor, incluye también a las unidades de accionamiento magnético.
3.1 Abatimiento de temperatura (Pull-Down)
Tiempo que un enfriador vertical u horizontal con circulación forzada de aire, tarda en enfriar la carga de
prueba, partiendo de las condiciones del cuarto de prueba que se indican, hasta llegar a los valores de temperatura máxima y promedio que se especifican en la Tabla 3.
3.2 Accesorio
Herramienta o utensilio auxiliar de un aparato de refrigeración que no afecta su funcionamiento.
3.3 Aislamiento principal
Aislamiento que se aplica a las partes vivas destinado a proveer protección básica contra el choque eléctrico.
3.4 Aislamiento reforzado
Aislamiento único que se aplica a las partes vivas el cual proporciona un grado de protección contra el choque eléctrico equivalente al doble aislamiento bajo las condiciones que se especifican en esta norma.
NOTA - Esto no implica que el aislamiento sea homogéneo. El aislamiento puede comprender varias capas que no puedan probarse individualmente como aislamiento suplementario o aislamiento principal.
3.5 Aislamiento suplementario (aislamiento de protección)
Aislamiento independiente que se aplica además del aislamiento principal, con el fin de asegurar la protección contra el choque eléctrico en el caso de una falla del aislamiento principal.
3.6 Aparato
Refrigeradores comerciales autocontenidos que se indican en el Capítulo 1.
3.6.1 Aparato de Refrigeración comercial.
Aparato para uso comercial que enfría o congela o conserva por medio de un sistema refrigerante alimentado con energía eléctrica para la conservación de productos.
3.6.2 Aparato de Refrigeración de uso médico.
Aparato para uso médico que congela por medio de un sistema refrigerante alimentado con energía eléctrica para la conservación de biológicos y medicamentos.
3.7 Aparato estacionario
Aparato que se instala en un lugar fijo, que no tiene ruedas ni asideras para facilitar su movimiento.
3.8 Aparato clase 0
Aparato en el cual la protección contra el choque eléctrico recae en partes accesibles conductoras, si las hay, al conductor de protección en el alambrado fijo únicamente sobre aislamiento principal; esto implica que no hay medios para la conexión de la instalación recayendo la protección en el caso de una falla del aislamiento principal sobre el entorno.
Nota: los aparatos clase 0 tienen un envolvente de material aislante que puede formar una parte o todo el aislamiento principal, o un envolvente de metal el cual está separado de las partes vivas mediante un aislamiento adecuado. Si un aparato con un envolvente de material aislante tiene prevista la puesta a tierra para las partes interiores, se considera aparato clase I o aparato clase 0I
3.9 Aparato clase 0I
Aparato que tiene por lo menos aislamiento principal en su totalidad y que está provisto de una terminal de puesta a tierra, pero con un cordón de alimentación sin conductor de puesta a tierra y una clavija sin contacto para puesta a tierra.
3.10 Aparatos clase I
Aparato en el cual la protección contra el choque eléctrico no recae sobre el aislamiento principal solamente si no que incluye una medida de seguridad adicional, mediante la cual las partes accesibles conductoras se conectan al conductor de protección (puesta a tierra) en el alambrado fijo de la instalación, de forma que las partes accesibles conductoras no puedan llegar a ser vivas en el caso de una falla del aislamiento principal.
3.11 Aparatos clase II
Aparato en el cual la protección contra el choque eléctrico no recae sobre el aislamiento principal
solamente, sino en el cual se prevén medidas de seguridad adicionales, como un doble aislamiento o aislamiento reforzado, que no incluye medios de puesta a tierra y no depende de las condiciones de la instalación.
NOTA 1 - Dicho aparato puede ser de uno de los tipos siguientes:
Un aparato con un envolvente de material aislante duradero y sustancialmente continuo que envuelve todas las partes metálicas, a excepción de las partes pequeñas, como placas de características, tornillos y remaches, que se aíslan de las partes vivas mediante aislamiento equivalente, por lo menos, al aislamiento reforzado; dicho aparato se denomina un aparato clase II con cubierta aislante;
Un aparato con un envolvente metálico sustancialmente continuo, en el cual el doble aislamiento o aislamiento reforzado se utiliza en su totalidad; se denomina un aparato clase II con cubierta metálica;
Un aparato que es una combinación de aparato clase II con cubierta aislante y un aparato clase II con cubierta metálica.
NOTA 2 - El envolvente de un aparato clase II con cubierta aislante puede formar parte del total del aislamiento suplementario o del aislamiento reforzado.
NOTA 3 - Si un aparato que tiene doble aislamiento o aislamiento reforzado incorpora dispositivos de puesta a tierra, se considera aparato clase I o clase 0I.
3.12 Aparatos clase III
Aparato en el cual la protección contra el choque eléctrico recae sobre la de seguridad y en el cual no se generan tensiones superiores a éstas.
NOTA - Puede requerirse alimentación a tensión extra-baja adicionalmente el aislamiento principal cuando se alimenta a tensión extra-baja de seguridad (SELV).
3.13 Autocontenidos
Aparatos que tienen integrado en su gabinete un circuito cerrado de refrigeración (incluye la unidad condensadora) ensamblado permanentemente desde fabrica.
3.14 Carga normal
Carga eléctrica que debe aplicarse a un aparato de refrigeración, de tal forma que el esfuerzo impuesto corresponda a aquel que ocurre bajo condiciones de uso normal, teniendo en cuenta cualquier indicación de operación a corto tiempo o todos sus accesorios eléctricos operando como en uso normal, los hay.
3.15 Circulación forzada de aire
Sistema de enfriamiento que requiere el paso forzado del aire interior del aparato a través del evaporador, mediante un ventilador.
3.16 Congelador
Aparato diseñado para mantener una temperatura menor o igual a -18 °C y se clasifica en:
3.16.1 Congelador Horizontal
Cuyo acceso se hace a través de una o más puertas en la parte superior.
3.16.2 Congelador Vertical
Cuyo acceso se hace a través de una o más puertas.
3.16.3 Congelador de uso médico
Aparato para uso médico enfriado por medio de un sistema refrigerante alimentado con energía eléctrica para la conservación de biológicos y medicamentos. Con temperaturas de congelación menor o igual a -18 °C.
3.17 Conservador de bolsas con hielo
Aparato diseñado para mantener una temperatura interior menor o igual -6 °C y se clasifica en:
3.17.1 Conservador de bolsas con hielo horizontal
Cuyo acceso se hace a través de una o más puertas en la parte superior.
3.17.2 Conservador de bolsas con hielo vertical
Cuyo acceso se hace a través de una o más puertas.
3.18 Consumo de energía por litro
 
Medida indirecta de la eficiencia de los aparatos objeto de esta norma y se determina dividiendo el consumo de energía en 24 h de un aparato en Wh, entre el volumen refrigerado útil del mismo en litros, en las condiciones especificadas en esta norma. Se expresa en Wh/L.
3.19 Control de temperatura
Dispositivo sensible a la temperatura, cuya temperatura de operación puede ser fija o ajustable y que en uso normal conserva la temperatura de un aparato o partes de él dentro de ciertos límites, abriendo y cerrando un circuito eléctrico automáticamente.
3.20 Cordón de alimentación
Cordón flexible para propósitos de alimentación, el cual se integra al aparato por un medio de fijación.
3.21 Corriente nominal o corriente asignada
Corriente que se atribuye al aparato por el fabricante.
NOTA - Si no se atribuye ninguna corriente al aparato, la corriente nominal o corriente asignada es:
Para los aparatos de calentamiento, la corriente que se calcula a partir de la potencia nominal y de la tensión nominal; y
Para los aparatos operados por motor y aparatos combinados, la corriente que se mide mientras el aparato se alimenta a la tensión nominal y se pone en operación en las condiciones de funcionamiento normal.
3.22 Corta circuito térmico
Dispositivo que durante funcionamiento anormal limita la temperatura de la parte a controlar por la apertura automática del circuito o por la reducción de la corriente, y que se construye de forma que su ajuste no pueda modificarse por el usuario.
3.23 Cuerpo
Incluye: Todas las partes metálicas accesibles, flechas de manija, perillas, asas y partes similares, así como todas las superficies accesibles de material aislante que para propósitos de prueba se cubren con láminas delgadas; no incluye las partes metálicas no accesibles.
3.24 Dispositivo de control térmico o dispositivo de protección térmica
Componente sensor de temperatura distinto al que utiliza el control de temperatura del aparato que sirve de seguridad al usuario, cuya temperatura de funcionamiento es fija y que durante el funcionamiento normal o anormal funciona abriendo o cerrando un circuito cuando la temperatura de la parte controlada alcanzan un valor predeterminado.
3.25 Doble aislamiento
Sistema de aislamiento que incluye tanto un aislamiento principal, como un aislamiento suplementario.
3.26 Enfriador
Aparato para operar a temperatura media, que puede estar diseñado con sistema de refrigeración con circulación de aire forzado, placa fría o una combinación de ambos (híbrido), y se clasifican en:
3.26.1 Enfriador horizontal
Cuyo acceso se hace a través de una o más puertas en la parte superior.
3.26.2 Enfriador vertical
Cuyo acceso se hace a través de una o más puertas.
3.27 Frecuencia nominal
Frecuencia eléctrica especificada en el aparato por el fabricante.
3.28 Funcionamiento normal
Condiciones en las cuales el aparato se pone en funcionamiento como en uso normal, al encontrarse conectado a la fuente de alimentación.
3.29 Herramienta
Desarmador, moneda u otro objeto cualquiera que pueda utilizarse para manipular un tornillo o un dispositivo de fijación similar.
3.29.1 Sin fuerza apreciable
Fuerza con una magnitud de 10 N ± 1 N.
3.30 Intervalo de tensiones nominales o intervalo de tensiones asignadas
 
Intervalo de tensiones que se atribuye al aparato por el fabricante, que se expresa mediante sus límites inferior y superior.
3.31 Operación continua o normal
Operación bajo carga normal eléctrica o de acuerdo a las condiciones normales de trabajo durante un periodo ilimitado.
3.32 Parte accesible
Parte o superficie (conductora) metálica o no que puede tocarse con la aguja de prueba que se indica en la figura 3 del Apéndice A.
3.33 Parte desmontable
Parte que puede retirarse o abrirse sin ayuda de una herramienta, una parte que se retira de acuerdo con las instrucciones aunque sea necesaria una herramienta para retirarla.
NOTA 1 - Si para propósitos de instalación, una parte tiene que retirarse, esta parte no se considera desmontable aún si las instrucciones establecen que tiene que retirarse.
NOTA 2 - Los componentes que puedan retirarse sin la ayuda de una herramienta son considerados como partes desmontables
3.34 Parte no desmontable
Parte de un aparato la cual únicamente puede ser removida o abierta con la ayuda de una herramienta.
3.35 Parte viva
Conductor o parte conductora que se destina para energizarse durante funcionamiento normal, incluyendo el conductor neutro, pero por convención, no un conductor tipo PEN.
NOTA 1 - Un conductor tipo PEN es un conductor de protección neutro puesto a tierra que combina las funciones tanto de un conductor de protección, como de un conductor neutro.
3.35.1 Conductor
Alambre o conjunto de alambres, no aislados entre destinados a conducir la corriente eléctrica. Puede ser desnudo, aislado o cubierto.
3.35.2 Parte conductora
Parte capaz de conducir una corriente eléctrica
3.36 Placa fría
Placa metálica de un aparato de refrigeración cuya superficie sirve como medio para enfriar.
3.37 Polietileno de Tereftalato (PET)
Polímero termoplástico lineal con alto grado de cristalinidad, se utiliza principalmente para la producción de textiles y gran variedad de envases.
En lo subsecuente se denominará PET durante el desarrollo de la norma.
3.38 Potencia nominal de entrada o potencia asignada
Potencia que se atribuye al aparato por el fabricante.
Si no se atribuye ninguna potencia al aparato, la potencia nominal para los aparatos de calentamiento y aparatos combinados es la potencia que se mide mientras el aparato se alimenta a la tensión nominal y se pone en operaciones en las condiciones de funcionamiento normal.
3.39 Refrigerante
Fluido usado para transferir calor en un sistema de refrigeración. Este fluido absorbe calor a baja temperatura y baja presión. El fluido cede calor a una temperatura mayor y a una presión mayor. Usualmente implica un cambio de estado del fluido.
3.40 Refrigerante inflamable
Refrigerante con una clasificación de inflamabilidad del grupo A2, A2L o A3 de acuerdo con ISO 5149-1.
NOTA Para las mezclas de refrigerantes que tienen más de una clasificación de inflamabilidad, la clasificación más desfavorable se toma para los propósitos de esta definición.
3.41 Sistema de refrigeración de aire forzado
 
Sistema de convección forzada del aire a través del evaporador, por medio de uno o más ventiladores, para lograr el enfriamiento del producto.
3.42 Sistema de refrigeración de placas frías
Sistema que consta de una o más placas frías y usa como medio de transferencia de energía la convección natural del aire, para lograr el enfriamiento del producto.
3.43 Sistema de refrigeración híbrido
Sistema que combina el uso de placas frías y aire forzado, para lograr el enfriamiento del producto.
3.44 Tensión extra baja de seguridad (SELV)
Tensión nominal entre conductores y entre conductores y tierra que no excede de 42 V o en caso de circuitos trifásicos que no exceden de 24 V entre conductores y neutro, la tensión sin carga del circuito que no exceden de 50 V y 29 V, respectivamente.
Cuando una tensión extra baja de seguridad se obtiene de una fuente principal con tensión más elevada, la obtención se hace a través de un transformador de seguridad o convertidor de devanados separados.
Los límites de tensión están basados en la suposición de que el transformador de seguridad está alimentado a su tensión nominal.
Nota: Los sistemas de iluminación led por debajo de 24 V se consideran de tensión extra baja de seguridad.
3.45 Tensión nominal
Valor de la tensión o intervalo de tensiones de la red eléctrica que el fabricante asigna al aparato para su alimentación y operación.
3.46 Vitrina
Aparato exhibidor diseñado para conservar una temperatura media o baja, cuyo acceso se hace a través de una o más puertas.
a)    Temperatura baja: se encuentra comprendida entre -5° y C.
b)    Temperatura media: se encuentra comprendida entre -2° y 12° C.
3.47 Volumen refrigerado útil
Resultado de la sumatoria de los volúmenes determinados por la geometría interna del aparato expresado en litros, destinados para el acomodo y enfriamiento del producto y calculados de acuerdo con lo indicado en el Apéndice C.
4. Clasificación
Para efectos de este proyecto de Norma Oficial Mexicana, todos los aparatos de refrigeración comercial y de uso médico autocontenidos deben ser clase I de acuerdo con el inciso 3.10 y se clasifican como se indica en la Tabla 1. No se permiten los aparatos clase 0 y 0I por lo que debe adecuarse el aparato para cumplir con los requisitos de clase I.
Para el caso de aparatos con sistema de refrigeración híbrido, el fabricante debe recomendar si el aparato se clasifica como circulación forzada de aire o de placas frías, dependiendo del intervalo de capacidad de la Tabla 1.
TABLA 1.- Valores límite de consumo de energía por litro para aparatos de refrigeración comercial y de uso
médico autocontenidos
TIPO DE APARATO
LÍMITE DE CONSUMO.
(Wh/L en 24 h)
INTERVALO DE
CAPACIDAD ( L )
LÍMITE DE CONSUMO
DESPUÉS DEL
INTERVALO (Wh/L en 24
h) (1)
ENFRIADOR VERTICAL
Con circulación forzada de aire y puerta cristal
C = 199,5 * (V) -0,4537
25 1 200
8,0
Con circulación forzada de aire y puerta sólida
C = 188,4 * (V) -0,4537
25 1 200
7,6
Con placa fría
C = 996,5 * (V) -0,8763
25 1 200
2,0
ENFRIADOR HORIZONTAL
Con circulación forzada de aire
C = 3 926,3 * (V) -1,0162
50 500
7,2
De placa fría
C = 966,5 * (V) -0,8763
50 500
4,2
CONGELADOR VERTICAL
Con puerta de cristal y circulación forzada de aire
Con puerta sólida y circulación forzada de aire
C = 68,2 * (V) -0,1136
C = 56,2 * (V) -0,1136
50 1 200
30,5
25,1
Con puerta de cristal y placa fría
C = 219,2 * (V) -0,4189
50 1 500
10,3
CONGELADOR HORIZONTAL
Con puerta sólida, incluye los de uso médico
C = 35,3 * (V) -0,2142
50 700
8,7
Con puerta de cristal, incluye los de uso médico
C = 74,8 * (V) -0,2839
50 700
11,6
VITRINA CERRADA
De temperatura media
C = 140,3 * (V) -0,2915
100 1 200
17,8
De baja temperatura
C = 97,8 * (V) -0,1228
100 1 200
40,9
CONSERVADORES DE BOLSAS CON HIELO
 
C = 224,5 * (V) -0,5674
100 2 500
2,6
 
Nota. Estos valores no se calculan y son constantes para todas las capacidades mayores a los intervalos de capacidad de la columna tres.
5. Requisitos y métodos de prueba
5.1 Eficiencia energética
El consumo eléctrico de los aparatos objeto de este proyecto de Norma Oficial Mexicana y determinado con el método de prueba especificado en este inciso, no debe exceder del valor correspondiente que resulta de la aplicación de la ecuación indicada en la Tabla 1, donde:
C = Consumo máximo permitido en Wh/L en 24 h.
V = Volumen refrigerado útil en litros.
El fabricante debe marcar en la etiqueta el consumo de energía en Wh/L en 24 h, este valor debe ser igual o menor al valor especificado en la Tabla 1, para el intervalo de capacidad correspondiente.
5.1.1 Condiciones de prueba
La prueba consiste en determinar el consumo de energía por litro en 24 h, referido al volumen refrigerado útil del aparato, con todos los accesorios con los que fue diseñado funcionando y en condiciones ambientales y temperaturas de la carga de prueba que se definen y en condiciones estables.
5.1.1.1 Instrumentos de medición
Los instrumentos que se utilizan para esta prueba y su exactitud, así como las variaciones permisibles en las mediciones deben ser los indicados en el Apéndice B.
5.1.1.2 Determinación del volumen refrigerado útil
La determinación del volumen refrigerado útil medido en litros, se debe hacer de acuerdo a lo especificado en el Apéndice C.
5.1.1.3 Suministro eléctrico
El suministro eléctrico debe ser a una tensión de 115 V ± 3 V o 230 V ± 3 V en c.a., a 60 Hz ± 0,8 %. Para unidades con tensión dual se debe utilizar la tensión más baja.
5.1.1.4 Preparación de los aparatos para la prueba
Se debe operar el aparato hasta que el compresor cumpla tres ciclos de operación, mientras tanto se verifica que todos los componentes eléctricos y mecánicos funcionan correctamente. Verificar que el aparato esté nivelado. Esta etapa de la preparación puede realizarse dentro o fuera del cuarto de pruebas.
Nota 1. Los equipos que cuenten con un ajuste de control de temperatura que opere en intervalos distintos a la Tabla 3 deben sustituir dicho control de temperatura para poder cubrir el intervalo especificado.
Nota 2. Para equipos que incluyan funciones de control adicionales como deshielos deben desactivar esta
función para efectos de la prueba, a menos que esto en sí, limite la operación del equipo.
5.1.1.5 Condiciones del cuarto de pruebas
Para realizar la prueba el aparato se debe colocar dentro de un cuarto cerrado que debe tener las siguientes condiciones ambientales como requisito para iniciar la prueba:
a) La temperatura del cuarto debe ser de 32 °C ± 1,5 °C. La ubicación de los sensores de la temperatura del cuarto de pruebas debe ser de acuerdo con el inciso E.1 del Apéndice E.
b) La humedad relativa del cuarto debe ser del 65 % ± 5 %. El sensor de la humedad relativa se puede colocar en cualquier parte del cuarto de pruebas, exceptuando la entrada y la salida del aire.
c) La velocidad del aire no debe exceder los 0,25 m/s. La medición se debe hacer al inicio de la prueba en los lugares indicados en el Apéndice D, utilizando un anemómetro.
Cualquier variación durante la prueba de la temperatura fuera de la tolerancia de ± 1,5 °C y de la humedad fuera de la tolerancia de ± 5 %, debe ser causa de repetición de la prueba.
5.1.2 Carga de prueba
5.1.2.1 La carga de prueba para enfriadores verticales y horizontales deben ser botellas de PET con capacidad nominal de 600 ml, conteniendo refresco sin pulpa, selladas herméticamente. Las botellas de PET de 600 ml que contengan los sensores de temperatura deben contener 600 ml ± 15 ml de una mezcla de 33% glicol y 67% de agua destilada y el sensor colocado en su centro geométrico.
5.1.2.2 La carga de prueba para congeladores y vitrinas, deben ser bloques con la composición, dimensiones y masa que se especifica a continuación, colocados como se indica en el Apéndice E.
Composición de los bloques:
1.- 230,0 g de oximetilcelulosa
2.- 764,2 g de agua
3.- 5,0 g de cloruro de sodio
4.- 0,8 g de 6 cloro m - cresol
TABLA 2.- Dimensiones y masa de los bloques
Dimensiones mm
Masa g
25 x 50 x 100
125,0
50 x 100 x 100
500,0
50 x 100 x 200
1 000,0
25 x 100 x 200 (1)
500,0
37,5 x 100 x 200 (1)
750,0
 
Nota 1. Estos bloques pueden utilizarse para complementar la carga.
Los bloques deben envolverse con una bolsa de polietileno y sellarse.
Los bloques que tengan los sensores de temperatura deben ser de 50 mm x 100 mm x 100 mm.
Antes de cargar el equipo, los bloques de prueba deben haber sido enfriados previamente a una temperatura similar a la esperada durante la prueba.
Nota 2. Para aparatos conservadores de bolsas con hielo, se debe realizar la prueba sin carga.
5.1.2.3 Carga del aparato
La carga de los diferentes aparatos se debe realizar como se especifica en el Apéndice E.
5.1.2.4 Colocación de sensores
La colocación de los sensores en el cuarto de pruebas y en los diferentes aparatos se debe realizar como se especifica en el Apéndice E. Antes de iniciar la prueba las puertas del aparato deben ser selladas en la zona de la entrada de los sensores de temperatura.
5.1.3 Duración de la prueba
Una vez cargado el aparato y que las temperaturas medidas cumplan con los valores especificados en la Tabla 3, el aparato se debe operar en esas condiciones como mínimo 2 h, posteriormente se inicia la medición del consumo de energía por un periodo de 24 h. Las lecturas se deben tomar cada 5 min o menos. Cualquier cambio en los parámetros establecidos requiere volver a iniciar la prueba.
 
5.1.3.1 Intervalos de desempeño
Es importante observar que la temperatura de la botella de PET o paquete más frío, no debe ser inferior al límite de temperatura más bajo indicado para cada caso; la temperatura de la botella de PET o paquete más caliente no debe ser superior al límite de temperatura más alto indicado en cada caso, y la temperatura promedio registrada, que es un promedio aritmético, debe mantenerse igual o por abajo del valor indicado en la Tabla 3.
TABLA 3.- Intervalos de desempeño
 
TEMPERATURA DE LA CARGA DE PRUEBA
[ ºC ]
Aparato
Límite de
temperatura
más alta
Temperatura
promedio menor o
igual a
Límite de
temperatura
más baja
Enfriador vertical y horizontal (circulación forzada de aire)
7,2
3,3
0
Enfriador vertical y horizontal (placas frías)
10,0
5,0
- 1,0
Vitrinas (temperatura media)
10,0
5,0
- 2,0
Vitrinas (temperatura baja)
0
- 2,5
- 5,0
Conservadores de bolsas con hielo
- 6,0
N/A
N/A
Congeladores
- 18,0
N/A
N/A
 
Nota. Los conservadores de bolsas con hielo se prueban sin carga de acuerdo con lo indicado en el Apéndice E.8.1, el valor de la tabla es el límite de temperaturas más alta medida del aire.
La gráfica siguiente ejemplifica cómo deben mantenerse las temperaturas antes y durante la prueba.

GRÁFICA DE TEMPERATURAS PARA LA MEDICIÓN DEL CONSUMO DE ENERGÍA
5.1.4 Consumo de energía
La medición del consumo de energía se debe efectuar con un wáttmetro y su respectivo integrador de tiempo o con un watthorímetro, cualquiera de los instrumentos debe cumplir con el grado de exactitud especificado en el Apéndice B.
 
Al finalizar la prueba se debe anotar el consumo en Wh que ha registrado el aparato durante las 24 h, este valor debe ser dividido por el volumen refrigerado útil del aparato probado, para obtener el consumo por litro y compararlo con los valores de consumo (Wh/L) que establece esta norma.
5.2 Abatimiento de temperatura (Pull-Down)
Aplica sólo a enfriadores verticales y horizontales con circulación de aire forzado e híbridos.
Los aparatos deben enfriar la carga de prueba especificada en el Apéndice E, a las temperaturas máxima y promedio indicadas en la Tabla 4, en un tiempo máximo conforme a la Tabla 4 y de acuerdo con las siguientes condiciones:
Tabla 4. Límite de tiempo para prueba de Abatimiento de Temperatura
Tipo de Aparato
Límite de tiempo
Enfriador vertical con circulación forzada de aire y puerta de cristal
19 h
Enfriador vertical con circulación forzada de aire y puerta sólida
17 h
Enfriador horizontal con circulación forzada de aire
19 h
 
5.2.1 Instrumentos de medición
Los instrumentos que se utilizan para esta prueba y su exactitud, así como las variaciones permisibles en las mediciones deben ser los indicados en el Apéndice B.
5.2.2 Suministro eléctrico
El suministro eléctrico debe ser a una tensión de 115 V ± 3 V o 230 V ± 3 V en c.a., a 60 Hz ± 0,8 %. Para unidades con tensión dual se debe utilizar la tensión más baja.
5.2.3 Preparación de los aparatos para la prueba
Se debe verificar que todos los componentes eléctricos y mecánicos funcionan correctamente. Esta etapa de la preparación puede realizarse dentro o fuera del cuarto de pruebas.
5.2.4 Condiciones del cuarto de pruebas
Para realizar la prueba, el aparato se debe colocar dentro de un cuarto cerrado que debe tener las siguientes condiciones ambientales como requisito para iniciar la prueba:
a) La temperatura del cuarto debe ser de 32 °C ± 1,5 °C. La ubicación de los sensores de la temperatura del cuarto de pruebas debe ser de acuerdo con el Apéndice E.
b) La humedad relativa del cuarto debe ser del 65 % ± 5 %. El sensor de la humedad relativa se puede colocar en cualquier parte del cuarto de pruebas, exceptuando la entrada y la salida del aire.
c) La velocidad del aire no debe exceder los 0,25 m/s, la medición se debe hacer al inicio de la prueba en los lugares indicados en el Apéndice C, utilizando un anemómetro.
Cualquier variación durante la prueba de la temperatura fuera de la tolerancia de ± 1,5 °C y de la humedad fuera de la tolerancia de ± 5 %, debe ser causa de repetición de la prueba.
5.2.5 Carga de prueba
La carga de prueba para enfriadores verticales y horizontales deben ser botellas de PET con capacidad nominal de 600 ml, conteniendo refresco sin pulpa, selladas herméticamente. Las botellas de PET de 600 ml que contengan los sensores de temperatura deben contener 600 ml ± 15 ml de una mezcla de 33% glicol y 67% de agua destilada y el sensor colocado en su centro geométrico.
5.2.6 Carga del aparato
La carga de los diferentes aparatos se debe realizar como se especifica en el Apéndice E.
5.2.7 Colocación de sensores
La colocación de los sensores en el cuarto de pruebas y en los diferentes aparatos se debe realizar como se especifica en el Apéndice E. Antes de iniciar la prueba las puertas del aparato deben ser selladas en la zona de la entrada de los sensores de temperatura.
 
5.2.8 Método de la prueba
Después de haber cargado el aparato se estabiliza la carga de prueba a una temperatura de 32 °C ± 1,5 °C. Se ajusta su control de temperatura a la posición recomendada por el fabricante para que se cumplan las temperaturas de la carga de prueba especificadas en la Tabla 3.
Una vez que las temperaturas medidas se encuentren estabilizadas a la temperatura de arranque (32 °C ± 1,5 °C), se registran 2 h de estabilización antes de conectar a suministro eléctrico el equipo. A partir del encendido del aparato se inicia el conteo del tiempo de abatimiento de temperatura.
Se determina el tiempo de abatimiento de temperatura (Pull Down) cuando el equipo logra abatir la carga de prueba a las temperaturas máxima y promedio que se especifican en la Tabla 3 y de acuerdo a los tiempos establecidos en la Tabla 4.
Nota: Cuando el equipo no logra mantener todos los productos dentro de los límites establecidos, es posible realizar un ajuste del control de temperatura para obtener los valores de temperatura requeridos de la Tabla 3 y proceder a arrancar de nuevo, a condiciones iniciales.
La gráfica siguiente ejemplifica cómo deben mantenerse las temperaturas antes y durante la prueba.

Gráfica de Abatimiento de Temperatura (Pull Down)
5.3 Seguridad al usuario
5.3.1 Condiciones generales para las pruebas
Las pruebas se llevan a cabo de acuerdo con este capítulo.
5.3.1.1 Las pruebas descritas en este proyecto de Norma Oficial Mexicana son pruebas tipo.
5.3.1.2 Tensión de prueba
Para los aparatos que operan a 110 V ± 10 %, 115 V ± 10 % y 127 V ± 10 % la tensión de prueba debe ser 115 V ± 3 V en c.a. a 60 Hz.
Para los aparatos que operan a 220 V ± 10 %; la tensión de prueba debe ser 230 V ± 3 V en c.a. a 60 Hz.
5.3.1.3 Las pruebas se efectúan en un solo aparato, que debe soportar todas las pruebas que apliquen.
Nota 1. Debe evitarse la acumulación de esfuerzos que resulten de las pruebas sucesivas sobre los circuitos electrónicos. Puede ser necesario sustituir componentes o utilizar muestras adicionales. El número de muestras adicionales debe reducirse al mínimo evaluando los circuitos electrónicos correspondientes.
 
Nota 2. Cuando un aparato debe ser desarmado para efectuar una prueba, se debe asegurar que se ha vuelto a reensamblar tal como fue suministrado originalmente. En caso de duda, las pruebas posteriores pueden efectuarse sobre otra muestra.
5.3.1.4 Las pruebas se efectúan en el orden de los capítulos.
5.3.1.5 Las pruebas se efectúan con el aparato o cualquier parte móvil del mismo, situada en la posición más desfavorable que pueda tener lugar en uso normal.
5.3.1.6 Los aparatos provistos de dispositivos de control, de interrupción o conmutación se prueban con dichos dispositivos ajustados en su posición más desfavorable, si el ajuste puede modificarse por el usuario.
Nota 1. Cuando el medio de ajuste del dispositivo de control es accesible sin la ayuda de una herramienta, lo aquí establecido se aplica tanto cuando el ajuste puede modificarse manualmente como con ayuda de una herramienta. Cuando el medio de ajuste no es accesible sin la ayuda de una herramienta y el ajuste no se destina para modificarse por el usuario, este punto no aplica.
Nota 2. Se considera que un adecuado sellado, impide la alteración del ajuste por el usuario.
5.3.1.7 Las pruebas se realizan en un lugar libre de corrientes de aire y a una temperatura ambiente de 20 °C ± 5 °C.
Los aparatos para corriente alterna que no están marcados con la frecuencia nominal o que están marcados con un intervalo de frecuencias nominales de 50 Hz a 60 Hz, se prueban a 60 Hz.
Cuando esta norma así lo requiera en los capítulos correspondientes se reemplaza el término de tensión nominal por tensión de prueba.
5.3.1.8 Los aparatos que tienen más de una tensión nominal se prueban a la tensión más desfavorable en términos de consumo eléctrico.
5.3.1.9 Cuando el fabricante del aparato dispone de elementos calefactores o accesorios alternativos para el aparato, éste se prueba con los elementos o accesorios que dan los resultados más desfavorables en términos de consumo eléctrico.
5.3.1.10 Las pruebas se efectúan sobre el aparato tal como se entrega. Sin embargo, un aparato que se diseña como un todo, pero que se suministra con un número de accesorios adicionales, se prueba después de haberse ensamblado, de acuerdo con las instrucciones provistas con el aparato.
5.3.1.11 Los aparatos deben probarse con el cordón de alimentación que se suministra por el fabricante.
5.3.1.12 Cuando los aparatos de clase I tienen partes metálicas accesibles que no se conectan a tierra y no se separan de las partes vivas por una parte metálica intermedia que se conecta a tierra, se comprueba que dichas partes cumplen con los requisitos adecuados especificados para partes de clase II.
Cuando los aparatos de clase I tienen partes no metálicas accesibles se comprueba que dichas partes cumplen con los requisitos especificados para partes de clase II, salvo que estas partes estén separadas de las partes vivas por una parte metálica intermedia puesta a tierra.
5.3.1.13 Cuando los aparatos tienen partes funcionando a tensión extra baja de seguridad, debe comprobarse que dichas partes cumplan con los requisitos adecuados especificados para partes de clase III.
5.3.1.14 Cuando se prueban circuitos electrónicos, la tensión de alimentación debe estar exenta de perturbaciones provenientes de fuentes exteriores que puedan influir en los resultados de las pruebas.
5.3.1.15 Para los aparatos que incorporen el uso de gas refrigerante inflamable debe considerarse un máximo de carga de 150 g por circuito de refrigeración por separado.
5.3.1.16 Se debe de identificar en color rojo los puntos de unión o sellado de los tubos destinados para realizar el servicio.
5.3.1.17 Los aparatos que utilicen refrigerantes inflamables deben de estar marcados con el símbolo de acuerdo con el Apéndice G, el símbolo debe tener una altura de al menos 15mm, el marcado debe de colocarse visible al usuario, cerca de la etiqueta de marcado, de la unidad condensadora y en el interior del aparato.
5.3.1.18 Para los aparatos que utilicen refrigerantes inflamables, las instrucciones deben de incluir información referente al servicio del aparato.
5.3.1.19 Los aparatos que utilicen refrigerantes inflamables y que utilicen uno o más elementos calefactores para el proceso de deshielo deberán incluir un corta circuito térmico.
 
5.3.2 Protección contra choque eléctrico.
Los aparatos deben construirse y encerrarse de forma que exista una protección suficiente, contra los contactos accidentales con una parte viva. Esto se verifica mediante inspección visual y las pruebas de los incisos 5.3.2.1 a 5.3.2.3, según sea aplicable, y teniendo en cuenta los incisos 5.3.2.4 y 5.3.2.5.
5.3.2.1 El requisito de 5.3.2 aplica a todas las posiciones del aparato cuando esté funcionando como en uso normal y después de retirar las partes desmontables.
Nota. Este requisito excluye el uso de fusibles con rosca y fusibles miniatura tipo tapón con rosca, que son accesibles sin la ayuda de una herramienta.
Las lámparas localizadas detrás de una cubierta desmontable no se retiran, siempre que el aparato pueda aislarse de la alimentación por medio de una clavija o de un interruptor multipolos. Sin embargo, durante la inserción o remoción de lámparas que estén localizadas detrás de una cubierta desmontable, debe quedar asegurada la protección contra el contacto con partes vivas de la cubierta de la lámpara.
El dedo de prueba articulado de la figura 2 (ver Apéndice A), en posición recta, se aplica con una fuerza no mayor de 10 N en todas las partes y superficies del aparato, sin inclinarlo. El dedo se aplica, a través de las aberturas, en toda la profundidad permitida, girando e inclinando antes, durante y después de la inserción a través de la abertura en todas las posiciones. Cuando la abertura impide la entrada del dedo, se aplica en posición recta con una fuerza de 20 N. Cuando la abertura permite la entrada del dedo, se repite la prueba con el dedo en posición angulada.
No debe ser posible tocar, con el dedo de prueba, las partes vivas o las partes vivas protegidas sólo por barniz, esmalte, papel ordinario, algodón, película de óxido, o compuesto de relleno excepto resinas auto-endurecidas.
5.3.2.2 La aguja de prueba mostrada en la figura 3 (ver Apéndice A) se aplica con una fuerza no mayor de 10 N a través de las aberturas en aparatos de clase II, excepto las que dan acceso a cubiertas de lámparas o partes vivas en los receptáculos.
Nota. Las bases hembra de conectores eléctricos no se consideran como receptáculos
Para aparatos clase I, se debe aplicar la aguja de prueba a través de las aberturas en envolventes metálicas sin conexión a tierra que dispongan de un recubrimiento no conductor, tal como barniz o esmalte.
No debe ser posible tocar las partes vivas con la aguja de prueba.
5.3.2.3 En lugar del dedo de prueba y de la aguja de prueba, para los aparatos distintos a los de clase II, se aplica la probeta de prueba mostrada en la figura 4 (ver Apéndice A), con una fuerza no mayor de 10 N a las partes vivas de los elementos calefactores incandescentes visibles, en el que todos los polos pueden desconectarse por una única maniobra de conmutación. Es asimismo aplicada a las partes que soportan tales elementos, siempre que sea evidente desde el exterior del aparato, sin quitar las tapas u elementos similares, que dichas partes están en contacto con el elemento.
No debe ser posible tocar estas partes vivas.
Nota. Para aparatos provistos con un cordón de alimentación y que no llevan un dispositivo de interrupción en su circuito de alimentación, retirar la clavija del receptáculo se considera como una única acción de corte.
Una parte accesible no se considera viva cuando la parte se alimenta con una tensión extra baja de seguridad.
5.3.2.4 Los ejes de las perillas, asas, palancas y partes similares, no deben ser partes vivas a menos que el eje no sea accesible cuando se retira dicha parte.
El cumplimiento se verifica por inspección visual y aplicando el dedo de prueba como se especifica en 5.3.2.1 a 5.3.2.3, después de retirar dicha parte, inclusive con la ayuda de una herramienta.
5.3.2.5 Para partes distintas de las de clase III, las asas, perillas y palancas, que se sostienen o se usan durante el uso normal no deben volverse partes vivas en caso de una falla de aislamiento. Cuando dichas asas, perillas y palancas son metálicas y es probable que sus ejes o fijaciones se vuelvan partes vivas en el caso de una falla del aislamiento, se deben cubrir adecuadamente por medio de un material aislante o sus partes accesibles deben separarse de sus flechas o fijaciones por medio de un aislamiento suplementario.
El cumplimiento se verifica por inspección visual y de ser necesario por las pruebas establecidas en 5.3.2.1 a 5.3.2.3.
5.3.2.6 Los aparatos destinados a conectarse a la alimentación por medio de una clavija, deben construirse de forma que en uso normal no exista riesgo de choque eléctrico debido a los capacitores cargados al tocar las espigas de la clavija.
Nota. Los capacitores con capacidad asignada menor o igual que 0,1 µF no se consideran susceptibles de producir descargas eléctricas.
 
El cumplimiento se verifica por la prueba siguiente:
Se alimenta el aparato a la tensión nominal de prueba. Se ponen en posición de "apagado" todos los interruptores y se desconecta el aparato de la alimentación al momento de la tensión pico. Un segundo después de desconectarlo, se mide la tensión entre las espigas de la clavija con un instrumento que no afecte considerablemente el valor a medir.
La tensión no debe ser superior a 34 V.
5.3.2.7 Los aparatos de clase II y las partes de clase II deben construirse y encerrarse de forma que haya una protección suficiente contra los contactos accidentales con el aislamiento principal y con las partes metálicas separadas de las partes vivas por un aislamiento principal solamente.
Solamente debe ser posible tocar las partes que se separan de las partes vivas por un doble aislamiento o por un aislamiento reforzado.
El cumplimiento se verifica por inspección visual y aplicando el dedo de prueba mostrado en la figura 2, tal como se indica en 5.3.2.1.
Nota 1. Este requisito se aplica para todas las posiciones del aparato cuando funciona como en uso normal, y después de haber retirado las partes desmontables.
Nota 2. Los aparatos empotrables y los aparatos instalados en un lugar fijo se prueban después de su instalación.
5.3.3 Arranque de aparatos operados por motor
Para la aplicación de las pruebas indicadas en los incisos 5.3.3.1, 5.3.3.2 y 5.3.3.3, los motores deben arrancar en todas las condiciones de carga normal que existan durante su uso. Los interruptores de arranque automático o centrífugo deben operar adecuadamente y sin falso contacto.
5.3.3.1 Arranque de motores
El cumplimiento se verifica mediante al arranque del aparato durante 3 veces, a una tensión igual a 0,85 veces la tensión de prueba; el aparato debe estar a la temperatura del cuarto en que se empezó la prueba.
El motor se arranca cada vez bajo las condiciones que ocurren al inicio de la operación normal o, para aparatos automáticos, al inicio del ciclo normal de operación, permitiendo al motor llegar al reposo (velocidad cero) entre arranques sucesivos.
Para aparatos provistos con motores diferentes a los que tienen interruptores de arranque centrífugo, esta prueba se repite a una tensión igual a 1,06 veces la tensión de prueba.
En todos los casos, el aparato debe arrancar sin provocar las condiciones de los incisos 5.3.3.2 y 5.3.3.3.
5.3.3.2 Corriente de arranque
La corriente de arranque no debe provocar la fusión de un elemento fusible de acción rápida, cuando:
-      La corriente nominal o corriente asignada del elemento fusible esté de acuerdo con lo marcado en el aparato.
-      Igual a la corriente nominal o corriente asignada del aparato con un mínimo de 10 A para aparatos que tienen una tensión que excede 130 V y de 15 A para aparatos que tienen una tensión nominal igual o menor a 130 V, si la corriente nominal o corriente asignada del elemento fusible apropiado no está indicada en el aparato.
El cumplimiento se verifica por la prueba siguiente:
El aparato se conecta en serie con un elemento fusible del tipo y capacidad correspondiente.
El aparato debe ser cargado de tal forma, que las condiciones para el arranque sean las más desfavorables encontradas en uso normal.
Los elementos calefactores incorporados en el aparato, son operados pero no son conectados a una fuente de alimentación separada.
El aparato es entonces arrancado durante 10 veces a una tensión de 0,9 veces la tensión de prueba y 10 veces a una tensión igual a 1,1 de la tensión de prueba. El intervalo entre los arranques de operación debe ser lo suficientemente largo para prevenir sobre calentamiento indebido, y no menor a 5 min.
Durante la prueba, el elemento fusible no debe fundirse, ni tampoco debe operar ningún protector de sobrecarga.
 
5.3.3.3 Protectores de sobrecarga
Los protectores de sobrecarga no deben operar durante condiciones normales de arranque.
El cumplimiento se verifica durante la prueba indicada en el inciso 5.3.3.2.
5.3.4 Potencia de entrada y corriente
5.3.4.1 Cuando un aparato se marca con su potencia nominal, la potencia que se requiere a la temperatura normal de funcionamiento no debe diferir de su potencia nominal más de lo indicado en la Tabla 5.
TABLA 5.- Desviaciones permitidas en potencia
Tipo
Potencia nominal de entrada o
potencia asignada en watt
Desviación
Aparato operado por motor
De 0 hasta e incluso 33,3
Más de 33,3 hasta e incluso 150
Más de 150 hasta e incluso 300
Más de 300
± 10 W
± 30 %
± 45 W
± 15 %
El cumplimiento se verifica por medición cuando la potencia se estabiliza bajo las siguientes condiciones:
-      Todos los circuitos que pueden operar simultáneamente están en operación;
-      El aparato se alimenta a tensión nominal;
-      El aparato funciona en condiciones de funcionamiento normal.
La potencia eléctrica de entrada se calcula como el valor promedio durante el ciclo de funcionamiento.
Nota 1. Para aparatos marcados con uno o más intervalos de tensiones nominales, la prueba se efectúa tanto en el límite superior como en el inferior de los intervalos, a menos que el marcado de la potencia nominal se refiera al valor medio del intervalo de tensiones correspondiente, en cuyo caso la prueba se efectúa a una tensión igual al valor medio de dicho intervalo.
Nota 2. Para aparatos marcados con un intervalo de tensiones nominales o intervalo de tensiones asignadas, con límites que difieran en más del 10 % del valor medio del intervalo, las desviaciones permisibles se aplican a ambos límites del intervalo.
5.3.4.2 Cuando un aparato se marca con una corriente nominal o corriente asignada, la corriente a la temperatura normal de funcionamiento no debe diferir de la corriente nominal o corriente asignada más de 10 %.
El cumplimiento se verifica por medición cuando la corriente se estabiliza bajo las condiciones siguientes:
-      Todos los circuitos que pueden operar simultáneamente están en operación;
-      El aparato se alimenta a tensión nominal;
-      El aparato funciona en condiciones de funcionamiento normal.
Cuando la corriente varía durante el ciclo de funcionamiento, la corriente se determina como el valor medio de la corriente que tiene lugar durante un periodo representativo.
Nota 1. Para aparatos marcados con uno o más intervalos de tensiones nominales, la prueba se efectúa tanto en el límite superior como en el inferior de los intervalos, a menos que el marcado de la corriente nominal o corriente asignada se refiera al valor medio del intervalo de tensiones correspondiente, en cuyo caso la prueba se efectúa a una tensión igual al valor medio de dicho intervalo.
Nota 2. Para aparatos marcados con un intervalo de tensiones nominales o intervalo de tensiones asignadas con límites que difieran en más del 10 % del valor medio del intervalo, las desviaciones permisibles se aplican a ambos límites del intervalo.
5.3.5 Calentamiento
5.3.5.1 Los aparatos en su operación normal y su entorno no deben exceder las temperaturas establecidas en la Tabla 6.
El cumplimiento se verifica determinando el incremento de temperatura de las diversas partes en las condiciones especificadas en 5.3.5.2 a 5.3.5.7.
 
5.3.5.2 Los aparatos que normalmente se utilizan sobre el suelo o sobre una mesa, se colocan sobre el suelo lo más cerca posible de las paredes.
Para los enrolladores de cordón distintos de los enrolladores automáticos que están previstos para acomodar parcialmente el cordón de alimentación mientras el aparato está en funcionamiento, se desenrollan 50 cm del cordón. El incremento de temperatura de la parte del cordón no desenrollado se determina en el punto más desfavorable.
5.3.5.3 Los incrementos de temperatura distintos a los que corresponden a los devanados, se determinan por termopares de hilo fino colocados de forma que tengan un efecto mínimo en la temperatura de la parte bajo prueba.
Nota. Los termopares que tengan hilos de un diámetro que no exceda de 0,3 mm, se consideran como termopares de hilo fino.
En la medida de lo posible, colocar el aparato de forma que los termopares detecten las temperaturas más altas.
El incremento de temperatura del aislamiento eléctrico, distinto al de los devanados, se determina sobre la superficie del aislamiento, en los puntos donde una falla puede causar:
-      Un cortocircuito,
-      Establecer un contacto entre partes vivas y partes metálicas accesibles,
-      Puentear el aislamiento;
Nota 1. Cuando es necesario desmontar el aparato para colocar termopares, se debe asegurar que el aparato se ha reensamblado correctamente. En caso de duda, la potencia se mide de nuevo.
Nota 2. El punto de separación de los conductores aislados de un cable multipolar y el punto donde los cables aislados entran en los portalámparas, son ejemplos de puntos donde colocan los termopares.
Los incrementos de temperatura de los devanados se determinan por el método de variación de resistencia, a menos que los devanados no sean uniformes o sea difícil efectuar las conexiones necesarias, en cuyo caso el incremento de temperatura se determina por termopares.
Nota. El incremento de temperatura de un devanado se calcula por la fórmula:

Donde:
T  es el incremento de temperatura del devanado.
R1   es la resistencia al inicio de la prueba.
R2   es la resistencia al final de la prueba.
k     es igual que 234,5 para devanados de cobre y 225 para devanados de aluminio.
T1    es la temperatura ambiente al inicio de la prueba.
T2    es la temperatura ambiente al final de la prueba.
Al inicio de la prueba, los devanados deben estar a temperatura ambiente. Se recomienda que la resistencia de los devanados al final de la prueba se determine tomando mediciones de resistencia tan pronto como sea posible después de desconectar, y posteriormente a intervalos cortos de manera que se pueda graficar una curva de variación resistencia-tiempo para determinar la resistencia en el momento de la desconexión.
5.3.5.4 Los aparatos operados por motor se hacen funcionar en las condiciones de funcionamiento normal, bajo la tensión más desfavorable entre 0,94 y 1,06 veces la tensión nominal de prueba.
5.3.5.5 El aparato se pone en funcionamiento durante un tiempo correspondiente a las condiciones más desfavorables de uso normal.
Nota. La duración de la prueba puede comprender varios ciclos de funcionamiento.
5.3.5.6 Los incrementos de temperatura deben vigilarse continuamente y no deben superar los valores que aparecen en la Tabla 6.
Los dispositivos de protección no deben actuar y el material de relleno no debe salirse.
 
TABLA 6.- Incremento de temperatura permisible
Partes
Incremento de temperatura
(K)
Devanados (1):
 
- Clase A
- Clase E
- Clase B
- Clase F
- Clase H
- Clase 200
- Clase 220
- Clase 250
75 (65)
90 (80)
95 (85)
115
140
160
180
210
Espigas de las bases de los conectores:
 
- para condiciones muy calientes
- para condiciones calientes
- para condiciones frías
130
95
40
Terminales, incluyendo terminales de puesta a tierra, para los conductores de aparatos estacionarios, a menos que sean suministrados con un cable de alimentación de energía
60
Ambiente de interruptores, termostatos y limitadores de temperatura (2):
 
- sin marcado T
- con marcado T
30
T -25
Aislamiento de hule o cloruro de polivinilo de alambrados internos y externos, incluyendo cables de alimentación:
con marcado T
 
T - 25
Para cubiertas de cables usadas como aislamiento suplementario
35
 
Contactos corredizos de carretes de cables
65
Hule u otros distintos a los sintéticos utilizados en empaques u otras partes, cuyo deterioro podría afectar la seguridad:
 
- cuando se usa como aislamiento suplementario o como aislamiento reforzado
- en otros casos
40
50
Portalámparas E 26 y E 27
 
- tipo metálico o cerámico
- tipo aislado, distinto del cerámico
- con marcado T
160
120
T - 25
Portalámparas E 14, B 15 y B 22:
 
- tipo metálico o cerámico
- tipo aislado, distinto del cerámico
- con marcado T
130
90
T - 25
Envolventes externas de aparatos operados por motor, excepto jaladeras sostenidas con la mano en uso normal
60
Partes en contacto con aceite que tiene un punto de ignición de t ° C
T - 50
 
 
Cualquier punto donde el aislamiento de los conductores pueda entrar en contacto con partes de una caja de terminales o compartimento utilizado para la conexión de un aparato estacionario no provisto con cables de alimentación:
 
- cuando la hoja de instrucciones requiere el uso de cables de alimentación con marcado T
T - 25
Material utilizado como aislamiento distinto del especificado para los conductores y devanados:
 
- tejido impregnado o barnizado, papel o cartón prensado
- laminados aglomerados con:
70
* resinas melaminas-formaldehídos o fenol disolvente
* resinas de urea-formaldehído
85 (175)
65 (150)
- tablillas de circuito impreso impregnadas con resina epóxica
- materiales moldeados de:
120
* fenol-formaldehído con carga celulósica
* fenol-formaldehído con carga mineral
* melamina-formaldehído
* urea-formaldehído
85 (175)
100 (200)
75 (160)
65 (150)
- poliéster con refuerzo de fibra de vidrio
- hule silicón
- politetrafluoroetileno
- mica pura y material cerámico fuertemente sintetizado, cuando dichos materiales son utilizados como aislamiento reforzado o aislamiento suplementario
110
145
265
400
Jaladeras, manecillas, asas y partes similares las cuales son continuamente empuñadas en uso normal (por ejemplo, soldadoras):
 
- de metal
- de porcelana o material vitrificado
- de material moldeado, hule o madera
30
40
50
Jaladeras, manecillas, asas y partes similares las cuales en uso normal son empuñadas solamente durante cortos periodos de tiempo (por ejemplo de interruptores):
 
- de metal
- de porcelana o material vitrificado
- de material moldeado, hule o madera
35
45
60
 
Nota 1. Para permitir el hecho de que la temperatura de los devanados de los motores universales, esté habitualmente por abajo de la temperatura en los puntos donde se colocan los termopares, los números sin paréntesis se aplican cuando se utiliza el método de resistencia y aquellos entre paréntesis se aplican cuando se utilizan termopares. Para los devanados de las bobinas y motores de corriente alterna, los números entre paréntesis aplican en ambos casos.
Para motores construidos de tal forma que se impide la circulación de aire entre el interior y el exterior de la carcasa, pero no lo suficientemente cerrados para ser considerados herméticos los límites de incremento de temperatura pueden ser aumentados en 5 K.
Esta prueba no aplica a relevadores, solenoides y aquellos dispositivos con devanado de operación momentáneo.
Nota 2. T significa la máxima temperatura ambiente a la cual el componente o su palanca de interrupción
puede operar.
El ambiente es la temperatura del aire en el punto más caliente a una distancia de 5 mm de la superficie del componente en cuestión.
Para efectos de esta prueba, los interruptores y termostatos marcados con características nominales individuales pueden ser considerados exentos de indicaciones para la temperatura de funcionamiento máxima, si así es requerido por el fabricante del aparato.
Nota 3. El valor indicado entre paréntesis se aplica si el material es usado para mangos, jaladeras, manecillas, asas, perillas, sujetadores y similares que están en contacto con metal caliente.
Los valores de la Tabla 6 están basados en una temperatura ambiente sin que exceda de 25 °C, pero ocasionalmente alcanza 35 °C.
Sin embargo, los valores específicos de los incrementos de temperatura están basados sobre 25 °C.
5.3.6 Corriente de fuga a la temperatura de operación
5.3.6.1 A la temperatura de funcionamiento, la corriente de fuga de los aparatos no debe exceder los límites establecidos en la Tabla 7.
El cumplimiento se verifica con la prueba indicada en 5.3.6.2.
El aparato se pone en funcionamiento en las condiciones de funcionamiento normal, durante el tiempo especificado en 5.3.5.5.
Los aparatos accionados por motor se alimentan a 1,06 veces la tensión de prueba.
Los aparatos trifásicos que también pueden conectarse a una alimentación monofásica, se prueban como aparatos monofásicos, con los tres circuitos conectados en paralelo.
5.3.6.2 La corriente de fuga se mide por medio del circuito descrito en el Apéndice F, entre un polo cualquiera de la alimentación y las partes metálicas accesibles conectadas a una hoja metálica con una superficie que no sobrepase los 20 cm x 10 cm la cual esté en contacto con las superficies accesibles de materiales aislante.
Nota. El vóltmetro mostrado en el Apéndice debe ser capaz de medir el valor eficaz (rcm) de la tensión.
Para los aparatos monofásicos, el circuito de medición se representa en las figuras siguientes:
-      Aparatos de clase II, figura 5 (ver Apéndice A);
-      Aparatos distintos de clase II, figura 6 (ver Apéndice A).
La corriente de fuga se mide con el conmutador en cada una de las posiciones a y b.
Para los aparatos trifásicos, el circuito de medición se representa en las figuras siguientes:
-      Aparatos de clase II, figura 7 (ver Apéndice A);
-      Aparatos distintos de clase II, figura 8 (ver Apéndice A).
Para los aparatos trifásicos, la corriente de fuga se mide con los interruptores a, b y c en posición de cerrado. Las mediciones entonces se repiten, estando abiertos cada uno de los interruptores a, b y c por turno y cerrados los otros dos. Para los aparatos destinados a conectarse sólo en conexión estrella, el conductor neutro no se conecta.
Después que el aparato funciona durante un tiempo tal como se especifica en 5.3.5.5, la corriente de fuga no debe sobrepasar los valores siguientes:
TABLA 7.- Valores límite para corriente de fuga
-
Para los aparatos de clase II
0,25 mA
-
Para los aparatos de clase III
0,75 mA
-
Para los aparatos estacionarios operados por motor de clase I
1,50 mA
 
Cuando el aparato incorpora capacitores y se provee de un interruptor unipolar, las mediciones se repiten, con el interruptor en posición "apagado".
Cuando el aparato incorpora un dispositivo de control térmico que funciona durante la prueba del capítulo 5.3.5, la corriente de fuga se mide inmediatamente antes de que el dispositivo de control abra el circuito.
 
Nota 1. La prueba con el interruptor en la posición de "apagado" se realiza para verificar que los capacitores conectados a un interruptor unipolar no dan lugar a una corriente de fuga excesiva.
Nota 2. Se recomienda alimentar al aparato por medio de un transformador de aislamiento; de otra forma el aparato debe aislarse de tierra.
Nota 3. La hoja metálica debe cubrir la mayor área posible de la superficie bajo prueba, sin exceder las dimensiones especificadas. Si su superficie es menor que la superficie bajo prueba, la hoja metálica debe desplazarse de tal forma que todas las partes de la superficie se prueben.
La disipación del calor del aparato no debe verse afectada por la hoja metálica.
5.3.7 Resistencia a la humedad
Los aparatos deben resistir las condiciones de humedad susceptibles de producirse en uso normal.
El cumplimiento se verifica de acuerdo por la prueba siguiente.
Los aparatos se mantienen durante 24 h en condiciones ambientales normales.
Las entradas de conductores, si existen, se dejan abiertas. Si están previstas de entradas con tapones desmontables, una de ellas se abre. Las partes desmontables se retiran y se someten, si es necesario, al tratamiento de humedad con la parte principal del aparato.
La muestra en prueba se debe estabilizar por lo menos 4 h a la temperatura de la cámara de humedad de 30 ºC ± 2 ºC, antes de realizar el tratamiento de humedad.
La prueba de humedad se realiza durante 48 h en una cámara de humedad que contiene aire a una humedad relativa de 93 % ± 3 % y a la temperatura de 30 ºC ± 2 ºC.
Nota 1. Puede obtenerse una humedad relativa de 93 % ± 3 % colocando en la cámara de humedad, una solución saturada de Na2 SO4 o de KNO3 en agua, teniendo el recipiente una superficie de contacto con el aire suficientemente grande.
Nota 2. Las condiciones especificadas pueden obtenerse asegurando una circulación constante del aire en el interior de una cámara aislada térmicamente.
El aparato debe cumplir las pruebas del capítulo 5.3.6 (corriente de fuga, rigidez dieléctrica y resistencia de aislamiento) en la cámara de humedad, o en el cuarto donde se lleva al aparato a la temperatura prescrita después de ensamblar las partes que puedan retirarse.
5.3.8 Corriente de fuga, Rigidez dieléctrica y Resistencia de aislamiento.
Las condiciones de prueba deben ser las mencionadas en el inciso 5.3.1.7.
5.3.8.1 La corriente de fuga del aparato no debe exceder los límites establecidos en la Tabla 7 y la rigidez dieléctrica debe de cumplir con lo especificado en el inciso 5.3.8.4.
El cumplimiento se verifica por medio de las pruebas indicadas en los incisos 5.3.8.2 y 5.3.8.3.
Para aquellos aparatos que incluyan circuitos electrónicos, éstos se desconectan de las terminales de tierra antes de efectuar las pruebas.
Las pruebas se efectúan sobre el aparato a la temperatura ambiente del cuarto de prueba y sin conectarlo a la alimentación.
5.3.8.2 Una tensión de prueba de corriente alterna se aplica entre partes vivas y partes metálicas accesibles que son conectadas a una hoja metálica con unas dimensiones que no sobrepasan 20 cm x 10 cm en contacto con superficies accesibles de materiales aislantes.
La tensión de prueba es:
-      1,06 veces la tensión nominal para aparatos monofásicos,
-      1,06 veces la tensión nominal, dividida por, para los aparatos trifásicos.
La corriente de fuga se mide en los 5 s posteriores a la aplicación de la tensión de prueba.
La corriente de fuga no debe sobrepasar los valores indicados en el inciso 5.3.6.2.
Se deben colocar todos los interruptores en posición de encendido.
5.3.8.3 Rigidez dieléctrica
Inmediatamente después de la prueba indicada en el inciso 5.3.8.2, el aislamiento se somete, durante 1 min a una tensión sinusoidal, de frecuencia de 60 Hz. Los valores de la tensión de prueba para los distintos tipos de aislamiento se indican en la siguiente tabla.
 
TABLA 8.- Tensión de prueba
Puntos de aplicación de la tensión de prueba
Tensión de prueba (V)
Aparatos
Clase III
Aparatos
Clase II
Aparatos
Clase I
1. Entre partes vivas y partes del cuerpo que están separadas de las partes vivas por:
 
 
 
- Solamente aislamiento principal
- Aislamiento reforzado
500
------
-----
3 750
1 250
3 750
2. Para partes con doble aislamiento, entre partes metálicas separadas de partes vivas por un aislamiento principal solamente y
 
 
 
- Partes vivas
- El cuerpo
-----
-----
1 250
2 500
1 250
2 500
3. Entre laminillas metálicas en contacto con mangos, perillas, sujetadores y similares y sus ejes, si éstos pueden llegar a las partes vivas en el caso de una falla del aislamiento
-----
2 500
2 500
4. Se aplica una tensión de prueba entre partes metálicas accesibles y el cordón de alimentación que se recubre de una hoja metálica donde se encuentra un buje para la entrada del cordón, una protección del cordón o un método de anclaje para el cordón
-----
2 500
1 250
Nota 1. Se debe asegurar de que la hoja metálica con unas dimensiones que no sobrepasan 20 cm x 10 cm se coloque de forma que no ocurran descargas disruptivas en las orillas del aislamiento.
Nota 2. La hoja de metal debe ser presionada contra el aislamiento por medio de un costal de arena, tal que proporcione una presión de aproximadamente 5 kPa.
Las partes accesibles de material aislante se recubren con una hoja metálica.
Inicialmente, se aplica no más de la mitad de la tensión especificada, siendo entonces aumentada gradualmente hasta el valor total.
En el curso de la prueba no debe ocurrir rompimiento del aislamiento.
5.3.8.4 Resistencia de aislamiento.
La resistencia de aislamiento no debe ser menor que el valor mostrado en la siguiente tabla:
TABLA 9.- Resistencia de aislamiento
Aislamiento para ser probado
Resistencia de aislamiento (MÙ)
Entre partes vivas y el cuerpo
 
- Para aislamiento principal
- Para aislamiento reforzado
2
7
Entre partes vivas y partes metálicas de aparatos clase II que están separados de las partes vivas por aislamiento principal solamente
2
Entre partes metálicas de aparatos clase II que están separados de las partes vivas por un aislamiento principal y el cuerpo
5
 
La resistencia de aislamiento se mide con una tensión de corriente directa, aplicándose 500 V; la medición se hace un minuto después de haberse aplicado la tensión.
5.3.9 Condiciones anormales de operación
5.3.9.1 Para efectos de este inciso, una prueba a rotor bloqueado se efectúa trabando las partes móviles si el aparato:
-      tiene partes móviles susceptibles de ser trabadas;
-      tiene motores con par a rotor bloqueado menor que el par a plena carga;
-      tiene capacitores.
 
Cuando un aparato tiene más de un motor, la prueba se hace a cada motor por separado.
Al final del periodo especificado de prueba o en el instante de operación de fusibles, desconectadores térmicos, dispositivos de protección del motor y dispositivos similares, la temperatura de los devanados no debe exceder los valores mostrados en la Tabla 10.
TABLA 10.- Límites de temperatura
Tipo de aparato
Límites de temperatura en °C
Clase
A
Clase
E
Clase
B
Clase
F
Clase
H
Clase
200
Clase
220
Clase
250
Aparatos provistos con un control de tiempo y motores que incluyan capacitor.
200
215
225
240
260
280
300
330
Otros aparatos:
Si están protegidos por impedancia
150
165
175
190
210
230
250
280
Si están protegidos por dispositivos de protección los cuales operan durante la primera hora, valor máximo
200
215
225
240
260
280
300
330
Si los dispositivos de protección operan después de la primera hora, valor máximo
175
190
200
215
235
255
275
305
 
5.3.9.2 Límites de temperatura en aparatos operados por motor
Los aparatos que incorporan motores que tengan capacitores en el circuito de un devanado auxiliar se operan con el rotor bloqueado, con los capacitores en cortocircuito o en circuito abierto, uno a la vez, cualquiera que sea lo más desfavorable.
Esta prueba se hace con el rotor bloqueado porque ciertos motores con capacitores pueden o no arrancar, por lo que se podrían obtener resultados variables.
Para cada una de las pruebas, el aparato, arrancado en frío, se opera a la tensión nominal o al límite superior del intervalo de tensiones nominales o intervalo de tensiones asignadas, durante un periodo de 30 s.
5.3.10 Estabilidad y riesgos mecánicos.
5.3.10.1 Los aparatos destinados a utilizarse sobre una superficie tal como el piso o una mesa, deben tener una estabilidad adecuada.
El cumplimiento se verifica por medio de la siguiente prueba, adaptando a los aparatos provistos de un receptáculo con el conector adecuado y su cordón flexible.
Colocar el aparato en cualquier posición normal de uso sobre un plano inclinado a un ángulo de con respecto al plano horizontal, descansando el cordón de alimentación sobre el plano inclinado en la posición más desfavorable. No obstante, si el aparato es tal que en caso de que estuviera inclinado en un ángulo de al descansar sobre un plano horizontal, una parte del mismo que no está en contacto normalmente con la superficie de apoyo puede tocar el plano horizontal, el aparato se coloca en un soporte horizontal y se inclina en la dirección más desfavorable en un ángulo de 5°.
Nota 1. El aparato no se conecta a la alimentación.
Nota 2. La prueba en el soporte horizontal puede ser necesaria para los aparatos provistos de rodillos, ruedas o patas.
Nota 3. Los rodillos y las ruedas se bloquean para evitar que el aparato se deslice.
Los aparatos provistos de puertas se prueban con las puertas abiertas o cerradas, eligiendo la condición más desfavorable.
El aparato no debe volcarse.
5.3.10.2 Riesgos mecánicos
Las partes en movimiento de aparatos operados por motor deben, en la medida que sea compatible con su uso y funcionamiento, estar arregladas o encerradas de tal manera que proporcionen, en uso normal, una protección adecuada de las personas contra los accidentes.
Las cubiertas de protección, guardas y otros dispositivos de seguridad similares, deben tener una resistencia mecánica adecuada que evite que estos dispositivos puedan ser retirados manualmente sin la ayuda de una herramienta, a menos que por necesidades de uso normales éstas tengan que retirarse.
 
Los desconectadores térmicos de restablecimiento automático y relevadores de sobrecorriente no deben ser incorporados, si su cierre inesperado causa daño.
El cumplimiento se verifica por inspección y por una prueba con un dedo de prueba rígido sin fuerza apreciable, se muestra en la figura 2 (Apéndice A), pero que tenga una placa tope con un diámetro de 50 mm, en vez de la placa no circular prescrita.
No debe ser posible tocar partes en movimiento.
5.3.11 Construcción
5.3.11.1 Para los aparatos con compartimentos a los cuales se tiene acceso sin ayuda de una herramienta y que son susceptibles de limpiarse en uso normal, las conexiones eléctricas deben estar dispuestas de forma tal que no puedan someterse a tracciones durante su limpieza.
El cumplimiento se verifica por inspección visual y por prueba manual.
5.3.11.2 Los aparatos deben construirse de forma tal que partes como el aislamiento, el cableado interno, devanados, escobillas, anillos deslizantes y elementos similares, no estén expuestos al aceite, grasa o sustancias similares, a menos que la sustancia tenga propiedades aislantes adecuadas de manera que no se comprometa el cumplimiento con esta norma.
El cumplimiento se verifica por inspección visual.
5.3.11.3 Cuando se activa un dispositivo de control térmico sin restablecimiento automático no debe ser posible que éste restablezca la tensión a través de un interruptor integrado al aparato.
Nota 1. Los controladores de la tensión-mantenida automáticamente se restablecen si éstos se vuelven desenergizados.
Los botones de restablecimiento de los dispositivos de control sin restablecimiento automático deben localizarse o protegerse de tal forma que su restablecimiento accidental sea improbable. De ocurrir si esto puede constituir un peligro.
Nota 2. Por ejemplo, este requisito impide la colocación de botones de restablecimiento detrás del aparato, lo cual puede causar que éstos restablezcan la operación al recargar el aparato contra la pared
El cumplimiento se verifica por inspección visual.
5.3.11.4 Las asas, perillas, agarraderas, palancas y partes similares deben fijarse de forma tal que no se aflojen en uso normal cuando dicho aflojamiento pueda constituir un riesgo. Cuando estas partes se utilizan para indicar la posición de interruptores y conmutadores o componentes similares, no debe ser posible fijarlas en posición errónea si esto puede constituir un riesgo.
El cumplimiento se verifica por inspección visual, prueba manual y tratando de remover la parte por la aplicación de una fuerza axial como sigue:
-      15 N, cuando no es probable la aplicación de una fuerza axial en uso normal;
-      30 N, cuando es probable la aplicación de una fuerza axial.
Se aplica la fuerza durante 1 min.
Nota. Los materiales de sellado o similares, distintos de las resinas de autoendurecimiento, no se consideran adecuados para impedir el aflojamiento.
5.3.11.5 Los aparatos no deben tener bordes cortantes o afilados salvo los que sean necesarios para el funcionamiento del aparato, que puedan crear un peligro para el usuario en su uso normal o durante el mantenimiento a realizar por el usuario.
Las terminaciones en punta o tornillos autorroscantes u otros dispositivos de cierre deben colocarse de manera que sea improbable que sean tocados por el usuario durante el uso normal o durante el mantenimiento a realizar por el usuario.
El cumplimiento se verifica por inspección visual.
5.3.11.6 Los ganchos y dispositivos similares de almacenamiento para los cordones flexibles deben ser lisos y bien redondeados
El cumplimiento se verifica por inspección visual.
5.3.11.7 A menos que no se especifique en el instructivo de operación del aparato, una distancia mínima de separación con respecto a las paredes, los espaciadores que se destinan a impedir que el aparato se sobrecaliente por las paredes deben fijarse de forma tal que no sea posible desmontarlos desde el exterior del aparato a mano sin la ayuda de una herramienta.
 
El cumplimiento se verifica por inspección visual y por prueba manual.
5.3.11.8 Las partes conductoras de corriente y otras partes metálicas, cuya corrosión puede constituir un riesgo, deben ser resistentes a la corrosión en condiciones normales de uso.
Nota. El acero inoxidable y las aleaciones similares resistentes a la corrosión, así como el acero con recubrimiento metálico protector, se consideran satisfactorios para los efectos de este requisito.
El cumplimiento se verifica comprobando que después de las pruebas de 5.3.7, las partes correspondientes no muestran señales de corrosión.
5.3.11.9 Se debe evitar eficazmente el contacto directo entre partes vivas desnudas y el aislamiento térmico, a menos que dicho material no sea ni corrosivo, ni higroscópico, ni combustible.
Nota. La lana o fibra de vidrio es un ejemplo de aislamiento térmico que es satisfactorio para los efectos de este requisito. La lana de escorias no impregnada es un ejemplo de aislamiento térmico corrosivo.
El cumplimiento se verifica por inspección visual.
5.3.11.10 Los materiales tales como madera, algodón, seda, papel común y fibras similares e higroscópicos similares no deben utilizarse como aislamiento, a menos que estén impregnados.
Nota 1. Se considera que el material aislante está impregnado cuando los intersticios entre la fibra del material están prácticamente llenos de un aislamiento adecuado.
Nota 2. La fibra de cerámica mineral y óxido de magnesio que se utiliza para el aislamiento eléctrico de los elementos de calentamiento no se consideran como materiales higroscópicos.
El cumplimiento se verifica por inspección visual.
5.3.11.11 Los aparatos no deben contener asbestos.
El cumplimiento se verifica por inspección visual.
5.3.11.12 Los líquidos conductivos que son o pueden llegar a ser accesibles en uso normal, no deben estar en contacto directo con las partes vivas.
El cumplimiento se verifica por inspección visual.
5.3.11.13 Los capacitores no deben conectarse entre los contactos de un protector térmico.
El cumplimiento se verifica por inspección visual.
5.3.11.14 Los portalámparas deben utilizarse únicamente para la conexión de lámparas.
El cumplimiento se verifica por inspección visual.
5.3.11.15 Los aparatos que pueden regularse para diferentes tensiones deben construirse de forma que no sea probable que se produzca un cambio accidental de la regulación.
El cumplimiento se verifica por la prueba manual.
5.3.11.16 Los pasos previstos para los cables deben ser suaves y no deben tener aristas cortantes.
Los cables deben protegerse de forma que no entren en contacto con rebabas, aletas de enfriamiento o bordes similares, susceptibles de dañar el aislamiento.
Los orificios en partes metálicas a través de los cuales pasan cables aislados deben tener superficies suaves y bien redondeadas o estar provistos de bujes.
Debe evitarse eficazmente que los cables entren en contacto con las partes movibles.
El cumplimiento se verifica por inspección visual.
5.3.11.17 Los aparatos deben ser construidos de tal forma que funcionen en todas las posiciones que se esperan en uso normal, lo cual se verifica haciendo funcionar el aparato con una inclinación de cinco grados.
5.3.11.18 Los aparatos deberán tener una resistencia mecánica y estar construidos para resistir el manejo que se puede esperar en uso normal.
Cuando el aparato incluya en su construcción paneles de vidrio exteriores accesibles, estos deberán ser lo suficientemente resistentes contra golpes que puedan generarse de manera accidental, el cumplimiento se verifica mediante la prueba siguiente:
El panel de vidrio debe probarse en el aparato terminado de acuerdo con su diseño y operación normal, marcar el centro geométrico del panel de vidrio exterior accesible, y aplicar tres impactos con el Martillo de Resorte generando una energía de impacto de 1 J ± 0,05 J, de forma continua, sosteniéndolo manualmente en posición perpendicular a la superficie a ser evaluada.
 
Al final de la prueba, se comprueba mediante inspección visual que no existan daños en la superficie tales como rompimiento, fisuras o cuarteaduras.
6. Muestreo
Estará sujeto a lo dispuesto en el Capítulo 10 del presente proyecto de Norma Oficial Mexicana.
7. Criterios de aceptación
7.1 Eficiencia energética
En consideración a la dispersión de resultados que se presentan en pruebas iguales efectuadas en un mismo aparato o en pruebas iguales efectuadas en diferentes aparatos del mismo modelo y/o a la exactitud de los instrumentos de medición, se debe aceptar una variación de + 5 % del consumo de energía marcado en la etiqueta, sin exceder el establecido en la Tabla 1 del Capítulo 4.
7.2 Abatimiento de temperatura (Pull-Down)
En ningún caso, los aparatos probados pueden rebasar el valor indicado en el inciso 5.2.
7.3 Seguridad al usuario
Los aparatos objeto de este proyecto de Norma Oficial Mexicana deben cumplir con las pruebas del inciso 5.3 en su totalidad, en caso contrario, los aparatos no se pueden comercializar en los Estados Unidos Mexicanos.
8. Etiquetado y marcado
8.1 Etiquetado
Los aparatos objeto de este proyecto de Norma Oficial Mexicana que se comercialicen en los Estados Unidos Mexicanos deben llevar una etiqueta que proporcione información relacionada con su consumo de energía y la indicación de que el aparato cumple con los requisitos de seguridad al usuario.
8.1.1 Permanencia
La etiqueta debe ir adherida o sujeta por medio de un cordón al aparato, en este último caso la etiqueta debe tener la rigidez suficiente para que no se flexione por su propio peso. En cualquiera de los casos no debe removerse del aparato hasta después de que éste haya sido adquirido por el usuario final.
8.1.2 Ubicación
La etiqueta debe estar ubicada en la superficie de exhibición del producto, visible al consumidor.
8.1.3 Información
La etiqueta debe contener información que se lista a continuación, impresa en forma legible e indeleble:
8.1.3.1 El nombre de la etiqueta: "EFICIENCIA ENERGÉTICA".
8.1.3.2 La leyenda "Consumo de energía determinado como se establece en la NOM-022-ENER/SCFI-2020".
8.1.3.3 La leyenda "Marca(s)" seguida de la marca del aparato o el logotipo de la marca.
8.1.3.4 La leyenda "Modelo(s)" seguida del modelo del aparato.
8.1.3.5 La leyenda "Tipo" seguida del tipo del aparato, conforme a las Tabla 1 del Capítulo 4.
8.1.3.6 La leyenda "Capacidad" seguida de la capacidad refrigerada útil en litros del aparato hasta un decimal aplicando la regla de truncamiento, conforme a la Tabla 1 del Capítulo 4.
8.1.3.7 La leyenda "Consumo establecido en la norma en (Wh/L) en 24 h" seguida del valor de consumo hasta un decimal aplicando la regla de redondeo progresivo, de acuerdo a su tipo y capacidad, conforme a la Tabla 1 del Capítulo 4.
8.1.3.8 La leyenda "Consumo del aparato en (Wh/L) en 24 h" seguida del valor de consumo del aparato hasta un decimal aplicando la regla de redondeo progresivo. El valor de consumo del aparato debe ser definido por el fabricante.
8.1.3.9 La leyenda "AHORRO DE ENERGÍA" de manera horizontal centrada.
8.1.3.10 Una barra horizontal de tonos crecientes, del blanco hasta el negro, indicando el por ciento de ahorro de energía de 0 % al 50 %.
Debajo de la barra, en 0 % debe colocarse la leyenda "Menor Ahorro" y debajo de la barra en 50 % debe colocarse la leyenda "Mayor Ahorro".
Nota En caso de que el equipo pase de 50 % en el ahorro, se usará el valor reportado como valor de la etiqueta.
 
8.1.3.11 Se debe colocar una flecha sobre la barra horizontal que indique el porcentaje de ahorro de energía que tiene el producto hasta un decimal aplicando la regla de truncamiento, obtenido con el siguiente cálculo:

8.1.3.12 La leyenda "El ahorro de energía efectivo dependerá de los hábitos de uso y localización del aparato".
8.1.3.13 La leyenda "IMPORTANTE" y debajo de ésta, las leyendas "este aparato cumple con los requisitos de seguridad al usuario" y "La etiqueta no debe retirarse del aparato hasta que haya sido adquirido por el consumidor final".
8.1.4 Dimensiones
Las dimensiones de la etiqueta son las siguientes:
Alto 14 cm ± 1 cm
Ancho 10 cm ± 1 cm
Nota. Deben medirse en el contorno de la etiqueta
8.1.5 Distribución de la información y colores
8.1.5.1 La información debe distribuirse como se muestra en el ejemplo de etiqueta que contiene la figura 1.
8.1.5.2 Toda la información descrita en el inciso 8.1.3, así como las líneas y contorno debe ser de color negro.
El contorno de la etiqueta debe ser con una línea más gruesa que el resto de las líneas que aparecen en ésta.
El fondo de la etiqueta debe ser de color amarillo.
FIGURA 1.- Ejemplo de etiqueta para aparatos de refrigeración comercial autocontenidos
 

8.2 Marcado
8.2.1 Los aparatos de refrigeración comercial autocontenidos que se fabriquen, importen y comercialicen en los Estados Unidos Mexicanos, deben llevar marcado en forma permanente el tipo y cantidad de refrigerante y agente espumante con que fueron fabricados.
8.2.2 Los aparatos deben ser marcados con:
-      Tensión(es) nominal(es) o intervalo de tensiones nominales o intervalo de tensiones asignadas en volt.
-      Simbología para la naturaleza de la alimentación, a menos que esté marcada la frecuencia nominal.
-      Frecuencia nominal o intervalo nominal de frecuencia en hertz.
-      Potencia nominal en watt o corriente nominal o corriente asignada en amper.
-      Nombre del fabricante o del vendedor responsable, marca registrada o marca de identificación.
-      Modelo del fabricante o identificación del tipo de producto.
-      Símbolo para la clase II; solamente aplicable para aparatos clase II.
-      Los aparatos estacionarios para alimentación múltiple deben marcarse con la advertencia siguiente:
"Antes de tener acceso a los dispositivos terminales, todos los circuitos de alimentación deben ser interrumpidos".
Esta advertencia debe ser visible antes de alcanzar cualquier parte viva que puede ser tocada durante un servicio de rutina.
Los aparatos para conectarse en estrella-delta (Y-) deben ser claramente marcados con las dos tensiones nominales.
La potencia o la corriente nominal o corriente asignada que debe ser marcada sobre el aparato, es la potencia o corriente total máxima que puede presentarse en el circuito al mismo tiempo.
Si un aparato tiene componentes alternativos que puedan seleccionarse con un dispositivo de control, la potencia nominal es aquella que corresponda a la carga más alta posible.
Se permiten marcas adicionales siempre y cuando no provoquen confusión.
 
Si el motor de un aparato está marcado por separado, el marcado del aparato y del motor deben ser tales que no haya duda con respecto a las características nominales y a la identidad del fabricante del aparato.
Para aparatos marcados con más de una tensión nominal o intervalo de tensiones nominales o intervalo de tensiones asignadas, debe marcarse la potencia nominal para cada una de estas tensiones o intervalos.
Los límites superior e inferior de la potencia nominal deben ser marcados en el aparato, de tal forma que la correspondencia entre la potencia y la tensión se distingan claramente, a menos que la diferencia entre los límites de un intervalo nominal de tensiones no exceda el 10 % del valor medio de ese intervalo, en cuyo caso el marcado para potencia nominal puede referirse al valor medio de ese intervalo.
8.2.3 Cuando se usen símbolos de unidades de medida deben corresponder a los establecidos en la NOM-008-SCFI-2002 (véase 2, Referencias), por ejemplo los siguientes:
V                 volt
A                 ampere
Hz               hertz
W                watt
F                 farad
L o l             litro
g                 gramo
N/cm2           newton por cm2
bar              bar
Pa               pascal
h                 hora
min              minuto
s                 segundo
8.2.4 Los aparatos que deben ser conectados a más de dos conductores de alimentación, y los aparatos para alimentación múltiple, deben estar provistos con un diagrama de conexiones fijado al aparato, a menos que sea evidente el modo correcto de las conexiones.
La forma de conexión se considera que es evidente, si para aparatos trifásicos, las terminales para los conductores de alimentación están designados por flechas apuntando hacia las terminales, el conductor para tierra no es un conductor de alimentación. En aparatos para conexión en estrella-delta (Y-) el diagrama de alambrado debe mostrar cómo deben conectarse los devanados.
El marcado en palabras es un medio aceptable para indicar la forma correcta de las conexiones.
8.2.5 Las diferentes posiciones de interruptores de aparatos estacionarios y las diferentes posiciones de dispositivos de regulación, deben indicarse con números, letras u otros medios visuales.
Si se usan números para indicar las diferentes posiciones, la posición de abierto debe indicarse por el número cero y la posición correspondiente para una carga, potencia, una velocidad, un efecto de enfriamiento, etc., más elevados debe designarse por un número mayor.
El número cero no debe usarse para cualquier otra indicación a menos que sea colocado y asociado con otros números. Por ejemplo, puede ser usado en una tecla para programación digital.
8.2.6 Los termostatos, dispositivos de regulación y dispositivos similares destinados para ser ajustados durante la instalación o en uso normal, deben estar provistos con una indicación de dirección de ajuste para incrementar o disminuir el valor de la característica que está siendo ajustada.
Una indicación de + y - se considera suficiente.
8.2.7 Si es necesario tomar precauciones especiales cuando se instale o use el aparato, los detalles de éstas deben estar dadas en una hoja de instrucciones que acompañen al aparato. Si un aparato estacionario no está provisto con un cable no desmontable y una clavija, o con otros medios para la desconexión de la alimentación, teniendo una separación de contactos de por lo menos 3 mm en todos los polos, la hoja de instrucciones debe establecer que tales medios para desconexión deben ser incorporados para la instalación.
Si los conductores de alimentación de un aparato pueden llegar a tener contacto con una tablilla de terminales o un compartimiento para el alambrado fijo, y estas partes tienen bajo condiciones de uso normal, una temperatura tal que el aislamiento del conductor se someta a una incremento de temperatura mayor a la
especificada en el inciso 5.3.5.6 (incremento de temperatura permisible), la hoja de instrucciones debe también establecer que el aparato debe conectarse con conductores que tengan una temperatura apropiada.
Para aparatos cuyos sujetacables tienen método de unión mediante el cual el cable flexible no puede ser reemplazado sin romper o destruir el aparato, la hoja de instrucciones debe contener una indicación que proporcione la información siguiente:
"El cable de alimentación de este aparato no debe ser reemplazado; si el cable o cordón es dañado el aparato debe ser desechado".
8.2.8 Las hojas de instrucciones y otros textos requeridos por esta norma, deben estar escritos en español.
Cuando se usen símbolos, deben ser los indicados por esta norma.
El cumplimiento con lo indicado en los incisos del 8.2.2 al 8.2.9 se verifica por inspección.
8.2.9 El marcado debe ser durable y fácilmente legible.
El marcado especificado en los incisos del 8.2.2 al 8.2.4 debe estar sobre una parte principal del aparato.
El marcado sobre aparatos fijos debe distinguirse claramente desde el exterior, después de que el aparato haya sido fijado como en un uso normal, pero si es necesario, después de remover una cubierta.
El marcado de otros aparatos debe distinguirse claramente desde el exterior, si es necesario, después de remover una cubierta.
El marcado solamente puede estar por debajo de una cubierta, si éste está cerca de las terminales para conductores externos.
El cumplimiento se verifica por inspección y frotando las marcas manualmente durante 15 s con un paño empapado con gasolina blanca. La gasolina blanca a utilizar para esta verificación debe ser hexano de solvente alifático.
Después de todas las pruebas, el marcado debe ser fácilmente legible, no debe ser posible retirar las placas marcadas, y no deben haberse desprendido.
Si el cumplimiento con esta norma depende de la operación de un fusible térmico reemplazable, el número de referencia u otros medios para la identificación del mismo, deben ser marcados sobre el fusible o en un lugar tal que sea claramente visible, cuando el aparato sea desmantelado en el lugar necesario para reemplazar dicho fusible.
NOTA. El producto objeto de esta Norma Oficial Mexicana debe cumplir con la información comercial establecida en la NOM-024-SCFI-2013.
9. Vigilancia
La vigilancia del presente proyecto de Norma estará a cargo de la Secretaría de Energía por conducto de la Comisión Nacional para el Uso Eficiente de la Energía; la Secretaría de Economía y la Procuraduría Federal del Consumidor, cada una conforme a sus respectivas atribuciones.
El incumplimiento con el presente proyecto de Norma Oficial Mexicana será sancionado conforme a lo dispuesto en la Ley Federal sobre Metrología y Normalización, su reglamento y demás disposiciones legales aplicables.
10. Procedimiento para la evaluación de la conformidad
La evaluación de la conformidad de los aparatos de refrigeración comercial autocontenidos con las especificaciones del presente proyecto de Norma Oficial Mexicana, se realizará por personas acreditadas y aprobadas.
De conformidad con los artículos 68 primer párrafo, 70 fracción I y 73 de la Ley Federal sobre Metrología y Normalización, se establece el presente Procedimiento para la Evaluación de la Conformidad.
10.1. Objetivo
Este Procedimiento para la Evaluación de la Conformidad (PEC) se establece para facilitar y orientar a los organismos de certificación, laboratorios de prueba, fabricantes, importadores, comercializadores, en la aplicación de este proyecto de Norma Oficial Mexicana, una vez que sea publicado como norma definitiva.
10.2. Referencias
Para la correcta aplicación de este PEC es necesario consultar los siguientes documentos vigentes:
 
-      Ley Federal sobre Metrología y Normalización (LFMN).
-      Reglamento de la Ley Federal sobre Metrología y Normalización (RLFMN).
10.3. Definiciones
Para los efectos de este PEC, se entenderá por:
10.3.1 Ampliación o reducción del certificado de la conformidad de producto
Cualquier modificación al certificado de producto durante su vigencia en modelo, marca, país de origen de fabricación, bodega y especificaciones, siempre y cuando se cumplan con los criterios de agrupación de familia indicado en el inciso 10.5.2. No se permite la ampliación de titularidad.
10.3.2 Autoridad competente
La Secretaría de Energía (Sener) por conducto de la Comisión Nacional para el Uso Eficiente de la Energía (Conuee); Secretaría de Economía (SE) y la Procuraduría Federal del Consumidor (Profeco), conforme a sus atribuciones y en el ámbito de sus respectivas competencias.
10.3.3 Cancelación del certificado de la conformidad del producto
Acto por medio del cual el organismo de certificación de producto invalida de forma definitiva el certificado de la conformidad de producto.
10.3.4 Certificado de la conformidad de producto
Documento mediante el cual el organismo de certificación de producto, hace constar que un producto o una familia de productos determinados cumple con las especificaciones establecidas en el PROY-NOM. Para el caso de un certificado expedido con una vigencia en tiempo, el organismo de certificación de producto debe comprobar que durante la vigencia del certificado el producto cumple con lo dispuesto por la norma, en caso contrario, se debe cancelar la vigencia de dicho certificado.
10.3.5 Especificaciones técnicas
La información técnica de los productos que describe que éstos cumplen con los criterios de agrupación de familia de producto y que ayudan a demostrar cumplimiento con las especificaciones establecidas en el PROY-NOM.
10.3.6 Evaluación de la conformidad
La determinación del grado de cumplimiento con el PROY-NOM.
10.3.7 Familia de productos
Un grupo de productos del mismo tipo en el que las variantes son de carácter estético o de apariencia, pero conservan las características de diseño que aseguran el cumplimiento con el PROY-NOM y que cumplan con lo establecido en el inciso 10.5.3.
10.3.8 Informe de certificación del sistema de calidad
El que otorga un organismo de certificación de producto a efecto de hacer constar, que el sistema de aseguramiento de calidad del producto que se pretende certificar, contempla procedimientos para asegurar el cumplimiento con el PROY-NOM.
10.3.9 Informe de pruebas
El documento que emite un laboratorio de pruebas acreditado y aprobado en los términos de la LFMN y su Reglamento, mediante el cual se presentan los resultados obtenidos en las pruebas realizadas a la muestra seleccionada. La vigencia del informe de pruebas es de noventa días a partir de su fecha de emisión.
10.3.10 Laboratorio de pruebas
La persona física o moral, acreditada y aprobada conforme lo establece la LFMN y su Reglamento, para realizar pruebas de acuerdo con el PROY-NOM.
10.3.11 Organismo de certificación de producto
La persona moral, acreditada y aprobada conforme a la LFMN y su Reglamento, que tenga por objeto realizar funciones de certificación a los productos referidos en el PROY-NOM.
10.3.12 Organismo de certificación de sistemas de aseguramiento de la calidad
La persona moral, acreditada y aprobada conforme a la LFMN y su Reglamento, que tenga por objeto realizar funciones de certificación de sistemas de aseguramiento de la calidad.
10.3.13 Producto
 
Los aparatos de refrigeración comercial y de uso médico autocontenidos que se indican en el campo de aplicación del PROY-NOM.
10.3.14 Renovación del certificado de la conformidad del producto
Emisión de un nuevo certificado de conformidad, normalmente por un periodo igual al que se le otorgó en la certificación inicial, previo seguimiento al cumplimiento con los requisitos establecidos en el PROY-NOM.
10.3.15 Seguimiento
La comprobación a la que están sujetos los productos certificados de acuerdo con el PROY-NOM, así como el sistema de aseguramiento de la calidad, a los que se les otorgó un certificado de la conformidad con el objeto de constatar que continúan cumpliendo con el PROY-NOM y del que depende la vigencia de dicha certificación.
10.3.16 Suspensión del certificado de la conformidad del producto
Acto mediante el cual el organismo de certificación de producto interrumpe la validez, de manera temporal, parcial o total, del certificado de la conformidad del producto.
10.4 Disposiciones generales
10.4.1 El presente PEC es aplicable a los productos de fabricación nacional o de importación que se comercialicen en el territorio nacional.
10.4.2 La evaluación de la conformidad debe realizarse por laboratorios de prueba y organismos de certificación de producto, acreditados y aprobados conforme a lo dispuesto en la LFMN y su Reglamento.
10.4.3 La Secretaría de Energía a través de la Comisión Nacional para el Uso Eficiente de la Energía y la Secretaría de Economía, serán las autoridades competentes para resolver cualquier controversia en la interpretación del presente PEC.
10.5 Procedimiento
10.5.1 El fabricante, importador o comercializador (el interesado), debe solicitar la evaluación de la conformidad con el PROY-NOM al organismo de certificación de producto, cuando lo requiera para dar cumplimiento a las disposiciones legales o para otros fines de su propio interés y el organismo de certificación de producto entregará al interesado la solicitud de servicios de certificación, el contrato de prestación de servicios y la información necesaria para llevar a cabo el proceso de certificación de producto.
10.5.2 Una vez que el interesado ha analizado la información proporcionada por el organismo de certificación de producto, presentará la solicitud con la información respectiva, así como el contrato de prestación de servicios de certificación que celebra con dicho organismo.
10.5.3 El interesado debe elegir un laboratorio de pruebas acreditado, con objeto de someter a pruebas de laboratorio una muestra. Las pruebas se realizarán bajo la responsabilidad del organismo de certificación de producto. El organismo de certificación de producto, debe dar respuesta a las solicitudes de certificación, renovación, cambios en el alcance de la certificación (tales como modelo, marca, etc.).
10.5.4 Para obtener el certificado de la conformidad de producto, el interesado puede optar por la modalidad de certificación mediante pruebas periódicas al producto (por modelo o por familia), o por la modalidad de certificación mediante el sistema de gestión de la calidad de la línea de producción (por modelo o por familia) y, para tal efecto, debe presentar como mínimo la siguiente documentación al organismo de certificación de producto, por cada modelo que representa a la familia:
10.5.4.1 Para la modalidad de certificación mediante pruebas periódicas al producto (modalidad 1):
-      Original del (los) informe(s) de pruebas realizadas por un laboratorio de pruebas acreditado y aprobado;
-      Copia del certificado de cumplimiento otorgado con anterioridad, en su caso;
-      Declaración bajo protesta de decir verdad, por medio de la cual el interesado manifestará que el producto presentado a pruebas de laboratorio es representativo de la familia que se pretende certificar, de acuerdo con 10.3.5 y 10.5.3.2.
-      Fotografías o representación gráfica del producto.
-      Etiqueta de eficiencia energética conforme al inciso 8.1
-      Etiqueta de marcado conforme al inciso 8.2
 
-      Diagrama eléctrico
-      Instructivo o manual de uso en idioma español
10.5.4.2 Para la modalidad de certificación mediante el sistema de gestión de la calidad de la línea de producción (modalidad 2):
-      Los descritos en inciso 10.5.4.1.
-      Copia del certificado vigente del sistema de gestión de la calidad que incluya la línea de producción, expedido por un organismo de certificación de sistemas de aseguramiento de la calidad.
-      Informe de certificación del sistema de calidad que indique que se cuenta con procedimiento de verificación al proceso de producción.
Tratándose de empresas con más de dos plantas de producción, deberán presentar, el certificado del sistema de aseguramiento de calidad de cada planta. Los certificados PROY-NOM expedidos bajo esta modalidad sólo serán válidos para los productos de las plantas que tengan sistema de aseguramiento de la calidad certificado. El certificado PROY-NOM sólo amparará a los productos de las plantas que cuenten con el sistema de aseguramiento de la calidad certificado.
10.5.5 Muestreo
Se requiere aplicar el siguiente plan de muestreo a cada modelo o familia de aparato de refrigeración comercial conforme a lo establecido en la Tabla 11.
10.5.5.1 Para efectos de muestreo de los aparatos de refrigeración comercial autocontenidos y/o de uso médico, se debe seleccionar de manera aleatoria, una sola muestra de un aparato con opción a una muestra testigo.
Las pruebas de eficiencia energética, prueba de abatimiento de temperatura (en su caso) y pruebas de seguridad al usuario, se realizan a un mismo aparato.
10.5.5.2 Pueden considerarse dos o más productos como familia, si cumplen con los requisitos mencionados a continuación:
TABLA 11. Clasificación de las familias considerando el tipo de producto y la capacidad útil de refrigeración.
Familia
Producto
Capacidad útil de
refrigeración en litros (L)
 
ENFRIADOR VERTICAL
1
Con circulación forzada de aire y
puerta de cristal
de 25 a 1 200 *
2
Con circulación forzada de aire y
puerta sólida
de 25 a 1 200 *
3
Con placa fría
de 25 a 1 200 *
 
ENFRIADOR HORIZONTAL
4
Con circulación forzada de aire
de 50 a 500 *
5
De placa fría
de 50 a 500 *
 
CONGELADOR VERTICAL
6
Con puerta de cristal y circulación
forzada de aire, incluye los de uso
médico
de 50 a 1 200 *
7
Con puerta sólida y circulación
forzada de aire, incluye los de uso
médico
de 50 a 1 200 *
8
Con puerta de cristal y placa fría,
incluye los de uso médico
de 50 a 1 500 *
 
CONGELADOR HORIZONTAL
9
Con puerta sólida, incluye los de uso
médico
de 50 a 700 *
 
 
 
10
Con puerta de cristal, incluye los de
uso médico
de 50 a 700 *
 
VITRINA CERRADA
11
De temperatura media
de 100 a 1 200 *
12
De baja temperatura
de 100 a 1 200 *
13
CONSERVADORES DE BOLSAS
CON HIELO
100 a 2 500 *
 
Adicionalmente el solicitante deberá considerar en la elección de la muestra representativa, por cada familia que se enviará a pruebas de laboratorio; lo siguiente:
I. Se debe enviar a pruebas de laboratorio preferentemente un equipo que cuente con el compresor de mayor capacidad y/o con mayores componentes en su circuito eléctrico.
II. Las pruebas deberán de realizarse a un mismo producto y en el siguiente orden: Abatimiento de temperatura (cuando aplique), Eficiencia Energética y Seguridad de Producto.
Para pruebas de laboratorio la muestra a evaluar por cada familia a certificar, estará integrada por un mismo producto, con las características arriba descritas.
* pueden integrarse capacidades mayores a las indicadas en el rango.
10.5.6 Vigencia de los certificados de cumplimiento del producto.
10.5.6.1 Un año a partir de la fecha de su emisión, para los certificados de la conformidad con seguimiento mediante pruebas periódicas al producto.
10.5.6.2 Tres años a partir de la fecha de emisión, para los certificados de la conformidad con seguimiento mediante el sistema de aseguramiento de la calidad de la línea de producción.
10.5.7 Seguimiento
10.5.7.1 El organismo de certificación de producto debe realizar el seguimiento del cumplimiento con el PROY-NOM, de los productos certificados, como mínimo una vez al año, tanto de manera documental como por revisión y muestreo del producto certificado. El seguimiento se debe realizar en una muestra tomada como se especifica en el inciso 10.5.5, en la fábrica, bodegas o en lugares de comercialización del producto en el territorio nacional una vez al año.
10.5.7.1.1 En la modalidad de certificación con seguimiento mediante pruebas periódicas al producto, el seguimiento se debe realizar en una muestra seleccionada por el Organismo de Certificación para Producto, de un modelo que integre la familia, tomada como se especifica en el inciso 10.5.5, en la fábrica o bodegas o en lugares de comercialización del producto en el territorio nacional una vez al año.
10.5.7.1.2 En la modalidad de certificación mediante revisión del sistema de gestión de la calidad de la línea de producción, el seguimiento se debe realizar anualmente en el lugar donde se manufactura el producto. El organismo de certificación de producto debe verificar el sistema de control de la calidad de las líneas de producción en las que se fabrican los productos y debe determinar, por medio de pruebas realizadas en la fábrica, siempre y cuando el laboratorio cuente con la acreditación y aprobación correspondiente, que los productos certificados siguen en cumplimiento con el PROY-NOM. Se deben revisar también los resultados de la última auditoría de seguimiento aplicado por el organismo de certificación de sistemas de gestión de la calidad, acreditado.
Para la certificación inicial, se debe de realizar una visita previa para verificación del sistema de calidad de la línea de producción. El muestreo puede ser realizado en esta visita.
10.5.7.1.3 La muestra para seguimiento debe integrarse por miembros de la familia diferentes a los que se probaron para la certificación.
10.5.7.1.4 De los resultados del seguimiento correspondiente, el Organismo de Certificación de Producto dictamina la suspensión, cancelación o renovación del certificado de cumplimiento del producto.
10.5.7.1.5 En caso que el Organismo de Certificación de Producto determine la suspensión o cancelación del certificado, ya sea por el incumplimiento del producto con el PROY-NOM o cuando el seguimiento no pueda llevarse a cabo por causa imputable a la empresa a verificar, el Organismo de Certificación de Producto debe dar aviso al titular del certificado.
10.6 Suspensión y cancelación del certificado de la conformidad de producto
Sin perjuicio de las condiciones contractuales de la prestación del servicio de certificación, el organismo de certificación de producto debe aplicar los criterios siguientes para suspender o cancelar un certificado.
10.6.1 Se procederá a la suspensión del certificado:
 
a)    Por incumplimiento con los requisitos de información al público establecidos por el PROY-NOM.
b)    Cuando el seguimiento no pueda llevarse a cabo por causas imputables al titular del certificado.
c)    Cuando el titular del certificado no presente al organismo de certificación el informe de pruebas derivado del seguimiento, antes de 30 días naturales contados a partir de la fecha de emisión del informe de pruebas y dentro de la vigencia del certificado.
d)    Por cambios o modificaciones a las especificaciones o diseño de los productos certificados que no hayan sido evaluados por causas imputables al titular del certificado.
e)    Cuando la dependencia lo determine con base en el artículo 112, fracción V de la LFMN y 102 de su Reglamento.
El organismo de certificación de producto debe informar al titular del certificado sobre la suspensión, otorgando un plazo de 30 días naturales para hacer aclaraciones pertinentes o subsanar las deficiencias del producto o del proceso de certificación. Pasado el plazo otorgado y en caso de que no se hayan subsanado los incumplimientos, el organismo de certificación de producto procederá a la cancelación inmediata del certificado de la conformidad del producto.
10.6.2 Se procederá a la cancelación inmediata del certificado:
a)    En caso, por cancelación del certificado del sistema de gestión de la calidad de la línea de producción.
b)    Cuando se detecte falsificación o alteración de documentos relativos a la certificación.
c)    A petición del titular de la certificación, siempre y cuando se hayan cumplido las obligaciones contraídas en la certificación, al momento en que se solicita la cancelación.
d)    Cuando se incurra en declaraciones engañosas en el uso del certificado.
e)    Por incumplimiento con especificaciones del PROY-NOM, que no sean aspectos de marcado e información.
f)     Una vez notificada la suspensión, no se corrija el motivo de ésta en el plazo establecido.
g)    Cuando la dependencia lo determine con base en el artículo 112, fracción V de la LFMN y 102 de su Reglamento.
h)    Se hayan efectuado modificaciones sustantivas al producto.
i)     No se cumpla con las características y condiciones establecidas en el certificado.
j)     El documento donde consten los resultados de la evaluación de la conformidad pierda su utilidad o se modifiquen o dejen de existir las circunstancias que dieron origen al mismo, previa petición de parte.
En todos los casos de cancelación se procede a dar aviso a las autoridades correspondientes, informando los motivos de ésta. El organismo de certificación de producto mantendrá el expediente de los productos con certificados cancelados por incumplimiento con el PROY-NOM.
10.7 Renovación
Para obtener la renovación de un certificado de la conformidad del producto en cualquier modalidad que resulte aplicable, se procederá a lo siguiente.
10.7.1 Deberán presentarse los documentos siguientes:
a)    Solicitud de renovación.
b)    Actualización de la información técnica debido a modificaciones en el producto en caso de haber ocurrido.
10.7.2 La renovación estará sujeta a lo siguiente:
a)    Haber cumplido en forma satisfactoria con los seguimientos y pruebas establecidas en el inciso 10.5.5
b)    Que se mantienen las condiciones de la modalidad de certificación, bajo la cual se emitió el certificado de cumplimiento inicial.
Una vez renovado el certificado de la conformidad del producto, se estará sujeto a los seguimientos correspondientes a cada modalidad de certificación, así como las disposiciones aplicables del presente procedimiento para la evaluación de la conformidad.
10.8 Ampliación o reducción del certificado de la conformidad del producto
Una vez otorgado el certificado de la conformidad del producto se puede ampliar, reducir o modificar su
alcance, a petición del titular del certificado, siempre y cuando se demuestre que se cumple con los requisitos del PROY-NOM, mediante análisis documental y, de ser el caso, pruebas tipo.
Para el caso del presente PROY-NOM queda prohibida la ampliación de la titularidad del certificado de la conformidad del producto.
El titular de la certificación puede ampliar, modificar o reducir en los certificados, modelos, marcas, especificaciones técnicas o domicilios, entre otros, siempre y cuando se cumpla con los criterios generales en materia de certificación y correspondan a la misma familia de productos.
Los certificados emitidos como consecuencia de una ampliación quedarán condicionados tanto a la vigencia y seguimiento de los certificados de la conformidad del producto iniciales.
Los certificados emitidos podrán contener la totalidad de modelos y marcas del certificado base, o bien una parcialidad de éstos.
Para ampliar, modificar o reducir el alcance del certificado de la conformidad del producto, deben presentarse los documentos siguientes:
a)    Información técnica que justifique los cambios solicitados y que demuestre el cumplimiento con las especificaciones establecidas en el presente PROY-NOM, con los requisitos de agrupación de familia y con la modalidad de certificación correspondiente.
b)    En caso de que el producto certificado sufra alguna modificación, el titular del certificado deberá notificarlo al organismo de certificación correspondiente, para que se compruebe que se siga cumpliendo con el PROY-NOM.
10.9. Diversos
10.9.1 La lista de los laboratorios de prueba y los organismos de certificación pueden consultarse en la Entidad Mexicana de Acreditación y en www.gob.mx/Conuee, la dependencia o dependencias competentes, además de que dicha relación aparece publicada en el Diario Oficial de la Federación, pudiéndose consultar también en la página de Internet de la Secretaría de Economía.
10.9.2 Los gastos que se originen por los servicios de certificación y pruebas de laboratorio, por actos de evaluación de la conformidad, son a cargo del usuario conforme a lo establecido en el artículo 91 de la LFMN.
11. Concordancia con normas internacionales
Con relación a la eficiencia energética, al momento de elaboración de este proyecto de Norma Oficial Mexicana, no se encontró concordancia con ninguna norma internacional.
 

 
Figura 4. Probeta de prueba

Figura 5. Diagrama para la medición de corriente de fuga a la temperatura de operación para equipos
monofásicos Clase II

Figura 6. Aparatos distintos de Clase II monofásicos
 

Figura 7. Aparatos de Clase II trifásicos

Figura 8. Diagrama para la medición de la corriente de fuga a la temperatura de operación de aparatos
distintos de Clase II trifásicos
 

APÉNDICE B
(Normativo)
DEFINICIÓN DEL SISTEMA DE MEDICIÓN
TABLA B.1.- INSTRUMENTOS DE MEDICIÓN Y GRADO DE EXACTITUD
PARÁMETROS E INSTRUMENTOS
EXACTITUD
Energía
1) Martillo de Resorte
±0,05 J
Humedad
2)    Higrómetro
3)    Psicrómetro
±3 %
Longitud
4)    Flexómetro
5)    Escalímetro
±1 mm
Magnitudes eléctricas
 
6)    Wáttmetro
7)    Vóltmetro
8)    Watthorímetro
± 2 %
±0,5 %
2 %
Peso
9)    Báscula
10)  Balanza
±5 g
Temperatura
 
11)  Termopares, sensores de resistencia eléctrica y/o termistores
±0,7 ºC
Tiempo
12)  Reloj eléctrico síncrono de arranque automático o un integrador de tiempo semejante.
±1 s
Velocidad
13)  Anemómetro
±0,01 m/s
TABLA B.2.- VARIACIONES PERMISIBLES EN LOS PARÁMETROS MEDIDOS
PARÁMETROS
(1) VARIACIÓN
(%)
Consumo de energía (Wh/L)
+ 5 % (2)
Humedad
±5 %
Longitud
±2 mm
Peso
±10 g
Temperatura en la cámara de prueba
±1,5 ºC
Tensión eléctrica
±3 V
Tiempo en 24 h
±60 s
Velocidad del aire en la cámara de prueba
< 0,25 m/s
 
Notas de la TABLA B.2
1.-   Variación máxima de los valores individuales respecto al valor especificado en esta norma.
2.-   Sin exceder el máximo permisible especificado por la norma.
APÉNDICE C
(Normativo)
DETERMINACIÓN DEL VOLUMEN REFRIGERADO ÚTIL
C.1 Enfriadores y congeladores verticales y horizontales
C.1.1 El parámetro que define la capacidad del aparato de refrigeración en términos del volumen útil refrigerado, se describe a continuación:
La suma de los volúmenes determinados por el área de los diferentes tipos de parrillas o superficies donde se coloque producto, multiplicado por la altura correspondiente hasta el nivel de carga marcado por el fabricante o el tope, que puede ser la siguiente parrilla de diferente área, la parte superior del difusor, lámpara, plafón, desviadores de aire o cualquier componente que limite el acomodo de producto.
C.1.2 En el caso de equipos con gabinete interior termoformado con parrillas soportadas por ranuras del mismo, se debe considerar para el cálculo del área de la parrilla, las distancias libres entre paredes para el acomodo del producto.
C.1.3 Si algún componente del interior del gabinete ocupa volumen útil (p. ej. difusor, desviador de aire, plafón), éste debe ser restado del cálculo total, de acuerdo al párrafo anterior. En los casos en que este obstáculo impida el acomodo de un PET o un paquete de prueba de 100 mm x 100 mm x 50 mm (p. ej. interruptor, drenaje, termostato), este volumen no debe ser restado al volumen total.
Las siguientes figuras ejemplifican este cálculo.

 



C.2 Vitrinas
C.2.1 El parámetro que define la capacidad del aparato de refrigeración en términos del volumen útil refrigerado, se describe a continuación:
La suma total de los volúmenes determinados de cada área de parrillas, entrepaños o superficies donde se coloque producto (ejemplos: piso del aparato, cajón de unidad condensadora), multiplicado por la altura correspondiente tomada al centro geométrico de la parrilla o entrepaño, en línea vertical hasta el nivel de carga marcado por el fabricante o cualquier tope, que puede ser la siguiente parrilla, entrepaño, cristal, evaporador, lámpara, plafón, desviadores de aire o cualquier componente que limite el acomodo de producto.
C.2.2 Si algún componente del interior del gabinete ocupa volumen útil (p. ej. sistema de drenaje, tubería de refrigeración, ductos eléctricos), éste debe ser restado del cálculo total, de acuerdo al párrafo anterior. En los casos en que este obstáculo impida el acomodo de un paquete de 100 mm x 100 mm x 50 mm (p. ej. interruptor, termostato), este volumen no debe ser restado al volumen total.
 

 
Conservadores de bolsas con hielo
La capacidad del aparato en función del volumen refrigerado útil se determina multiplicando el área interna inferior del aparato por la altura de piso a techo del mismo.

APÉNDICE D
(Normativo)
COLOCACIÓN DE LOS MEDIDORES DE LA VELOCIDAD DEL AIRE
La medición y registro de la velocidad del aire se realizará con un anemómetro y se colocará en los aparatos objeto de esta norma, como se muestra en la figura siguiente:

APÉNDICE E
(Normativo)
 
CARGA Y COLOCACIÓN DE SENSORES DE LOS APARATOS DE PRUEBA
E.1 Cuarto de pruebas
Los sensores de la temperatura ambiente en el cuarto de pruebas se deben colocar como sigue:
a)    A la mitad de la altura y a 0,31 m del frente, del aparato
b)    A la mitad de la altura y a 0,31 m del lado izquierdo, del aparato
c)    A la mitad de la altura y a 0,31 m del lado derecho, del aparato
E.2 Enfriadores verticales
E.2.1 En el caso de enfriadores verticales, los criterios de carga del aparato son:
-      Debe llenarse a su máxima capacidad.
-      Con todas las parrillas para las que fue diseñado.
-      No utilizar parrillas de despacho por gravedad para la prueba.
E.2.2 Las parrillas deben ser distribuidas uniformemente dentro del enfriador, respetando las distancias mínimas indicadas en esta norma. En caso de requerirse parrillas adicionales, se deben solicitar al fabricante.
E.2.3 La colocación de las parrillas dentro del gabinete del enfriador debe empezarse desde la parte inferior, de acuerdo a lo especificado en el inciso anterior.
E.2.4 La carga del aparato se debe hacer botella por botella, colocándolas en forma vertical, hasta llenar el enfriador al máximo de su capacidad.
E.2.5 Las botellas de PET deben ser colocadas de manera que formen filas sin traslape y centradas en área de la parrilla. La suma del espacio libre por cada lado de la parrilla, no debe permitir el acomodo de otra botella como se ejemplifica en el arreglo válido de la siguiente figura,
VISTA SUPERIOR

E.2.6 En el caso de que la parrilla superior no permita el acomodo vertical de las botellas de PET, se podrán colocar de manera horizontal. Este acomodo se hará colocando botellas de PET hacia el frente de la parrilla y si el espacio de la parrilla permite una segunda fila detrás de esta, se debe colocar. Ver figura en este punto.

E.2.7 El espacio libre que debe existir entre las botellas y las parrillas debe ser medido desde la parte superior de la botella y la parte más baja de la siguiente parrilla. La sumatoria de las distancias libres entre botellas y parrillas de cada nivel, debe ser menor que la altura de una botella que está siendo utilizada. En
caso contrario, se debe hacer un segundo intento de carga de producto. Ver figura 2.

E.2.8 El único espacio libre permitido en el enfriador es el que se encuentra entre las paredes de éste y las botellas, la parrilla debe llenarse sin exceder los bordes o topes en la parte trasera y frontal de la misma.
E.2.9 En los casos donde la distancia entre fondo y primera parrilla sea mayor que 0,05 m (ver figura), se debe retirar la parrilla, colocarla en el piso del gabinete y reacomodar el resto de las parrillas conforme con los criterios de E.2.8.
Notas
1.- En caso de que la parrilla no se pueda colocar directamente en el fondo, el producto se colocará directamente sobre el fondo.
2.- Para la colocación de la carga se tomará en cuenta la recomendación del fabricante siempre que no exceda la distancia ya especificada.

E.2.10 El número de sensores que debe tener cada nivel de parrillas y la colocación de los mismos, para enfriadores verticales de una, dos y tres puertas, se indican en las figuras siguientes.
 

E.3 Enfriadores horizontales con circulación forzada de aire
E.3.1 La carga del aparato se debe hacer botella por botella o six, colocándolas en forma vertical como se indica en la siguiente figura, las botellas deben colocarse pegadas a las parrillas y llenar el enfriador al máximo de su capacidad considerando el nivel de carga, si lo especifica el fabricante. El único espacio permitido en el enfriador es el que se encuentra entre la pared de éste y las botellas, siendo este espacio menor al diámetro de una botella.
E.3.2 Los sensores deben ser colocados en la parte superior como se ejemplifica en la figura siguiente:
 

E.4 Enfriadores horizontales de placa fría
E.4.1 La carga del aparato se debe hacer botella por botella o six colocándolas en forma vertical como se indica en la siguiente figura, no debe superarse la altura de las placas frías y las botellas deben estar en contacto con éstas, el único espacio permitido entre botellas es aquel que sea menor al diámetro de una botella, como se ejemplifica en la figura siguiente:

E.4.2 Los sensores deben ser colocados en botellas de las columnas adyacentes a aquellas que están en contacto con las placas frías y solamente en la parte superior, como se ejemplifica en las figuras anteriores y
siguientes:

E.5 Congeladores Verticales
E.5.1 La carga de prueba consiste en bloques de prueba con dimensiones y composición de acuerdo con lo indicado en 6.1.2.2
E.5.2 Todas las parrillas del aparato se deben colocar uniformemente espaciadas en toda la altura libre, hasta el nivel de carga indicado por el fabricante.
E.5.3 El acomodo de los bloques en cada parrilla se debe hacer de manera que se formen hileras de 200 mm de ancho con altura aproximada de la mitad de la distancia de separación entre parrillas, y una separación entre hileras y paredes del gabinete, de 25 mm (ver figura).
E.5.4 Los bloques con sensor deben ser colocados uno en cada esquina y uno en el centro geométrico de la fila superior, totalizando 5 sensores. Este arreglo se repite para cada una de las parrillas.
E.5.5 Si el equipo cuenta con canastillas para colocación de producto, éste debe probarse cargando las canastillas hasta su máxima capacidad y colocando los sensores con los mismos criterios mencionados anteriormente.
Las siguientes figuras ejemplifican algunos de los tipos de congeladores y de la colocación de los sensores de prueba.
CONGELADORES VERTICALES
 

E.6 Congeladores Horizontales
E.6.1 El llenado debe iniciarse colocando la carga de prueba nivel por nivel, hasta llegar al nivel de carga señalado con una marca impresa en el aparato. Se permite colocar la carga, como máximo, a 0,015 m abajo del nivel de carga.
E.6.2 El espacio entre columnas de paquetes, entre divisiones internas y con la pared del congelador debe ser de 0,025 m ± 0,005 m.
E.6.3 Los aparatos que estén previstos para usar canastillas deben probarse con éstas en su posición normal de uso. Se permite un espacio entre el fondo del aparato y la parte inferior de la canastilla de hasta 0,05 m.
E.6.4 Los sensores deben colocarse en cada una de las esquinas y centro geométrico del nivel superior de los paquetes de prueba, como lo indica la siguiente figura:

 

VISTA LATERAL
E.7 Vitrinas
E.7.1 Los bloques de prueba deben abarcar toda el área disponible de cada uno de los entrepaños con que cuenta la vitrina, así como en las superficies internas destinadas al compartimiento de la unidad de refrigeración.
E.7.2 La columna de bloques de prueba debe estar separada 0,025 m ± 0,005 m de la pared del gabinete y de igual manera para la separación de cada columna de bloques de prueba. Se deben colocar cinco bloques con sensor en la fila superior cercanos al nivel de carga de cada entrepaño y uno de los sensores debe ser colocado en el centro geométrico del entrepaño de la vitrina, como se ejemplifica en la figura; si la vitrina incluye cualquier tipo de estructura en su centro, el sensor puede ser colocado a la derecha, a la izquierda, al frente o atrás de tal estructura separado 0,025 m.
E.7.3 El nivel de carga mencionado en párrafos anteriores será designado por cada fabricante según el diseño y/o capacidad de su equipo.
UBICACIÓN DE SENSORES EN VITRINAS

E.8 Conservadores de bolsas con hielo
E.8.1 Los conservadores de bolsas con hielo se deben probar sin carga y la colocación del sensor de temperatura debe hacerse en el centro geométrico del interior del aparato, midiendo la temperatura del aire, como se indica en la siguiente figura.
 

APÉNDICE F
(Normativo)
CIRCUITO PARA MEDICIÓN DE CORRIENTES DE FUGA

Circuito para medir corriente de fuga
APÉNDICE G
(Normativo)
SIMBOLO PARA APARATOS CON REFRIGERANTE INFLAMABLE

Advertencia; Riesgo de fuego/Materiales Inflamables
 
12. Bibliografía
Ley Federal sobre Metrología y Normalización, publicada en el Diario Oficial de la Federación el 1 de julio de 1992.
Reglamento de la Ley Federal sobre Metrología y Normalización, publicado en el Diario Oficial de la Federación el 14 de enero de 1999.
NOM-022-ENER/SCFI-2014, Eficiencia energética, requisitos de seguridad al usuario para aparatos de refrigeración comercial autocontenidos. Límites, métodos de prueba y etiquetado, publicada en el Diario Oficial de la Federación el 27 de noviembre de 2014.
NMX-Z-013-SCFI-2015, Guía para la estructuración y redacción de Normas.
NMX-J-521/1-ANCE-2012, Aparatos electrodomésticos y similaresSeguridad parte 1: Requisitos generales.
ASHRAE 1994, Handbook refrigeration system and applications.
ARI Air Conditioning and Refrigeration Institute, Ed. Prentice/Hall International, Englewood Cliffs, N.J. 1979.
ISO 5149-1, Sistemas de refrigeración seguridad y requerimientos ambientales. Parte 1 definiciones, clasificación y criterio de selección.
UL 471, Estándar para seguridad, congeladores y refrigeradores comerciales.
IEC 60335-1, Aparatos electrodomésticos y aparatos eléctricos similares. Seguridad parte 1, requerimientos generales.
IEC 60335-2-89, Electrodomésticos y aparatos eléctricos similares, seguridad parte 2-89.
ANSI Z97.1, Seguridad de materiales de vidrio usados en la construcción. Seguridad, especificaciones de desempeño y métodos de prueba.
13. Transitorios
Primero. El presente proyecto de Norma Oficial Mexicana, una vez publicado en el Diario Oficial de la Federación, como Norma Oficial Mexicana definitiva, entrará en vigor 90 días naturales después de dicha publicación y a partir de esta fecha, todos los aparatos de refrigeración autocontenidos comprendidos dentro del campo de aplicación deberán ser certificados con base a la misma.
Segundo. Una vez que entre en vigor el presente proyecto de Norma Oficial Mexicana, cancelará y sustituirá a la NOM-022-ENER/SCFI-2014, Eficiencia energética, requisitos de seguridad al usuario para aparatos de refrigeración comercial autocontenidos. Límites, métodos de prueba y etiquetado, que fue publicada en el Diario Oficial de la Federación el 27 de noviembre de 2014.
Tercero. Los aparatos de refrigeración comercial autocontenidos, certificados en el cumplimiento de la NOM-022-ENER/SCFI-2014 antes de la entrada en vigor de este proyecto de Norma Oficial Mexicana, por un organismo de certificación debidamente acreditado y aprobado, podrán ser comercializados hasta el término de su vigencia estipulada en el certificado.
Cuarto. En caso de que sea de interés del comercializador, podrá obtenerse un certificado de cumplimiento con el PROY-NOM-022-ENER/SE-2020, una vez que entre en vigor como Norma Oficial Mexicana definitiva; sin necesidad de esperar el vencimiento del certificado de cumplimiento con la NOM-022-ENER/SCFI-2014.
Quinto. Los laboratorios de pruebas y los organismos de certificación para producto podrán iniciar los trámites de acreditación y aprobación del presente proyecto de Norma Oficial Mexicana, a partir de la fecha de su publicación en el Diario Oficial de la Federación como norma definitiva. La aprobación que al efecto emita la Comisión Nacional para el Uso Eficiente de la Energía surtirá efectos hasta la entrada en vigor del presente Proyecto de Norma Oficial Mexicana como Norma Oficial Mexicana definitiva.
Sufragio Efectivo. No Reelección
Ciudad de México, a 18 de junio de 2020.- El Presidente del Comité Consultivo Nacional de Normalización para la Preservación y Uso Racional de los Recursos Energéticos (CCNNPURRE) y Director General de la Comisión Nacional para el Uso Eficiente de la Energía, Odón Demófilo de Buen Rodríguez.- Rúbrica.- El Presidente del Comité Consultivo Nacional de Normalización de la Secretaría de Economía (CCONNSE) y Director General de Normas de la Secretaría de Economía, Alfonso Guati Rojo Sánchez.- Rúbrica.